| <令和8年5月完成予定>●スーパーやコンビニが徒歩圏内でお買い物に便利な立地です♪ ●中島小学校、東中学校区の新築2SLDK♪ ●広々とした駐車スペースは3台並列駐車できます。 ●前面道路には消雪パイプも完備で冬も安心! ●2階LDKは日当たり良好♪開放感のある空間に ●ガス衣類乾燥機「乾太くん」を設置!冬場や花粉の季節の洗濯ストレスを軽減します。 | |||
| 物件コード | 00007-200754 | ||
|---|---|---|---|
| 物件名 | 長岡市中島1丁目 建売住宅 | ||
| 交通 | 駅:信越線 長岡駅から徒歩24分、バス:日赤3丁目から徒歩3分 | ||
| 物件所在地 | 新潟県長岡市中島1丁目291番20 | ||
| 物件種別 | 新築一戸建て | ||
| 構造 | 木造 | 階建 | 地上2階建 |
| 建ぺい率/容積率 | 70%/200% | ||
| 建物面積 | 計 91.71㎡ /27.74坪 | ||
| 土地面積 | 154.64㎡ /46.77坪 | ||
| 築年月 | 2026年5月完成予定 | ||
| 入居時期 | 相談 | ||
| 用途地域 | 第1種住居地域 | 地目 | 宅地 |
| 都市計画 | 市街化区域 | 学校区 | 中島小学校(413m)・東中学校(1,030m) |
| 形状 | - | 道路 | 南側:位置指定道路 5.5m、西側:位置指定道路 4.5m |
| 私道 | - | ||
| 所在階/階数 | - | 号室 | - |
|---|---|---|---|
| 販売価格 | 27,800,000円 | 方位 | 北 |
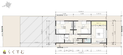
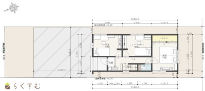
| 間取り |
2LDK (洋室:7、6) LDK18.8 建築確認番号:NK第25長00511号、フリースペース6帖あり、2SLDK |
||
| 専有面積 | - | バルコニー面積 | - |
| その他面積 | - | 駐車場 | - |
| 管理費 | - | 修繕積立金 | - |
| 現況 | 指定なし | ||
| 仲介手数料 | なし | ||
| 利用制限 | - | ||
| 設備 | 角地、整形地、日当り良好、閑静な住宅街、スーパー近く、BELS/省エネ基準適合認定建物、LDK15畳以上、全室フローリング、駐車場2台以上、駐車場3台以上、南向き、庭あり、TVインターホン、複層ガラス、ディンプルキー、システムキッチン、IHクッキングヒーター、3口コンロ、追いだき機能付き、バス1坪以上、温水洗浄便座、シャワー付き洗面台、エアコン、24時間換気システム、省エネ給湯、高気密高断熱住宅、都市ガス、上水道、下水道、電気、全居室収納あり、床下収納、シューズBOX、照明器具付き | ||
| 取引態様 | 売主 | ||
| 備考 | ・第三種高度地区 ・22条指定区域 ※物件掲載内容と現況に相違がある場合は現況を優先と致します。 詳細はお気軽にお問い合わせください。 担当:沼田 携帯:070-8449-3715 |
||
| 情報登録日 | 2026/04/05 | 次回更新予定日 | 2026/05/22 |
| 取引条件有効期限 | 2026/06/01 | ||
|
|
|
|
|
| TEL: | 0258-34-2221 |
|---|---|
| 所在地: | 新潟県長岡市信濃2-5-36 |
| 交通: | 長岡駅 |
| 営業時間: | 9:00~18:00/定休日: |
| 免許番号: | 新潟県知事(12)2196号 |
| 所属団体名: | 新潟県宅地建物取引業協会 長岡支部 |
| 取引態様: | 売主 |