| <令和8年3月完成予定>◆オール電化・3LDK住宅! ◆自然落雪屋根で、冬も安心です♪ ◆スーパー・コンビニ・ドラッグストアが徒歩圏内♪毎日のお買物に便利です。 ◆周りからの視線が気にならない2階リビングは、居心地が良く、家族団らんにも最適です。 ◆1.8帖のファミリークロークを物干しスペースの隣に配置。「干す→しまう」がワンステップ。時短が叶う家事動線。 ◆脱衣室と分かれた洗面台で、気兼ねなく使える設計です。プライバシーにも配慮しました。 | |||
| 物件コード | 00007-200752 | ||
|---|---|---|---|
| 物件名 | 十日町市西本町2丁目 建売住宅 1号棟 | ||
| 交通 | 駅:飯山線 十日町駅から徒歩19分、バス:十日町車庫前から徒歩7分 | ||
| 物件所在地 | 新潟県十日町市西本町2丁目9番32 | ||
| 物件種別 | 新築一戸建て | ||
| 構造 | 木造 | 階建 | 地上2階建 |
| 建ぺい率/容積率 | 60%/150% | ||
| 建物面積 | 計 93.36㎡ /28.24坪 | ||
| 土地面積 | 170㎡ /51.42坪 | ||
| 築年月 | 2026年3月完成予定 | ||
| 入居時期 | 相談 | ||
| 用途地域 | 第1種中高層住居専用地域 | 地目 | 田 |
| 都市計画 | 非線引き都市計画区域 | 学校区 | 西小学校(377m)・南中学校(2,039m) |
| 形状 | - | 道路 | 北西側:市道 8.0m |
| 私道 | - | ||
| 所在階/階数 | - | 号室 | - |
|---|---|---|---|
| 販売価格 | 27,300,000円 | 方位 | 北西 |
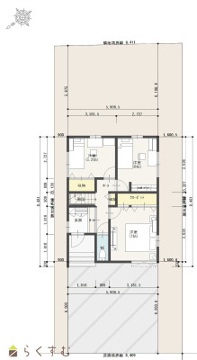
| 間取り |
3LDK (洋室:7、6、5.2) LDK17 建築確認番号:NK第25長00382号、物干しスペースあり |
||
| 専有面積 | - | バルコニー面積 | - |
| その他面積 | - | 駐車場 | - |
| 管理費 | - | 修繕積立金 | - |
| 現況 | 指定なし | ||
| 仲介手数料 | なし | ||
| 利用制限 | - | ||
| 設備 | 整形地、前面道路6m以上、日当り良好、閑静な住宅街、スーパー近く、BELS/省エネ基準適合認定建物、フラット35S適合、LDK15畳以上、全室フローリング、駐車場2台以上、TVインターホン、複層ガラス、ディンプルキー、システムキッチン、IHクッキングヒーター、浄水器、3口コンロ、追いだき機能付き、バス1坪以上、温水洗浄便座、シャワー付き洗面台、エアコン、24時間換気システム、オール電化、省エネ給湯、高気密高断熱住宅、上水道、下水道、電気、ウォークインクローゼット、全居室収納あり、床下収納、照明器具付き | ||
| 取引態様 | 売主 | ||
| 備考 | ・22条指定区域 ※物件掲載内容と現況に相違がある場合は現況を優先と致します。 詳細はお気軽にお問い合わせください。 担当:高橋 携帯:080-1223-9349 |
||
| 情報登録日 | 2026/03/08 | 次回更新予定日 | 2026/03/27 |
| 取引条件有効期限 | 2026/05/01 | ||
|
|
|
|
| TEL: | 0258-34-2221 |
|---|---|
| 所在地: | 新潟県長岡市信濃2-5-36 |
| 交通: | 長岡駅 |
| 営業時間: | 9:00~18:00/定休日: |
| 免許番号: | 新潟県知事(12)2196号 |
| 所属団体名: | 新潟県宅地建物取引業協会 長岡支部 |
| 取引態様: | 売主 |