1
物件掲載企業数:
297
社
|賃貸物件:
2,845
件|売買物件:
3,243
件|今週の登録物件:
352
件
閲覧中のブラウザ(インターネットエクスプローラー)は非推奨ブラウザです。
物件が正しく表示されなかったり、正しく検索されない場合があります。最新のブラウザ(Google Chrome・Edgeなど)にてご利用お願いいたします。
Google Chrome
Microsoft Edge
アパート・マンション・一戸建て
駐車場
貸土地
店舗
事務所
倉庫・工場
新築分譲マンション
中古マンション
新築一戸建て
中古一戸建て
売土地・分譲地
その他(投資物件など)
マンション
一戸建て
土地
ホーム
>
検索方法選択
>
ランドマーク指定
> 物件一覧
全エリア
の
売土地・分譲地
一覧
2021件
該当しました。
<前のページ
57
58
59
60
61
62
63
64
65
66
67
次のページ>
表示切替:
一覧表示
/
地図表示
並び替え:
指定なし
新着順
価格が安い順
価格が高い順
画像
物件名/所在地/取扱店
詳細
【グリーンガーデン丘陵公園】越後長岡丘陵公園へ抜ける抜群の景色「東南角地」
陽光台 グリーンガーデン 東南の角地
新潟県長岡市陽光台4丁目1379-105
株式会社 空間クリエイティブ
価格
:
6,314,000
円
土地面積
:215.23㎡ /65.1坪
坪単価
:96,989円/坪
建ぺい率
:60%
容積率
:200%
住環境が整っており、住みやすく人の集まるエリア (JR見附駅・市役所・コンビニ・ドラッグストア・ホームセンター1km圏内)
見附市本所一丁目分譲地 No.10
新潟県見附市本所一丁目501番16
SH.LAB produced by 笹原建設
価格
:
6,351,600
円
土地面積
:174.98㎡ /52.93坪
坪単価
:120,000円/坪
建ぺい率
:60%
容積率
:200%
使い方の可能性が広がる約211坪の大きさの土地です。小さいお子様がいても保育園・小学校が近くて安心の距離
大潟区下小船津浜売地
新潟県上越市大潟区下小船津浜1158-5
株式会社 すむとこ
価格
:
6,400,000
円
土地面積
:700.76㎡ /211.97坪
坪単価
:30,192円/坪
建ぺい率
:50%
容積率
:100%
東向きの整形地 前面道路消雪設備完備 西中学校まで徒歩約1分
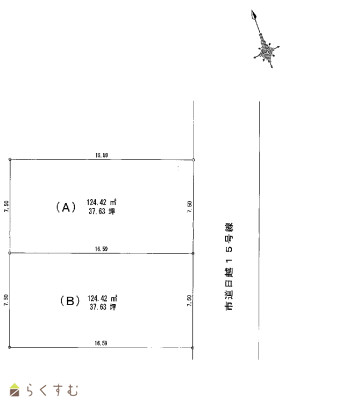
長岡市希望が丘一丁目売土地 B
新潟県長岡市希望が丘1丁目504-11
株式会社 長岡総合開発
価格
:
6,400,000
円
土地面積
:124.42㎡ /37.63坪
坪単価
:170,077円/坪
建ぺい率
:50%
容積率
:80%
2025.6.5金額改定880万円→640万円に★
◆売地◆三条市直江町三丁目
新潟県三条市直江町三丁目2640番5
株式会社 ユタカ不動産
価格
:
6,400,000
円
土地面積
:264㎡ /79.86坪
坪単価
:80,140円/坪
建ぺい率
:60%
容積率
:200%
白山町ー1
新潟県妙高市白山町1丁目1121-7
有限会社関不動産コンサルタント事務所
価格
:
6,400,000
円
土地面積
:289.55㎡ /87.58坪
坪単価
:73,076円/坪
建ぺい率
:80%
容積率
:200%
〈分譲地〉 閑静な住宅地で、徒歩圏内にドラッグストアやコンビニもあります!
上越市昭和町 分譲地【区画番号1】 (建築条件付き)
新潟県上越市昭和町2丁目
株式会社阿部建設 上越支店
価格
:
6,400,000
円
土地面積
:249.49㎡ /75.47坪
坪単価
:84,801円/坪
建ぺい率
:-
容積率
:-
生活に便利で静かな住宅地、市役所・スーパー・病院・小中学校近くに有り
土地
上越市大潟区四ツ屋浜 松並団地内
たかはし不動産
価格
:
6,400,000
円
土地面積
:294㎡ /88.93坪
坪単価
:71,966円/坪
建ぺい率
:50%
容積率
:100%
関原小学校・中学校まで徒歩10分圏内、関原公園も近く子育てには好適な立地です。
関原3丁目(土地)
新潟県長岡市関原3丁目甲191-1川西
エイブルネットワーク長岡店(株式会社Will企画)
価格
:
6,400,000
円
土地面積
:388.2㎡ /117.43坪
坪単価
:54,500円/坪
建ぺい率
:80%
容積率
:200%
【建築条件なし】 整形地・前面道路消雪パイプあり!
来迎寺白山2丁目 61坪の売地
新潟県長岡市来迎寺字白山2015番
有限会社 ハクサン
価格
:
6,410,000
円
土地面積
:202㎡ /61.1坪
坪単価
:104,909円/坪
建ぺい率
:60%
容積率
:200%
スーパー・ホームセンターまで徒歩5分 ライフライン引込済 道路消雪あり
与板安永 85坪 売土地(管理番号Y20)
新潟県長岡市与板町与板乙1642番6
株式会社 エヌ・アール・ケー総合企画
価格
:
6,420,000
円
土地面積
:283.01㎡ /85.61坪
坪単価
:74,991円/坪
建ぺい率
:60%
容積率
:200%
大潟雁子浜住宅団地(区画番号9)
新潟県上越市大潟区雁子浜304ー37
上越市資産活用課
価格
:
6,439,384
円
土地面積
:328.54㎡ /99.38坪
坪単価
:64,795円/坪
建ぺい率
:80%
容積率
:400%
大潟雁子浜住宅団地(区画番号14)
新潟県上越市大潟区雁子浜304ー43
上越市資産活用課
価格
:
6,448,792
円
土地面積
:329.02㎡ /99.52坪
坪単価
:64,798円/坪
建ぺい率
:80%
容積率
:400%
土地
上越市大潟区四ツ屋浜
たかはし不動産
価格
:
6,460,000
円
土地面積
:297㎡ /89.84坪
坪単価
:71,905円/坪
建ぺい率
:50%
容積率
:100%
価格を改定しました!ナルス柿崎店まで車で3分、徒歩10分の好立地です。
柿崎あけぼの 売土地
上越市柿崎区柿崎字あけぼの406-3
片建設株式会社
価格
:
6,500,000
円
土地面積
:244㎡ /73.81坪
坪単価
:88,063円/坪
建ぺい率
:60%
容積率
:200%
♦スーパー・コンビニ・ドラッグストア・最寄り駅1㎞圏内♦ ライフラインの敷地内引込み完備!
見附市本所1丁目 58坪の売地
新潟県見附市本所1丁目100番10・100番8の一部
株式会社 丸山商会
価格
:
6,500,000
円
土地面積
:194.84㎡ /58.93坪
坪単価
:110,300円/坪
建ぺい率
:60%
容積率
:200%
上越市大潟区物件
新潟県上越市大潟区土底浜3425 3426
有限会社 まえざわ
価格
:
6,500,000
円
土地面積
:456.48㎡ /138.08坪
坪単価
:47,074円/坪
建ぺい率
:50%
容積率
:100%
原信関原店まで徒歩圏内の角地物件です!
【売土地】上除町(65坪)
新潟県長岡市上除町1624-29
株式会社 長岡土地
価格
:
6,500,000
円
土地面積
:215㎡ /65.03坪
坪単価
:99,953円/坪
建ぺい率
:70%
容積率
:200%
小学校に隣接、子育てファミリー~高齢者向けの生活環境良好な立地。
長岡市四郎丸1丁目売土地
新潟県長岡市四郎丸一丁目1506番4、他1筆
不動産アイズ
価格
:
6,500,000
円
土地面積
:108.65㎡ /32.86坪
坪単価
:197,808円/坪
建ぺい率
:60%
容積率
:200%
フォンジェまで徒歩8分。柏崎小学校区、第一中学校区。
東本町
新潟県柏崎市東本町3丁目178-1
東北工業 株式会社
価格
:
6,500,000
円
土地面積
:257.66㎡ /77.94坪
坪単価
:83,397円/坪
建ぺい率
:80%
容積率
:400%
表示切替:
一覧表示
/
地図表示
並び替え:
指定なし
新着順
価格が安い順
価格が高い順
価格は物件の代金総額を表示しており、消費税が課税される場合は税込み価格です。
建築条件付き土地価格には、建物価格は含まれません。
物件情報の詳細については取り扱い店までお問い合わせください。
完成予想図はいずれも外構・植栽・外観等実際のものと異なることが多少あります。
CG合成の画像の場合実際と異なることが多少あります。
完成後1年以上経過したものが未入居として記載される場合があります。ご了承ください。
販売予定物件は販売開始するまで契約または予約の申し込みはできません。
ご購入の場合物件詳細や契約内容についてご自身で十分ご確認いただきますようよろしく御願いします。
建築条件付きとは…その土地に建築する建物の建築請負契約が、一定期間内に成立することを条件として売買される土地のことをいいます。請負契約成立に向けて設計プランを協議するため、土地購入者が希望する建物にするために一定の期間(概ね3ヶ月)交渉期間としその期間内に希望するプランが実現できたかどうかによって土地の購入の判断をします。納得のいくプランができず請負契約が未成立になった場合、土地契約にかかった代金(手付金など)は、すべて返却されます。
2021件
該当しました。
<前のページ
57
58
59
60
61
62
63
64
65
66
67
次のページ>
0件
がマッチ
基本条件
物件種別
売土地・分譲地
詳細種別
売土地
分譲地
価格
下限なし
100万円
250万円
500万円
1000万円
1500万円
2000万円
2500万円
3000万円
3500万円
4000万円
4500万円
5000万円
5500万円
6000万円
6500万円
7000万円
7500万円
8000万円
8500万円
9000万円
9500万円
1億円
~
上限なし
100万円
250万円
500万円
1000万円
1500万円
2000万円
2500万円
3000万円
3500万円
4000万円
4500万円
5000万円
5500万円
6000万円
6500万円
7000万円
7500万円
8000万円
8500万円
9000万円
9500万円
1億円
間取り
ワンルーム
1K
1DK
1LDK
2K
2DK
2LDK
3K
3DK
3LDK
4K
4DK
4LDK以上
専有面積
下限なし
20㎡
30㎡
40㎡
50㎡
60㎡
70㎡
80㎡
90㎡
100㎡
~
上限なし
20㎡
30㎡
40㎡
50㎡
60㎡
70㎡
80㎡
90㎡
100㎡
土地面積
下限なし
60㎡ (約18坪)
70㎡ (約21坪)
80㎡ (約24坪)
90㎡ (約27坪)
100㎡ (約30坪)
110㎡ (約33坪)
120㎡ (約36坪)
130㎡ (約39坪)
140㎡ (約42坪)
150㎡ (約45坪)
160㎡ (約48坪)
170㎡ (約51坪)
180㎡ (約54坪)
190㎡ (約57坪)
200㎡ (約60坪)
250㎡ (約75坪)
300㎡ (約90坪)
~
上限なし
60㎡ (約18坪)
70㎡ (約21坪)
80㎡ (約24坪)
90㎡ (約27坪)
100㎡ (約30坪)
110㎡ (約33坪)
120㎡ (約36坪)
130㎡ (約39坪)
140㎡ (約42坪)
150㎡ (約45坪)
160㎡ (約48坪)
170㎡ (約51坪)
180㎡ (約54坪)
190㎡ (約57坪)
200㎡ (約60坪)
250㎡ (約75坪)
300㎡ (約90坪)
建物面積
下限なし
60㎡ (約18坪)
70㎡ (約21坪)
80㎡ (約24坪)
90㎡ (約27坪)
100㎡ (約30坪)
110㎡ (約33坪)
120㎡ (約36坪)
130㎡ (約39坪)
140㎡ (約42坪)
150㎡ (約45坪)
160㎡ (約48坪)
170㎡ (約51坪)
180㎡ (約54坪)
190㎡ (約57坪)
200㎡ (約60坪)
250㎡ (約75坪)
300㎡ (約90坪)
~
上限なし
60㎡ (約18坪)
70㎡ (約21坪)
80㎡ (約24坪)
90㎡ (約27坪)
100㎡ (約30坪)
110㎡ (約33坪)
120㎡ (約36坪)
130㎡ (約39坪)
140㎡ (約42坪)
150㎡ (約45坪)
160㎡ (約48坪)
170㎡ (約51坪)
180㎡ (約54坪)
190㎡ (約57坪)
200㎡ (約60坪)
250㎡ (約75坪)
300㎡ (約90坪)
坪単価
下限なし
5万円
10万円
15万円
20万円
25万円
30万円
35万円
40万円
45万円
50万円
~
上限なし
5万円
10万円
15万円
20万円
25万円
30万円
35万円
40万円
45万円
50万円
築年数
指定なし
新築
3年以内
5年以内
10年以内
15年以内
20年以内
方位
北
北東
東
南東
南
南西
西
北西
おすすめ条件
ペット可・相談
楽器可・相談
情報公開日
指定なし
本日
3日以内
1週間以内
1ヶ月以内
0件
がマッチ
人気のあるこだわり条件
高台に立地(103)
角地(382)
整形地(710)
前道6m以上(985)
南側道路面す(383)
更地(1180)
学校近く(547)
スーパー近く(408)
最寄り駅近く(225)
閑静な住宅街(922)
分割可能(52)
建築条件なし(1492)
所有権(1594)
即引き渡し可(661)
側溝(682)
都市ガス(前面道路)(803)
LPG(154)
上水道(前面道路)(895)
下水道(前面道路)(820)
浄化槽(76)
電気(912)
都市ガス(宅地内)(819)
上水道(宅地内)(1050)
下水道(宅地内)(964)
前面道路融雪設備あり(402)
その他水道(2)
住宅向け(1405)
事業用向け(314)
別荘地(117)
田舎暮らし(219)
条件に合った物件数は、
0 件
です。
立地・環境
高台に立地(103)
角地(382)
整形地(710)
前道6m以上(985)
南側道路面す(383)
更地(1180)
学校近く(547)
スーパー近く(408)
最寄り駅近く(225)
閑静な住宅街(922)
用途・制限
分割可能(52)
建築条件なし(1492)
引渡・条件
所有権(1594)
即引き渡し可(661)
設備
側溝(682)
都市ガス(前面道路)(803)
LPG(154)
上水道(前面道路)(895)
下水道(前面道路)(820)
浄化槽(76)
電気(912)
都市ガス(宅地内)(819)
上水道(宅地内)(1050)
下水道(宅地内)(964)
前面道路融雪設備あり(402)
その他水道(2)
その他
住宅向け(1405)
事業用向け(314)
別荘地(117)
田舎暮らし(219)
条件に合った物件数は、
0 件
です。
アパート・マンション・一戸建て
/
駐車場
/
貸土地
/
店舗
/
事務所
/
倉庫・工場
新築分譲マンション
/
中古マンション
/
新築一戸建て
/
中古一戸建て
/
売土地
/
投資物件・その他
マンション
/
一戸建て
/
土地
建てる・リフォーム
物件掲載企業一覧
掲載希望の企業様へ
新潟の不動産情報サイト
サービス利用規約
運営会社
サイトマップ
プライバシーポリシー
お問い合わせ
リンク
Copyright (C)
株式会社 コモンライフ・コーポレーション
. All Rights Reserved.
新潟・長岡・柏崎の賃貸・マンション・アパート・住宅の不動産物件情報サイト
不動産検索サイト「らくすむ」及び関連サイトに記載の不動産情報は、会員規約に則り、情報提供会社様の責任のもとに発信されております。
不動産の賃借、購入に関しては賃借者、購入者ご自身が情報を確認され、会社企業様から説明を受けられたうえで判断をお願いいたします。
不動産検索サイト「らくすむ」及び関連サイトに記載の不動産情報、写真、デザイン、コンテンツなどの
無断転載・転用・複製
など禁止します。