新潟県長岡市高町3丁目858-114 中古一戸建て 4LDK 17,980,000円の物件情報

リノベーション住宅【ReLive:リライブ】 ×にいがた安心こむすび住宅 子育て世帯・若者夫婦世帯 限定価格、4LDK+駐車3台可、国の定めた「安心R住宅」の基準に適合予定、第三者機関によるインスペクション(建物現況調査)実施、各種税制優遇有!

物件名/所在地 詳細 価格
長岡市高町リノベーション住宅 ReLive:リライブ
新潟県長岡市高町3丁目858-114
  • 土地面積
    :246.98㎡ /74.71坪
  • 建物面積
    :115.92㎡ /35.06坪
  • 間取り
    :4LDK
  • 築年月
    :1996年11月
17,980,000
  • 長岡市高町リノベーション住宅 ReLive:リライブ
    株式会社アクシア・トラスト
  • この物件を問い合わせる/無料
  • TEL: 0258-86-4227 0258-86-4227

物件画像

外観
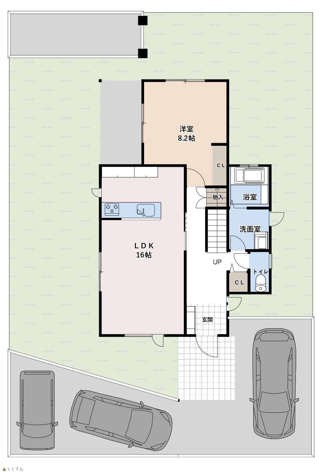
間取り
物件画像
※画像クリックで拡大表示
外観
物件画像
※画像クリックで拡大表示
1F間取り図
詳細画像
物件画像
2F間取り図
物件画像
キッチン イメージ画像
物件画像
カップボード イメージ画像
物件画像
ユニットバス 移イメージ画像
物件画像
洗面化粧台 イメージ画像
物件画像
トイレ イメージ画像
物件画像
建具 イメージ画像
物件画像
建具 一部
物件画像
子育て世帯に優しいリノベーション住宅です


物件概要

4LDK+駐車3台可 、対面キッチンLDK、!新潟県の「にいがた安心こむすび住宅推進事業」の補助対象 となっている子育て世帯に優しいリノベーション住宅です。
物件コード 00339-200072
物件名 長岡市高町リノベーション住宅 ReLive:リライブ
交通 駅:信越線 宮内駅から徒歩45分、バス:高町団地から徒歩5分
物件所在地 新潟県長岡市高町3丁目858-114
物件種別 中古一戸建て
構造 木造 階建 地上2階建
建ぺい率/容積率 50%/80%
建物面積 1階 62.93㎡/ 2階 52.99㎡/ 計 115.92㎡ /35.06坪
土地面積 246.98㎡ /74.71坪
築年月 1996年11月(築29年)
入居(引き渡し)時期 相談
用途地域 無指定 地目 宅地
都市計画 市街化調整区域 学校区 柿小学校(1,094m)・旭岡中学校(1,500m)
形状 - 道路 南東側約8.0m公道、北西側約4.0m公道(遊歩道)
私道 - その他の制限 ・本物件は市街化調整区域内にあり、原則建築はできませんが、都市計画法第34条に定める開発許可の基準に基づき造成された開発区域内にあるため、一定の建築物の建築は可能です
  • 長岡市高町リノベーション住宅 ReLive:リライブ
    株式会社アクシア・トラスト
  • この物件を問い合わせる/無料
  • TEL: 0258-86-4227 0258-86-4227

物件詳細情報

所在階/階数 - 号室 -
販売価格 17,980,000円 方位 南東
間取り 4LDK (洋室:8.2、8、8、6)
LDK16
専有面積 - バルコニー面積 -
その他面積 - 駐車場 -
管理費 - 修繕積立金 -
現況 空家
仲介手数料 620,339円
利用制限 -
設備 高台に立地、日当り良好、閑静な住宅街、新築時図面あり、インスペクション報告書あり、建物確認・完了検査済証あり、瑕疵担保保険付き、LDK15帖以上、全室フローリング、駐車2台可能、駐車3台以上可能、南向き、TVインターホン、複層ガラス、デインプルキー、システムキッチン、カウンターキッチン、浄水器、食器洗浄乾燥機、3口コンロ、ガスコンロ設置済み、追いだき機能付き、浴室乾燥機、バス1坪以上、温水洗浄便座、トイレ2か所以上、シャワー付き洗面台、省エネ給湯機、都市ガス、上水道、下水道、全居室収納あり、シューズBOX、内装リフォーム済み、外装リフォーム済み、リノベーション物件
取引態様 売主
備考 ■主なリノベーション内容(令和8年2月完了予定)
【外部】
・外壁新品、屋根塗装、Low-Eガラスサッシ新品、玄関ドア新品(スマートキー対応)
【内部】
・システムキッチン新品、カップボード新品、システムバス新品、洗面化粧台新品、トイレ新品(2箇所)、給湯器新品、フロア材新品、シューズボックス新品、建具新品、クロス貼替、照明器具新品、モニターホン新品、白蟻防蟻工事、ハウスクリーニング、駐車場増設、間取り変更等

■保証等
・安心R住宅、第三者機関によるインスペクション(建物現況調査)実施、かし保険5年(リノベーション工事完了後適合予定)、白アリ防除保証5年、定期点検制度有

■その他
・子育て世帯:15歳以下の子を有する世帯。
・若者夫婦世帯:夫婦のいずれかが39歳以下の世帯。
・子育て世帯・若者夫婦世帯以外の方の販売価格は弊社にお問合せください。
・安心R住宅(全宅連)リフォーム予定。
・図面等と現状が異なる場合は現状を優先とします。
・物件ご購入の際は仲介業者媒介によるご契約となります。
・本物件は市街化調整区域内にあり、原則建築はできませんが、都市計画法第34条に定める開発許可の基準に基づき造成された開発区域内にあるため、一定の建築物の建築は可能です。
取り扱い会社

株式会社アクシア・トラスト

新潟県長岡市日赤町2-4-12

情報登録日 2025/10/28 次回更新予定日 2026/02/17
取引条件有効期限 2025/12/31
  • 長岡市高町リノベーション住宅 ReLive:リライブ
    株式会社アクシア・トラスト
  • この物件を問い合わせる/無料
  • TEL: 0258-86-4227 0258-86-4227

この物件の地図・周辺情報・行政情報

この物件の周辺情報・行政情報を詳しく見る
【周辺情報】
物件の近くにあるコンビニや銀行・学校など、アイコン付のマップで詳しく表示できます!
【行政情報】
水道料や下水道料・ガス料金など、暮らしに関係のある情報を表示しています。

担当取扱い店舗情報

取扱い店舗画像
株式会社アクシア・トラスト
TEL: 0258-86-4227
所在地: 新潟県長岡市日赤町2-4-12
交通: 長岡駅
営業時間: 9:00~18:00/定休日:不定休
免許番号: 新潟県知事(1)第5668号
所属団体名: 公社 新潟県宅地建物取引協会 長岡支部
取引態様: 売主
ホームページ: https://axia-trust.co.jp