新潟県長岡市花園3丁目 新築一戸建て 4LDK 28,800,000円の物件情報

2025年11月完成。リビング隣の6帖の空間。子どもの遊びや昼寝に最適、将来は仕切って客間や寝室にも。洗面室は3帖あり、洗う・干す・しまうが1室で完結。キッチンと洗面室が隣接しており、家事動線がスムーズ。

物件名/所在地 詳細 価格
花園3丁目 新築戸建
新潟県長岡市花園3丁目
  • 土地面積
    :145.96㎡ /44.15坪
  • 建物面積
    :92.74㎡ /28.05坪
  • 間取り
    :4LDK
  • 築年月
    :2025年11月
28,800,000
  • 花園3丁目 新築戸建
    有限会社 ブライトサクセス
  • この物件を問い合わせる/無料
  • TEL: 0258-35-2220 0258-35-2220

物件画像

外観
間取り
物件画像
※画像クリックで拡大表示
外観パース
物件画像
※画像クリックで拡大表示
間取り
詳細画像
物件画像
リビング
物件画像
リビング
物件画像
リビング
物件画像
キッチン
物件画像
バスルーム
物件画像
トイレ
物件画像
洗面所
物件画像
洋室
物件画像
洋室
物件画像
洋室
物件画像
洋室
物件画像
洋室
物件画像
収納
物件画像
サンルーム
物件画像
玄関
物件画像
印刷用地図
動画


物件概要

パントリーは毎日使う食品やストック品をまとめて収納でき、家事効率をアップ。2階のサンルームでは大物洗濯も天候を気にせず干せます。雨や雪の日も安心の土間収納は、自転車やベビーカーもそのまま置け、コート掛けで濡れた衣類の一時置き場にも便利。大容量シューズボックスには靴や帽子、手袋、季節用品まで収納可能で、外と内をつなぐ自由な空間です。
物件コード 00320-200216
物件名 花園3丁目 新築戸建
交通 駅:信越線 長岡駅から徒歩24分、バス:花園団地入口から徒歩1分
物件所在地 新潟県長岡市花園3丁目
物件種別 新築一戸建て
構造 木造合金メッキ鋼板葺 階建 地上2階建
建ぺい率/容積率 50%/100%
建物面積 計 92.74㎡ /28.05坪
土地面積 145.96㎡ /44.15坪
築年月 2025年11月(築6ヶ月)
入居(引き渡し)時期 相談
用途地域 第1種低層住居専用地域 地目 宅地
都市計画 市街化区域 学校区 豊田小学校(961m)・旭岡中学校(1,009m)
形状 - 道路 西側 市道 幅員16.0m
私道 - その他の制限 第1種高度地区 建築基準法第22条第1項の規定により指定する区域 まちなか居住区域
  • 花園3丁目 新築戸建
    有限会社 ブライトサクセス
  • この物件を問い合わせる/無料
  • TEL: 0258-35-2220 0258-35-2220

物件詳細情報

所在階/階数 - 号室 -
販売価格 28,800,000円 方位 北西
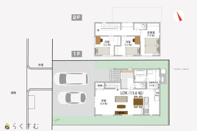
間取り 4LDK (洋室:7、6、5.2、5.2)
LDK13.6
専有面積 - バルコニー面積 -
その他面積 - 駐車場 -
管理費 - 修繕積立金 -
現況 指定なし
仲介手数料 1,016,400円
利用制限 -
設備 整形地、前面道路6m以上、日当り良好、閑静な住宅街、スーパー近く、長期優良住宅、瑕疵担保保険付き、全室フローリング、駐車場2台以上、複層ガラス、カウンターキッチン、上水道、下水道、電気、全居室収納あり、シューズBOX
取引態様 仲介
備考 引渡は2026年2月(モデルハウスとして使用します。ご契約は随時可能です)
※写真の家具はディスプレイ用です
取り扱い会社

有限会社 ブライトサクセス

新潟県長岡市新町1-1-2

情報登録日 2026/04/20 次回更新予定日 2026/05/22
取引条件有効期限 2026/10/14
  • 花園3丁目 新築戸建
    有限会社 ブライトサクセス
  • この物件を問い合わせる/無料
  • TEL: 0258-35-2220 0258-35-2220

この物件の地図・周辺情報・行政情報

この物件の周辺情報・行政情報を詳しく見る
【周辺情報】
物件の近くにあるコンビニや銀行・学校など、アイコン付のマップで詳しく表示できます!
【行政情報】
水道料や下水道料・ガス料金など、暮らしに関係のある情報を表示しています。
マルイ 長岡学校町店(スーパー)まで590m
原信 長岡花園店(スーパー)まで680m
長岡花園郵便局(郵便局)まで620m

※カメラのアイコンがある場合は、マウスをポイントするとその施設の画像がご覧いただけます。


担当取扱い店舗情報

取扱い店舗画像
有限会社 ブライトサクセス
TEL: 0258-35-2220
所在地: 新潟県長岡市新町1-1-2
交通: 長岡駅
営業時間: 午前10時00分~午後7時 /定休日:オンラインサービス:午前9時30分~午後9時
免許番号: 新潟県知事(1)第5629号
所属団体名: 公社 新潟県宅地建物取引協会 新潟支部
取引態様: 仲介
ホームページ: https://bright-success.net/