新潟県新潟市中央区弁天3丁目3番17万代アーバン日東 中古マンション 1R 7,000,000円の物件情報

新潟駅徒歩5分!2つの窓から光が差し込む開放感のあるワンルーム。

物件名/所在地 詳細 価格
万代アーバン日東
※号室
新潟県新潟市中央区弁天3丁目3番17万代アーバン日東
  • 専有面積
    :37.44㎡ /11.32坪
  • 間取り
    :1R
  • 築年月
    :1989年10月
7,000,000
  • 万代アーバン日東
    有限会社 ブライトサクセス
  • この物件を問い合わせる/無料
  • TEL: 0258-35-2220 0258-35-2220

物件画像

外観
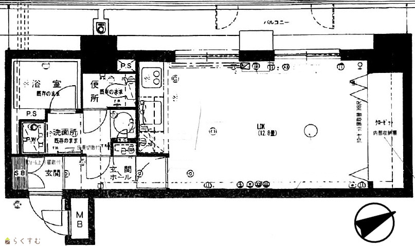
間取り
物件画像
※画像クリックで拡大表示
外観
物件画像
※画像クリックで拡大表示
間取り
詳細画像
物件画像
LDK:家具配置イメージ
物件画像
リビング
物件画像
リビング
物件画像
リビング
物件画像
キッチン
物件画像
キッチン
物件画像
キッチン
物件画像
収納
物件画像
洗面所
物件画像
バスルーム
物件画像
トイレ
物件画像
洗面所
物件画像
玄関
物件画像
エントランス
物件画像
エントランス
物件画像
エントランス
物件画像
共用部
物件画像
眺望
物件画像
印刷用地図
動画


物件概要

新潟駅徒歩5分の好立地で通勤・通学に便利 。万代弁天エリアで買い物・飲食店も充実 。12.8帖の広々ワンルームで家具配置もしやすい 。ベランダに面した窓が2つあり、開放感たっぷり 。眺望良好で、日中は明るく夜景も楽しめる 。単身の方・初めての一人暮らし・アクセス重視の方におすすめ
物件コード 00320-200210
物件名 万代アーバン日東
交通 駅:上越新幹線 新潟駅から徒歩9分、バス:弁天二丁目から徒歩4分
物件所在地 新潟県新潟市中央区弁天3丁目3番17万代アーバン日東
物件種別 中古マンション
構造 鉄骨鉄筋コン 階建 地上11階建
建ぺい率/容積率 80%/600%
建物面積 計 37.44㎡ /11.32坪
土地面積 -
築年月 1989年10月(築36年)
入居(引き渡し)時期 相談
用途地域 商業地域 地目 宅地
都市計画 市街化区域 学校区 南万代小学校(649m)・宮浦中学校(850m)
形状 - 道路 -
私道 - その他の制限 道路斜線制限 隣地斜線制限 準防火地域 駐車場整備地区
  • 万代アーバン日東
    有限会社 ブライトサクセス
  • この物件を問い合わせる/無料
  • TEL: 0258-35-2220 0258-35-2220

物件詳細情報

所在階/階数 6階/11階 号室 ※号室
販売価格 7,000,000円 方位 北西
間取り 1R
LDK12.8
専有面積 37.44㎡ /11.32坪 バルコニー面積 13.77㎡ /4.16坪
その他面積 - 駐車場 -
管理費 月額9500円 修繕積立金 月額1850円
現況 空家
仲介手数料 330,000円
利用制限 -
設備 10階建て以上、2階以上、日当り良好、洗濯機置き場、エレベーター、宅配BOX、全室フローリング、駐輪場、3口コンロ、エアコン、内装リフォーム済み
取引態様 一般
備考 管理会社:日本ハウズイング株式会社
取り扱い会社

有限会社 ブライトサクセス

新潟県長岡市新町1-1-2

情報登録日 2025/12/08 次回更新予定日 2026/01/02
取引条件有効期限 2026/10/09
  • 万代アーバン日東
    有限会社 ブライトサクセス
  • この物件を問い合わせる/無料
  • TEL: 0258-35-2220 0258-35-2220

この物件の地図・周辺情報・行政情報

この物件の周辺情報・行政情報を詳しく見る
【周辺情報】
物件の近くにあるコンビニや銀行・学校など、アイコン付のマップで詳しく表示できます!
【行政情報】
水道料や下水道料・ガス料金など、暮らしに関係のある情報を表示しています。

担当取扱い店舗情報

取扱い店舗画像
有限会社 ブライトサクセス
TEL: 0258-35-2220
所在地: 新潟県長岡市新町1-1-2
交通: 長岡駅
営業時間: 午前10時00分~午後6時 /定休日:オンラインサービス:午前9時30分~午後9時
免許番号: 新潟県知事(1)第5629号
所属団体名: 公社 新潟県宅地建物取引協会 新潟支部
取引態様: 一般
ホームページ: https://bright-success.net/