ウオロク空港通り店まで徒歩12分、ドラッグ・トップス空港通り店まで徒歩9分の立地。前面道路も広く、車は3台駐車可能。ファミリーにおすすめの3LDK
| 物件名/所在地 | 詳細 | 価格 |
|---|---|---|
| 幸栄2丁目新築一戸建
新潟県新潟市東区幸栄2丁目20-19 |
|
24,800,000円 |
| 吹抜けで2階とつながるリビング、どこにいても家族の気配を感じられます。リビングにはワークスペースあります。二階ホールにもエアコン。季節ごとの入れ替え不要、頼もしいウォークインクローゼットあり。1.5帖の書斎つきで仕事部屋にも趣味部屋にもお使いいただけます。 | |||
| 物件コード | 00320-200171 | ||
|---|---|---|---|
| 物件名 | 幸栄2丁目新築一戸建 | ||
| 交通 | 駅:白新線 大形駅から徒歩67分、バス:朝鮮学校前から徒歩4分 | ||
| 物件所在地 | 新潟県新潟市東区幸栄2丁目20-19 | ||
| 物件種別 | 新築一戸建て | ||
| 構造 | 木造 | 階建 | 地上2階建 |
| 建ぺい率/容積率 | 60%/200% | ||
| 建物面積 | 計 99.36㎡ /30.05坪 | ||
| 土地面積 | 142.87㎡ /43.21坪 | ||
| 築年月 | 2024年11月(築1年) | ||
| 入居(引き渡し)時期 | 相談 | ||
| 用途地域 | 第2種住居地域 | 地目 | 宅地 |
| 都市計画 | 市街化区域 | 学校区 | 下山小学校(1,307m)・下山中学校(1,562m) |
| 形状 | 間口 11.5m | 道路 | 前面道路幅員・北17m |
| 私道 | 私道負担無 | その他の制限 | 景観法による規制有 |
| 所在階/階数 | - | 号室 | - |
|---|---|---|---|
| 販売価格 | 24,800,000円 | 方位 | 北 |
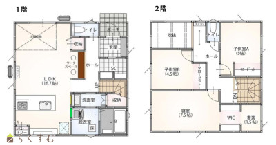
| 間取り |
3LDK (洋室:7.5、5.0、4.5) LDK16.7 |
||
| 専有面積 | - | バルコニー面積 | - |
| その他面積 | 2.43㎡ /0.73坪 書斎1.5帖 | 駐車場 | - |
| 管理費 | - | 修繕積立金 | - |
| 現況 | 空家 | ||
| 仲介手数料 | 884,400円 | ||
| 利用制限 | - | ||
| 設備 | 整形地、前面道路6m以上、日当り良好、LDK15畳以上、全室フローリング、駐車場3台以上、TVインターホン、複層ガラス、システムキッチン、カウンターキッチン、IHクッキングヒーター、バス1坪以上、温水洗浄便座、シャワー付き洗面台、エアコン、オール電化、省エネ給湯、高気密高断熱住宅、上水道、下水道、電気、ウォークインクローゼット、全居室収納あり、シューズインクローゼット | ||
| 取引態様 | 仲介 | ||
| 備考 | 超高性能 ・二重断熱で家の中の温度を逃がさない! ・24時間熱交換換気扇で換気時のロスを削減! ・エアコン1台で1年中快適だから光熱費が抑えられる! |
||
| 取り扱い会社 |
有限会社 ブライトサクセス 新潟県長岡市新町1-1-2 |
||
| 情報登録日 | 2026/02/02 | 次回更新予定日 | 2026/02/16 |
| 取引条件有効期限 | 2026/07/31 | ||
|
新潟物見山郵便局(郵便局)までm セブン-イレブン 新潟浜谷町店(コンビニ)まで500m 清水フードセンター 河渡店(スーパー)まで330m |
新潟信用金庫 物見山支店(銀行)まで570m 新潟物見山郵便局(郵便局)まで690m |
※カメラのアイコンがある場合は、マウスをポイントするとその施設の画像がご覧いただけます。
| TEL: | 0258-35-2220 | |
|---|---|---|
| 所在地: | 新潟県長岡市新町1-1-2 | |
| 交通: | 長岡駅 | |
| 営業時間: | 午前10時00分~午後7時 /定休日:オンラインサービス:午前9時30分~午後9時 | |
| 免許番号: | 新潟県知事(1)第5629号 | |
| 所属団体名: | 公社 新潟県宅地建物取引協会 新潟支部 | |
| 取引態様: | 仲介 | |
| ホームページ: | https://bright-success.net/ | |