新潟県妙高市朝日町1丁目2-7 中古一戸建て 4LDK 28,000,000円の物件情報

新井駅から徒歩1分の好立地。住居&収益物件でもあるので用途の幅が広がります。

物件名/所在地 詳細 価格
新井駅から徒歩1分の住居&収益物件
新潟県妙高市朝日町1丁目2-7
  • 土地面積
    :275.52㎡ /83.34坪
  • 建物面積
    :375.51㎡ /113.59坪
  • 間取り
    :4LDK
  • 築年月
    :1978年8月
28,000,000
  • 新井駅から徒歩1分の住居&収益物件
    楽栄不動産株式会社
  • この物件を問い合わせる/無料
  • TEL: 0255-72-0003 0255-72-0003

物件画像

外観
間取り
物件画像
※画像クリックで拡大表示
外観
物件画像
※画像クリックで拡大表示
間取り
詳細画像
物件画像
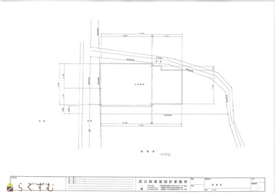
全体の配置図
物件画像
外観 南側より
物件画像
外観 北東側より
物件画像
前面はアーケードがあります
物件画像
キッチン(H13リフォーム済み)
物件画像
トイレ
物件画像
洗面台
物件画像
洗濯機置き場
物件画像
3階和室 10帖+8帖
物件画像
3階 二重サッシ
物件画像
2階 和室 6帖+8帖
物件画像
2階タンス置き場
物件画像
3階バルコニー
物件画像
お庭
物件画像
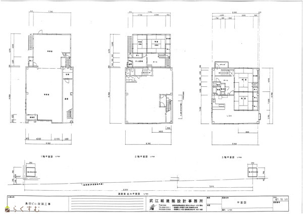
2階空きテナント。現在スケルトンなので住居にも変更可。
物件画像
2階空きテナント
物件画像
住居と2階テナントへの階段は別々になっています。
物件画像
浴室
物件画像
印刷用地図


物件概要

毎月家賃収入を得ながら住まうワンランク上のライフプラン♪
物件コード 00265-200188
物件名 新井駅から徒歩1分の住居&収益物件
交通 駅:妙高はねうまライン 新井駅から徒歩1分、バス:朝日町ショッピングプラザ前から徒歩2分
物件所在地 新潟県妙高市朝日町1丁目2-7
物件種別 中古一戸建て
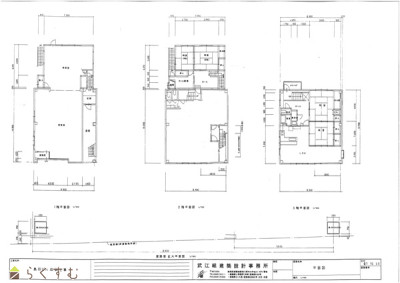
構造 鉄骨 階建 地上3階建
建ぺい率/容積率 80%/400%
建物面積 1階 130.04㎡/ 2階 144.5㎡/ 3階 100.97㎡/ 計 375.51㎡ /113.59坪
土地面積 275.52㎡ /83.34坪
築年月 1978年8月(築47年)
入居(引き渡し)時期 相談
用途地域 商業地域 地目 宅地  (現状:宅地)
都市計画 非線引き都市計画区域 学校区 新井中央小学校(478m)・新井中学校(1,495m)
形状 間口 12m × 奥行 27m 道路 市道/幅員歩道3.5m+車道9.0m+歩道3.5m/除雪道
私道 - その他の制限 1階テナント賃貸中、2階スケルトン空き/景観法
  • 新井駅から徒歩1分の住居&収益物件
    楽栄不動産株式会社
  • この物件を問い合わせる/無料
  • TEL: 0255-72-0003 0255-72-0003

物件詳細情報

所在階/階数 - 号室 -
販売価格 28,000,000円 方位
間取り 4LDK (和室:10畳、8畳、8畳、6畳)
専有面積 - バルコニー面積 -
その他面積 - 駐車場 -
管理費 - 修繕積立金 -
現況 空家
仲介手数料 990,000円
利用制限 -
設備 システムキッチン、IHクッキングヒーター、ルーフバルコニー、都市ガス、上水道、下水道、事業向け
取引態様 一般
備考 ■家賃収入あり。60年以上変わらず借主様が賃貸中の安定物件です。
■駐車場は周辺駐車場を賃貸していただきます。
取り扱い会社

楽栄不動産株式会社

新潟県妙高市雪森645-1

情報登録日 2026/02/27 次回更新予定日 2026/05/22
取引条件有効期限 2026/03/31
  • 新井駅から徒歩1分の住居&収益物件
    楽栄不動産株式会社
  • この物件を問い合わせる/無料
  • TEL: 0255-72-0003 0255-72-0003

この物件の地図・周辺情報・行政情報

この物件の周辺情報・行政情報を詳しく見る
【周辺情報】
物件の近くにあるコンビニや銀行・学校など、アイコン付のマップで詳しく表示できます!
【行政情報】
水道料や下水道料・ガス料金など、暮らしに関係のある情報を表示しています。

担当取扱い店舗情報

取扱い店舗画像
楽栄不動産株式会社
TEL: 0255-72-0003
所在地: 新潟県妙高市雪森645-1
交通: 妙高はねうまライン北井駅
営業時間: 8時~17時/定休日:土・日・祝日、その他夏季・年末年始
免許番号: 新潟県知事(12)第2463号
所属団体名: 公社 新潟県宅地建物取引協会 上越支部
取引態様: 一般
ホームページ: https://rakuei.info/