新潟県上越市夷浜119番19 中古一戸建て 5LDK 5,000,000円の物件情報

保育園~中学校まで徒歩圏内。近隣に運動広場。海浜道路まで270m。

物件名/所在地 詳細 価格
夷浜売家・駐車場500万円
新潟県上越市夷浜119番19
  • 土地面積
    :500.02㎡ /151.25坪
  • 建物面積
    :171.94㎡ /52.01坪
  • 間取り
    :5LDK
  • 築年月
    :1979年9月
5,000,000
  • 夷浜売家・駐車場500万円
    信濃土地株式会社 上越支店
  • この物件を問い合わせる/無料
  • TEL: 070-6663-1348 070-6663-1348

物件画像

外観
間取り
物件画像
※画像クリックで拡大表示
南側の県道から住宅撮影
物件画像
※画像クリックで拡大表示
詳細画像
物件画像
前面道路から住宅撮影
物件画像
南側のドッグランと物置
物件画像
カーポート付の駐車場
物件画像
家から280mで海岸道路。釣りの名所
物件画像
案内図周辺施設
物件画像
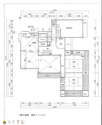
1階平面図
物件画像
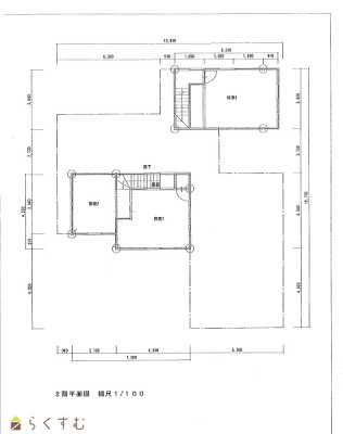
2階平面図
物件画像
地図画像


物件概要

LDKフルリフォーム済。
物件コード 00260-200046
物件名 夷浜売家・駐車場500万円
交通 駅:ほくほく線 犀潟駅から徒歩23分、バス:夷浜中から徒歩2分
物件所在地 新潟県上越市夷浜119番19
物件種別 中古一戸建て
構造 木造 階建 地上1階地下2階建
建ぺい率/容積率 60%/200%
建物面積 1階 142.13㎡/ 2階 29.81㎡/ 計 171.94㎡ /52.01坪
土地面積 500.02㎡ /151.25坪
築年月 1979年9月(築46年)
入居(引き渡し)時期 相談
用途地域 第1種中高層住居専用地域 地目 宅地  (現状:宅地)
都市計画 市街化区域 学校区 八千浦小学校(935m)・八千浦中学校(1,328m)
形状 間口 16m × 奥行 20m 道路 宅地部分私道幅員3.8m、市道幅員4m
私道 - その他の制限 法22条指定区域
  • 夷浜売家・駐車場500万円
    信濃土地株式会社 上越支店
  • この物件を問い合わせる/無料
  • TEL: 070-6663-1348 070-6663-1348

物件詳細情報

所在階/階数 - 号室 -
販売価格 5,000,000円 方位
間取り 5LDK (和室:8畳、8畳) (洋室:10、9、6)
LDK26
専有面積 - バルコニー面積 -
その他面積 - 駐車場 -
管理費 - 修繕積立金 -
現況 空家
仲介手数料 330,000円
利用制限 -
設備 日当り良好、閑静な住宅街、スーパー近く、LDK15帖以上、駐車3台以上可能、南向き、システムキッチン、3口コンロ、追いだき機能付き、バス1坪以上、温水洗浄便座、シャワー付き洗面台、エアコンあり、省エネ給湯機、ウッドデッキ・テラス、都市ガス、上水道、浄化槽、2世帯向き、即引き渡し可能
取引態様 専任
備考 建物南側は道路と共有耕作の畑が広がり、県道まで眺望が広がり開放的です。
取り扱い会社

信濃土地株式会社 上越支店

新潟県上越市大豆1-8-1グランディールビル

情報登録日 2025/03/13 次回更新予定日 2025/11/17
取引条件有効期限 2024/11/09
  • 夷浜売家・駐車場500万円
    信濃土地株式会社 上越支店
  • この物件を問い合わせる/無料
  • TEL: 070-6663-1348 070-6663-1348

この物件の地図・周辺情報・行政情報

この物件の周辺情報・行政情報を詳しく見る
【周辺情報】
物件の近くにあるコンビニや銀行・学校など、アイコン付のマップで詳しく表示できます!
【行政情報】
水道料や下水道料・ガス料金など、暮らしに関係のある情報を表示しています。

担当取扱い店舗情報

取扱い店舗画像
信濃土地株式会社 上越支店
TEL: 070-6663-1348
所在地: 新潟県上越市大豆1-8-1グランディールビル
交通: 妙高はねうまライン春日山駅
営業時間: 10:00~17:00/定休日:水曜日
免許番号: 新潟県知事(12)第2097号
所属団体名: 公社 新潟県宅地建物取引協会 上越支部
取引態様: 専任
ホームページ: http://www.sinano-tochi.co.jp/