新潟県上越市上昭和町7-32 売土地・分譲地 3,600,000円の物件情報

11/22値下げ!電柱宅内移設&側溝フタ付工事決定!キレイになります。丘の上で、東の山並からの日の出、夜景・月見が楽しめます。

物件名/所在地 詳細 価格
上昭和町解体更地渡し土地340万円
新潟県上越市上昭和町7-32
  • 土地面積
    :291.58㎡ /88.2坪
  • 坪単価
    :40,816円/坪
  • 建ぺい率
    :50%
  • 容積率
    :80%
3,600,000
  • 上昭和町解体更地渡し土地340万円
    信濃土地株式会社 上越支店
  • この物件を問い合わせる/無料
  • TEL: 070-6663-1348 070-6663-1348

物件画像

外観
間取り
物件画像
※画像クリックで拡大表示
丘の下から敷地臨む
物件画像
※画像クリックで拡大表示
間取り
詳細画像
物件画像
東側庭からの眺望
物件画像
南側庭からの眺望
物件画像
南側の赤道
物件画像
解体家屋
物件画像
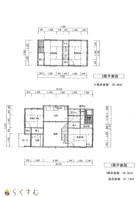
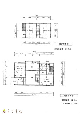
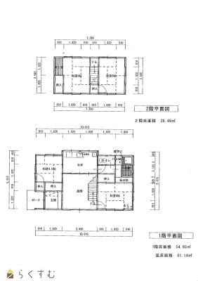
1階2階平面図
物件画像
現地案内図


物件概要

ショッピングゾーン、小学校が近く利便性が高いです。
物件コード 00260-200030
物件名 上昭和町解体更地渡し土地340万円
交通 駅:妙高はねうまライン 高田駅から徒歩23分、バス:飯から徒歩8分
物件所在地 新潟県上越市上昭和町7-32
物件種別 売土地・分譲地
物件区分 売土地
構造 - 階建 -
建ぺい率/容積率 50%/80%
建物面積 -
土地面積 291.58㎡ /88.2坪
築年月 -
入居(引き渡し)時期 相談
用途地域 第1種低層住居専用地域 地目 宅地  (現状:宅地)
都市計画 市街化区域 学校区 飯小学校(364m)・城北中学校(2,008m)
形状 間口 24m × 奥行 25m 道路 上越市道 除雪道
私道 - その他の制限 -
  • 上昭和町解体更地渡し土地340万円
    信濃土地株式会社 上越支店
  • この物件を問い合わせる/無料
  • TEL: 070-6663-1348 070-6663-1348

物件詳細情報

所在階/階数 - 号室 -
販売価格 3,600,000円 方位 -
間取り -
専有面積 - バルコニー面積 -
その他面積 - 駐車場 -
管理費 - 修繕積立金 -
現況 -
仲介手数料 180,400円
利用制限 -
設備 高台に立地、学校近く、スーパー近く、閑静な住宅街、建築条件なし、所有権、側溝、電気、都市ガス(宅地内)、上水道(宅地内)、下水道(宅地内)、住宅向け、別荘地、田舎暮らし
取引態様 専任
備考 -
取り扱い会社

信濃土地株式会社 上越支店

新潟県上越市大豆1-8-1グランディールビル

情報登録日 2025/11/22 次回更新予定日 2026/04/20
取引条件有効期限 2024/11/08
  • 上昭和町解体更地渡し土地340万円
    信濃土地株式会社 上越支店
  • この物件を問い合わせる/無料
  • TEL: 070-6663-1348 070-6663-1348

この物件の地図・周辺情報・行政情報

この物件の周辺情報・行政情報を詳しく見る
【周辺情報】
物件の近くにあるコンビニや銀行・学校など、アイコン付のマップで詳しく表示できます!
【行政情報】
水道料や下水道料・ガス料金など、暮らしに関係のある情報を表示しています。

担当取扱い店舗情報

取扱い店舗画像
信濃土地株式会社 上越支店
TEL: 070-6663-1348
所在地: 新潟県上越市大豆1-8-1グランディールビル
交通: 妙高はねうまライン春日山駅
営業時間: 10:00~17:00/定休日:水曜日
免許番号: 新潟県知事(12)第2097号
所属団体名: 公社 新潟県宅地建物取引協会 上越支部
取引態様: 専任
ホームページ: http://www.sinano-tochi.co.jp/