新潟県上越市名立区名立大町1685 中古一戸建て 6DK 900,000円の物件情報

海岸まで徒歩4分! 道の駅「うみてらす名立」まで徒歩8分! 名立谷浜ICまで車で6分!

物件名/所在地 詳細 価格
名立区 中古戸建
新潟県上越市名立区名立大町1685
  • 土地面積
    :24㎡ /7.26坪
  • 建物面積
    :103.29㎡ /31.24坪
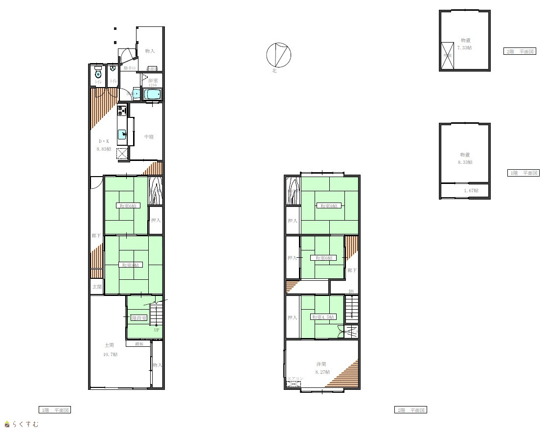
  • 間取り
    :6DK
  • 築年月
    :1964年8月
900,000
  • 名立区 中古戸建
    越乃エステート株式会社
  • この物件を問い合わせる/無料
  • TEL: 025-520-6623 025-520-6623

物件画像

外観
間取り
物件画像
※画像クリックで拡大表示
外観
物件画像
※画像クリックで拡大表示
間取り
詳細画像
物件画像
キッチン
物件画像
トイレ
物件画像
浴室
物件画像
洗面台
物件画像
1F和室6帖
物件画像
2F洋室8.2帖
物件画像
2F和室6帖
物件画像
1F土間寸法
物件画像
南側納屋
物件画像
2Fからの日本海眺望
物件画像
ポケットビーチ 徒歩5分
物件画像
道の駅 うみテラス名立 徒歩8分
物件画像
名立漁港 徒歩10分
物件画像
印刷用地図


物件概要

セブンイレブン徒歩3分です。ちょっとした買い物にも便利です!
物件コード 00250-200075
物件名 名立区 中古戸建
交通 駅:日本海ひすいライン 名立駅から徒歩15分、バス:診療所入口から徒歩5分
物件所在地 新潟県上越市名立区名立大町1685
物件種別 中古一戸建て
構造 木造 階建 地上2階建
建ぺい率/容積率 -
建物面積 1階 67.76㎡/ 2階 35.53㎡/ 計 103.29㎡ /31.24坪
土地面積 24㎡ /7.26坪
築年月 1964年8月(築61年)
入居(引き渡し)時期 随時入居(引き渡し)可
用途地域 無指定 地目 雑種他  (現状:宅地)
都市計画 都市計画区域外 学校区 宝田小学校(2,691m)・名立中学校(943m)
形状 間口 4.6m × 奥行 30m 道路 上越市道 幅員5.8m 除雪道路
私道 - その他の制限 -
  • 名立区 中古戸建
    越乃エステート株式会社
  • この物件を問い合わせる/無料
  • TEL: 025-520-6623 025-520-6623

物件詳細情報

所在階/階数 - 号室 -
販売価格 900,000円 方位
間取り 6DK (和室:6畳、8畳、8畳、6畳、4.5畳) (洋室:8.2)
居間8帖
専有面積 - バルコニー面積 -
その他面積 28㎡ /8.47坪  2階建納屋(未登記) 駐車場 -
管理費 - 修繕積立金 -
現況 空家
仲介手数料 330,000円
借地料(年) 22,750円
年間料金(年末一括払い)
利用制限 -
設備 追いだき機能付き、温水洗浄便座、エアコンあり、LPG、上水道、下水道
取引態様 専任
備考 ・1階玄関部分土間に軽の駐車1台可能、また近所に貸し駐車場有(年間21,799円)。
・建物部分の一部が借地(106.99㎡)につき、借地料(年間22,750円)
・テレビは共同アンテナを利用し、利用料(年間3,000円)。固定資産税(年間17,722円)。
取り扱い会社

越乃エステート株式会社

新潟県上越市春日野1丁目7番4号オフィスYAMADA-B号

情報登録日 2026/05/28 次回更新予定日 2026/06/13
取引条件有効期限 2026/08/28
  • 名立区 中古戸建
    越乃エステート株式会社
  • この物件を問い合わせる/無料
  • TEL: 025-520-6623 025-520-6623

この物件の地図・周辺情報・行政情報

この物件の周辺情報・行政情報を詳しく見る
【周辺情報】
物件の近くにあるコンビニや銀行・学校など、アイコン付のマップで詳しく表示できます!
【行政情報】
水道料や下水道料・ガス料金など、暮らしに関係のある情報を表示しています。
セブンイレブン 上越名立店(コンビニ)まで230m
上越信用金庫 名立支店(銀行)まで580m
名立郵便局(郵便局)まで250m

※カメラのアイコンがある場合は、マウスをポイントするとその施設の画像がご覧いただけます。


担当取扱い店舗情報

取扱い店舗画像
越乃エステート株式会社
TEL: 025-520-6623
所在地: 新潟県上越市春日野1丁目7番4号オフィスYAMADA-B号
交通: 春日山駅より徒歩8分
営業時間: 9:00~17:00/定休日:水・日
免許番号: 新潟県知事(1)第5592号
所属団体名: 公益社団法人 全日本不動産協会 新潟県本部
取引態様: 専任
ホームページ: https://koshino-e.com