新潟県長岡市曲新町2丁目6-21付近 新築一戸建て 4LDK 28,800,000円の物件情報

【当日見学予約大歓迎】■駐車4台可 ■宮内駅まで徒歩8分 ■前面道路消雪パイプ完備 ■明るくゆとりある南向きリビング18帖

物件名/所在地 詳細 価格
(新築住宅)長岡市曲新町 第1 1号棟
新潟県長岡市曲新町2丁目6-21付近
  • 土地面積
    :264.16㎡ /79.9坪
  • 建物面積
    :98.82㎡ /29.89坪
  • 間取り
    :4LDK
  • 築年月
    :2025年12月
28,800,000
  • (新築住宅)長岡市曲新町 第1 1号棟
    新潟土地建物販売センター 株式会社
  • この物件を問い合わせる/無料
  • TEL: 0258-89-8245 0258-89-8245

物件画像

外観
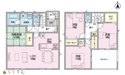
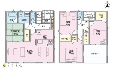
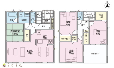
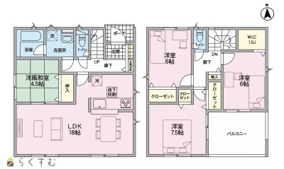
間取り
物件画像
※画像クリックで拡大表示
ご見学可能です!お気軽にお問い合わせください♪
物件画像
※画像クリックで拡大表示
全居室収納付♪住み心地のいい大きさ。お問い合わせ下さい♪
詳細画像
物件画像
区画図 駐車4台可能
物件画像
前面道路は北側4m、消雪パイプ完備
物件画像
【ご購入者様特典のメンテナンス制度】
物件画像
LDK 南側の掃き出し窓からたっぷり陽の光が差し込みます
物件画像
18帖の広さがあるので、ソファーなどを置いてもゆったり。
物件画像
コンセント付きの使い勝手の良いカウンターキッチン!
物件画像
洗面脱衣室
物件画像
三面鏡洗面台+便利なシャワーヘッドで毎日スムーズに。
物件画像
浴室暖房乾燥機付きの一坪バス
物件画像
温水洗浄トイレ&壁収納付きで便利さと清潔感を両立。
物件画像
1階和室4.5帖 客間や寛ぎスペースとして多目的に使用可能!
物件画像
2階洋室7.5帖 2箇所クローゼット×バルコニー付で快適空間
物件画像
2階洋室6帖 WIC付き×バルコニーへの出入りが可能なお部屋
物件画像
2階洋室6帖 各部屋収納完備!
物件画像
南向きバルコニーは、陽当たりたっぷりで洗濯物もよく乾きます!
物件画像
大容量の玄関収納!ご家族の履物がスッキリ片付き急な来客も安心


物件概要

◆毎日営業中!当日のご内覧大歓迎!いつでもご案内します!!◆急なご来店でも相談出来ます◆豊富な知識と経験を基に丁寧にアドバイスします!先ずはお電話、メール、LINEにてお問合せ下さい♪
物件コード 00239-200584
物件名 (新築住宅)長岡市曲新町 第1 1号棟
交通 駅:信越線 宮内駅から徒歩8分、バス:宮内1丁目から徒歩3分
物件所在地 新潟県長岡市曲新町2丁目6-21付近
物件種別 新築一戸建て
構造 木造 階建 地上2階建
建ぺい率/容積率 50%/100%
建物面積 1階 53.46㎡/ 2階 45.36㎡/ 計 98.82㎡ /29.89坪
土地面積 264.16㎡ /79.9坪
築年月 2025年12月完成予定
入居(引き渡し)時期 随時入居(引き渡し)可
用途地域 第1種低層住居専用地域 地目 宅地
都市計画 市街化区域 学校区 上組小学校(1,200m)・宮内中学校(1,100m)
形状 間口 14.6m × 奥行 14.6m 道路 北側4.0m公道
私道 - その他の制限 建築基準法22条指定区域
  • (新築住宅)長岡市曲新町 第1 1号棟
    新潟土地建物販売センター 株式会社
  • この物件を問い合わせる/無料
  • TEL: 0258-89-8245 0258-89-8245

物件詳細情報

所在階/階数 - 号室 -
販売価格 28,800,000円 方位
間取り 4LDK (和室:4.5畳) (洋室:7.5、6.0、6.0)
LDK18
専有面積 - バルコニー面積 -
その他面積 - 駐車場 -
管理費 - 修繕積立金 -
現況 空家
仲介手数料 1,016,400円
利用制限 -
設備 日当り良好、閑静な住宅街、耐震構造、LDK15畳以上、駐車場3台以上、南向き、TVインターホン、複層ガラス、ディンプルキー、システムキッチン、カウンターキッチン、浄水器、3口コンロ、ガスコンロ設置済み、追いだき機能付き、浴室暖房乾燥機、バス1坪以上、温水洗浄便座、シャワー付き洗面台、24時間換気システム、省エネ給湯、高気密高断熱住宅、都市ガス、上水道、下水道、電気、ウォークインクローゼット、全居室収納あり、床下収納、シューズBOX、即引き渡し可能、バリアフリー
取引態様 一般
備考 【教育】
上組小学校 約1200m 徒歩約15分
宮内中学校 約1100m 徒歩約14分

【交通】
JR信越本線/上越線 宮内駅 徒歩約8分
越後交通 宮内1丁目 徒歩約3分

◆弊社が選ばれている3つの理由
昨年は、142組のお客様が弊社を通じて新築住宅をご購入いただきました♪

1】新築中古の取扱数200件超!
◎たくさんの取扱物件からお探し条件にあう物件をご紹介
◎新着物件や価格改定物件もいち早くご提供

2】売って終わりにしない、充実のアフターサービス体制
◎アフターサービスの専門スタッフが、迅速・丁寧にご対応
◎独自のメンテナンス制度で設備の故障や建物の傷を無償修理
◎ご購入後のお困り事も、充実した体制で手厚くサポート

3】選べるプレゼント
◎エアコンや照明などの新生活に必要な設備を無料でプレゼント
取り扱い会社

新潟土地建物販売センター 株式会社

新潟県長岡市台町1-7-331階

情報登録日 2025/12/18 次回更新予定日 2026/01/01
取引条件有効期限 2025/12/31
  • (新築住宅)長岡市曲新町 第1 1号棟
    新潟土地建物販売センター 株式会社
  • この物件を問い合わせる/無料
  • TEL: 0258-89-8245 0258-89-8245

この物件の地図・周辺情報・行政情報

この物件の周辺情報・行政情報を詳しく見る
【周辺情報】
物件の近くにあるコンビニや銀行・学校など、アイコン付のマップで詳しく表示できます!
【行政情報】
水道料や下水道料・ガス料金など、暮らしに関係のある情報を表示しています。
セブン-イレブン 長岡宮内駅前通り店(コンビニ)まで640m
原信 宮内店(スーパー)まで1000m
ココカラファイン 長岡宮内店(ドラッグストア)まで1100m

※カメラのアイコンがある場合は、マウスをポイントするとその施設の画像がご覧いただけます。


担当取扱い店舗情報

取扱い店舗画像
新潟土地建物販売センター 株式会社
TEL: 0258-89-8245
所在地: 新潟県長岡市台町1-7-331階
交通: 長岡駅
営業時間: 9:00~18:00/定休日:なし
免許番号: 新潟県知事(3)第5151号
所属団体名: 公社 新潟県宅地建物取引協会 新潟支部
取引態様: 一般
ホームページ: https://niigata-tochitate.jp/