新潟県長岡市川崎1丁目320-2付近 新築一戸建て 3LDK 29,800,000円の物件情報

【二重断熱×24時間熱交換換気扇で省エネ&快適◎】 ◆オール電化×高気密高断熱住宅 ◆来客時に嬉しい駐車3台可能 ◆駅やスーパーが徒歩圏内!生活利便性良好

物件名/所在地 詳細 価格
長岡市川崎 新築住宅
新潟県長岡市川崎1丁目320-2付近
  • 土地面積
    :138㎡ /41.74坪
  • 建物面積
    :94.4㎡ /28.55坪
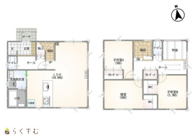
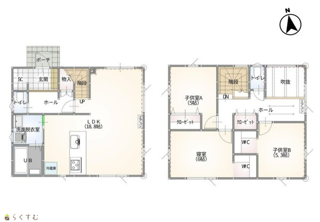
  • 間取り
    :3LDK
  • 築年月
    :2025年3月
29,800,000
  • 長岡市川崎 新築住宅
    新潟土地建物販売センター 株式会社
  • この物件を問い合わせる/無料
  • TEL: 0258-89-8245 0258-89-8245

物件画像

外観
間取り
物件画像
※画像クリックで拡大表示
ご見学予約はお気軽にお問い合わせください!
物件画像
※画像クリックで拡大表示
多彩な収納を備えた3LDK
詳細画像
物件画像
三面採光で明るい空間♪
物件画像
吹抜けからは採光がたっぷり差し込みます♪
物件画像
食器洗乾燥機やタッチレス水栓が搭載された機能的なキッチン
物件画像
ゆとりある広さの洗面室
物件画像
足を伸ばせる一坪風呂
物件画像
温水洗浄機能付きのトイレは各階に完備
物件画像
2階6帖洋室 2階居室は全室二面採光で陽当たり通風良好
物件画像
2階5帖洋室 各部屋クローゼット完備
物件画像
2階ホールにはホスクリーン完備
物件画像
シューズクローク付きの玄関♪
物件画像
前面道路は北側4m公道、消雪パイプあり
物件画像
高性能グラスウォール×発泡スチロールの「二重断熱」を採用
物件画像
床下断熱を徹底的に!床暖房が無くても年中暖かく快適♪
物件画像
高性能な天井断熱材で魔法瓶のようにポカポカに
物件画像
サッシには内樹脂製の複層ガラスを採用し、省エネ効果を向上
物件画像
パナソニック製の24時間熱交換換気扇を標準装備


物件概要

スーパー・コンビニ・ドラッグストアが車で5分圏内!毎日のお買い物に便利な立地です。長岡駅やバス停も徒歩圏内なのどで通勤通学も安心です◎詳細はお気軽にお問い合わせください(^^)/
物件コード 00239-200496
物件名 長岡市川崎 新築住宅
交通 駅:上越新幹線 長岡駅から徒歩17分、バス:川崎入口から徒歩2分
物件所在地 新潟県長岡市川崎1丁目320-2付近
物件種別 新築一戸建て
構造 木造 階建 地上2階建
建ぺい率/容積率 60%/200%
建物面積 1階 49.27㎡/ 2階 45.13㎡/ 計 94.4㎡ /28.55坪
土地面積 138㎡ /41.74坪
築年月 2025年3月(築8ヶ月)
入居(引き渡し)時期 随時入居(引き渡し)可
用途地域 第2種中高層住居専用地域 地目 -
都市計画 市街化区域 学校区 川崎小学校(500m)・東北中学校(900m)
形状 間口 10.0m × 奥行 14.0m 道路 北側4.0m市道
私道 - その他の制限 法22条/第二種高度地区/まちなか居住区域
  • 長岡市川崎 新築住宅
    新潟土地建物販売センター 株式会社
  • この物件を問い合わせる/無料
  • TEL: 0258-89-8245 0258-89-8245

物件詳細情報

所在階/階数 - 号室 -
販売価格 29,800,000円 方位
間取り 3LDK (洋室:6.0、5.3、5.0)
LDK18.8
専有面積 - バルコニー面積 -
その他面積 - 駐車場 -
管理費 - 修繕積立金 -
現況 空家
仲介手数料 1,049,400円
利用制限 -
設備 整形地、日当り良好、閑静な住宅街、スーパー近く、BELS/省エネ基準適合認定建物、LDK15畳以上、全室フローリング、駐車場2台以上、駐車場3台以上、南向き、TVインターホン、複層ガラス、システムキッチン、カウンターキッチン、IHクッキングヒーター、浄水器、食器洗浄乾燥機、追いだき機能付き、浴室暖房乾燥機、温水洗浄便座、シャワー付き洗面台、エアコン、24時間換気システム、オール電化、省エネ給湯、高気密高断熱住宅、上水道、下水道、電気、ウォークインクローゼット、全居室収納あり、シューズインクローゼット
取引態様 一般
備考 【教育】
川崎小学校 約500m 徒歩約7分
東北中学校 約900m 徒歩約12分

【交通】
JR上越新幹線 長岡駅 徒歩約17分
越後交通バス 川崎入口 徒歩約2分

-物件情報-
■エアコン2台付きで初期費用が抑えられます
■シューズクローク・2箇所のWIC・ホール収納でお部屋がスッキリ片付きます
■開放的で明るい吹き抜けのあるLDK♪
■2階ホールにはホスクリーン付き!天候に左右されずお洗濯可能◎
■前面道路には消雪パイプ付き
取り扱い会社

新潟土地建物販売センター 株式会社

新潟県長岡市台町1-7-331階

情報登録日 2025/10/07 次回更新予定日 2025/11/16
取引条件有効期限 2026/12/31
  • 長岡市川崎 新築住宅
    新潟土地建物販売センター 株式会社
  • この物件を問い合わせる/無料
  • TEL: 0258-89-8245 0258-89-8245

この物件の地図・周辺情報・行政情報

この物件の周辺情報・行政情報を詳しく見る
【周辺情報】
物件の近くにあるコンビニや銀行・学校など、アイコン付のマップで詳しく表示できます!
【行政情報】
水道料や下水道料・ガス料金など、暮らしに関係のある情報を表示しています。
ファミリーマート 長岡川崎店(コンビニ)まで170m
原信 今朝白店(スーパー)まで640m
長岡川崎町郵便局(郵便局)まで340m

※カメラのアイコンがある場合は、マウスをポイントするとその施設の画像がご覧いただけます。


担当取扱い店舗情報

取扱い店舗画像
新潟土地建物販売センター 株式会社
TEL: 0258-89-8245
所在地: 新潟県長岡市台町1-7-331階
交通: 長岡駅
営業時間: 9:00~18:00/定休日:なし
免許番号: 新潟県知事(3)第5151号
所属団体名: 公社 新潟県宅地建物取引協会 新潟支部
取引態様: 一般
ホームページ: https://niigata-tochitate.jp/