新潟県長岡市高町4丁目858ー286 中古一戸建て 4DK 8,300,000円の物件情報

静かな街に佇む、ゆとりの3階建て。

物件名/所在地 詳細 価格
長岡市高町4丁目 中古住宅
新潟県長岡市高町4丁目858ー286
  • 土地面積
    :242.71㎡ /73.41坪
  • 建物面積
    :156.47㎡ /47.33坪
  • 間取り
    :4DK
  • 築年月
    :1991年4月
8,300,000
  • 長岡市高町4丁目 中古住宅
    戸建エース / (株)アップデート不動産
  • この物件を問い合わせる/無料
  • TEL: 080-7289-9376 080-7289-9376

物件画像

外観
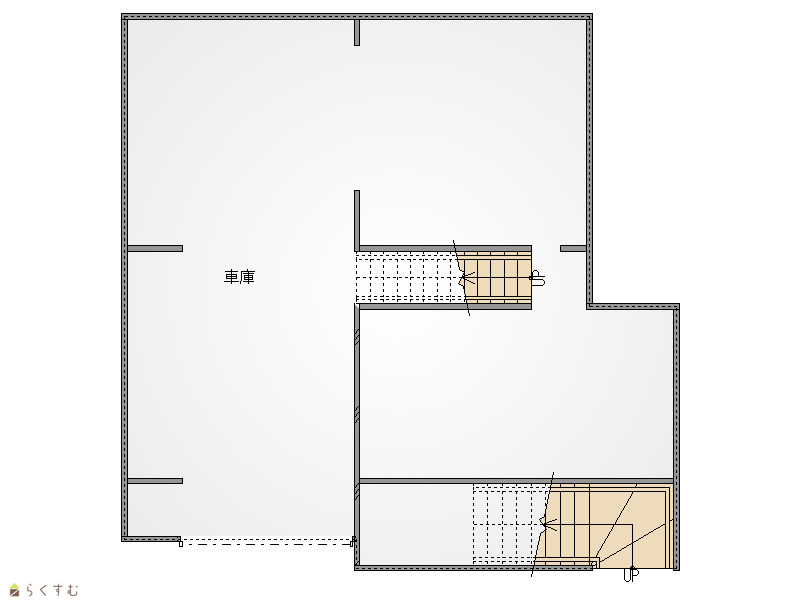
間取り
物件画像
※画像クリックで拡大表示
外観
物件画像
※画像クリックで拡大表示
間取り
詳細画像
物件画像
間取り
物件画像
間取り
物件画像
キッチン
物件画像
バスルーム
物件画像
洋室
物件画像
和室
物件画像
和室
物件画像
和室
物件画像
トイレ
物件画像
玄関
物件画像
バルコニー
物件画像
物件画像
印刷用地図


物件概要

1階駐車場2台分+庭付き。暮らしやすさを考えた住空間。
物件コード 00221-200279
物件名 長岡市高町4丁目 中古住宅
交通 駅:上越線 宮内駅から徒歩42分、バス:高町団地から徒歩7分
物件所在地 新潟県長岡市高町4丁目858ー286
物件種別 中古一戸建て
構造 木造鉄筋コン 階建 地上3階建
建ぺい率/容積率 70%/200%
建物面積 1階 56.71㎡/ 2階 60.02㎡/ 3階 39.74㎡/ 計 156.47㎡ /47.33坪
土地面積 242.71㎡ /73.41坪
築年月 1991年4月(築34年)
入居(引き渡し)時期 相談
用途地域 第1種低層住居専用地域 地目 宅地
都市計画 市街化調整区域 学校区 柿小学校(1,306m)・旭岡中学校(1,707m)
形状 - 道路 -
私道 - その他の制限 -
  • 長岡市高町4丁目 中古住宅
    戸建エース / (株)アップデート不動産
  • この物件を問い合わせる/無料
  • TEL: 080-7289-9376 080-7289-9376

物件詳細情報

所在階/階数 - 号室 -
販売価格 8,300,000円 方位 -
間取り 4DK
専有面積 - バルコニー面積 -
その他面積 - 駐車場 -
管理費 - 修繕積立金 -
現況 空家
仲介手数料 339,900円
利用制限 -
設備 高台に立地、日当り良好、閑静な住宅街、駐車2台可能、システムキッチン、都市ガス、上水道、下水道
取引態様 一般
備考 -
取り扱い会社

戸建エース / (株)アップデート不動産

新潟県長岡市古正寺3丁目116

情報登録日 2026/01/12 次回更新予定日 2026/04/03
取引条件有効期限 2026/12/31
  • 長岡市高町4丁目 中古住宅
    戸建エース / (株)アップデート不動産
  • この物件を問い合わせる/無料
  • TEL: 080-7289-9376 080-7289-9376

この物件の地図・周辺情報・行政情報

この物件の周辺情報・行政情報を詳しく見る
【周辺情報】
物件の近くにあるコンビニや銀行・学校など、アイコン付のマップで詳しく表示できます!
【行政情報】
水道料や下水道料・ガス料金など、暮らしに関係のある情報を表示しています。

担当取扱い店舗情報

取扱い店舗画像
戸建エース / (株)アップデート不動産
TEL: 080-7289-9376
所在地: 新潟県長岡市古正寺3丁目116
交通:
営業時間: 10:00~17:00/定休日:水曜日 木曜日
免許番号: 新潟県知事(2)第5484号
所属団体名: 新潟県宅地建物取引業協会 長岡支部
取引態様: 一般
ホームページ: https://update-estate.com/