新潟県長岡市土合1丁目5-19 中古一戸建て 7DK 9,800,000円の物件情報

【7DK×ガレージ完備】冬の除雪を軽減するガレージ付。部屋数7部屋で大人数世帯でもゆったり過ごせる大空間。

物件名/所在地 詳細 価格
長岡市土合 中古物件
新潟県長岡市土合1丁目5-19
  • 土地面積
    :99.17㎡ /29.99坪
  • 建物面積
    :164.99㎡ /49.9坪
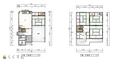
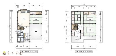
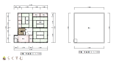
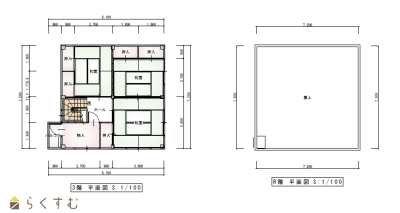
  • 間取り
    :7DK
  • 築年月
    :1982年7月
9,800,000
  • 長岡市土合 中古物件
    戸建エース / (株)アップデート不動産
  • この物件を問い合わせる/無料
  • TEL: 080-7289-9376 080-7289-9376

物件画像

外観
間取り
物件画像
※画像クリックで拡大表示
外観
物件画像
※画像クリックで拡大表示
間取り
詳細画像
物件画像
洋室
物件画像
洋室
物件画像
キッチン
物件画像
バスルーム
物件画像
トイレ
物件画像
洋室
物件画像
バルコニー
物件画像
間取り
物件画像
間取り
物件画像
印刷用地図


物件概要

物件コード 00221-200246
物件名 長岡市土合 中古物件
交通 駅:信越線 長岡駅から徒歩23分、バス:帝京長岡中学高校前から徒歩5分
物件所在地 新潟県長岡市土合1丁目5-19
物件種別 中古一戸建て
構造 鉄骨 階建 地上3階建
建ぺい率/容積率 60%/200%
建物面積 1階 61.31㎡/ 2階 51.84㎡/ 3階 51.84㎡/ 計 164.99㎡ /49.9坪
土地面積 99.17㎡ /29.99坪
築年月 1982年7月(築43年)
入居(引き渡し)時期 相談
用途地域 第1種低層住居専用地域 地目 宅地
都市計画 市街化区域 学校区 豊田小学校(698m)・旭岡中学校(792m)
形状 - 道路 -
私道 - その他の制限 -
  • 長岡市土合 中古物件
    戸建エース / (株)アップデート不動産
  • この物件を問い合わせる/無料
  • TEL: 080-7289-9376 080-7289-9376

物件詳細情報

所在階/階数 - 号室 -
販売価格 9,800,000円 方位 -
間取り 7DK
専有面積 - バルコニー面積 -
その他面積 - 駐車場 -
管理費 - 修繕積立金 -
現況 居住中
仲介手数料 389,400円
利用制限 -
設備 閑静な住宅街、駐車2台可能、都市ガス、上水道、下水道、シューズBOX、2世帯向き
取引態様 専任
備考 -
取り扱い会社

戸建エース / (株)アップデート不動産

新潟県長岡市古正寺3丁目116

情報登録日 2026/01/27 次回更新予定日 2026/05/22
取引条件有効期限 2025/10/31
  • 長岡市土合 中古物件
    戸建エース / (株)アップデート不動産
  • この物件を問い合わせる/無料
  • TEL: 080-7289-9376 080-7289-9376

この物件の地図・周辺情報・行政情報

この物件の周辺情報・行政情報を詳しく見る
【周辺情報】
物件の近くにあるコンビニや銀行・学校など、アイコン付のマップで詳しく表示できます!
【行政情報】
水道料や下水道料・ガス料金など、暮らしに関係のある情報を表示しています。
セブン-イレブン 長岡土合店(コンビニ)まで160m
セブン-イレブン 長岡豊田町店(コンビニ)まで620m
ファミリーマート 長岡曙店(コンビニ)まで760m
原信 シビックコア店(スーパー)まで1110m
マルイ 長岡学校町店(スーパー)まで920m
長岡花園郵便局(郵便局)までm

※カメラのアイコンがある場合は、マウスをポイントするとその施設の画像がご覧いただけます。


担当取扱い店舗情報

取扱い店舗画像
戸建エース / (株)アップデート不動産
TEL: 080-7289-9376
所在地: 新潟県長岡市古正寺3丁目116
交通:
営業時間: 10:00~17:00/定休日:水曜日 木曜日
免許番号: 新潟県知事(2)第5484号
所属団体名: 新潟県宅地建物取引業協会 長岡支部
取引態様: 専任
ホームページ: https://update-estate.com/