新潟県柏崎市日吉町2番66-3 中古一戸建て 4LDK 25,800,000円の物件情報

【築5年4LDK】パントリーやウォークインクローゼット、外部収納など、収納たっぷりのお家です。3~4人暮らしの方にオススメ

物件名/所在地 詳細 価格
柏崎市日吉町 中古住宅
新潟県柏崎市日吉町2番66-3
  • 土地面積
    :180.99㎡ /54.74坪
  • 建物面積
    :118.42㎡ /35.82坪
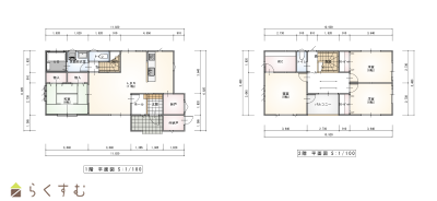
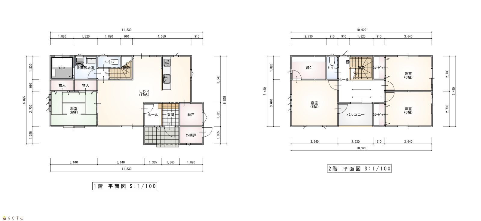
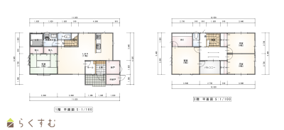
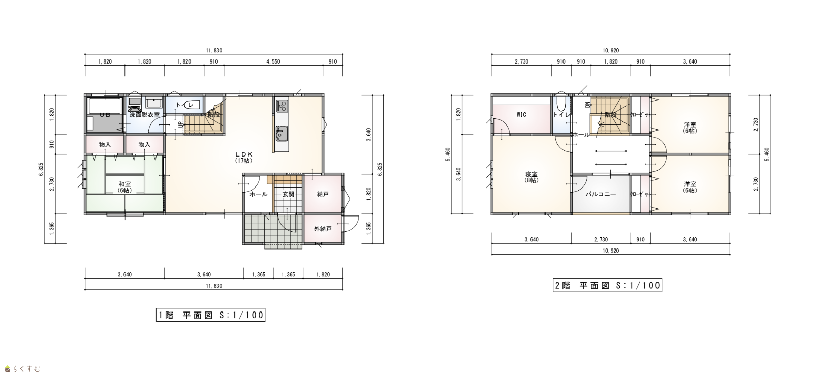
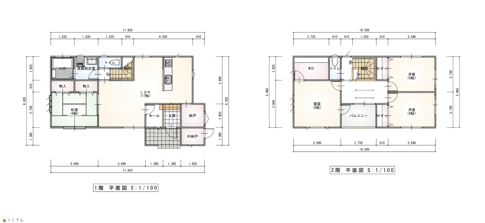
  • 間取り
    :4LDK
  • 築年月
    :2020年5月
25,800,000
  • 柏崎市日吉町 中古住宅
    戸建エース / (株)アップデート不動産
  • この物件を問い合わせる/無料
  • TEL: 080-7289-9376 080-7289-9376

物件画像

外観
間取り
物件画像
※画像クリックで拡大表示
外観
物件画像
※画像クリックで拡大表示
間取り
詳細画像
物件画像
キッチン
物件画像
リビング
物件画像
リビング
物件画像
バスルーム
物件画像
寝室
物件画像
子供部屋
物件画像
子供部屋
物件画像
和室
物件画像
トイレ
物件画像
周辺
物件画像
バルコニー
物件画像
印刷用地図


物件概要

物件コード 00221-200245
物件名 柏崎市日吉町 中古住宅
交通 駅:越後線 東柏崎駅から徒歩15分、バス:北半田1丁目から徒歩5分
物件所在地 新潟県柏崎市日吉町2番66-3
物件種別 中古一戸建て
構造 木造 階建 地上2階建
建ぺい率/容積率 60%/200%
建物面積 1階 63.77㎡/ 2階 54.65㎡/ 計 118.42㎡ /35.82坪
土地面積 180.99㎡ /54.74坪
築年月 2020年5月(築6年)
入居(引き渡し)時期 相談
用途地域 第1種住居地域 地目 宅地
都市計画 非線引き都市計画区域 学校区 比角小学校(182m)・第二中学校(588m)
形状 - 道路 南側6.0m:位置指定道路
私道 - その他の制限 -
  • 柏崎市日吉町 中古住宅
    戸建エース / (株)アップデート不動産
  • この物件を問い合わせる/無料
  • TEL: 080-7289-9376 080-7289-9376

物件詳細情報

所在階/階数 - 号室 -
販売価格 25,800,000円 方位 -
間取り 4LDK (和室:6畳) (洋室:8、6、6)
LDK17.0
専有面積 - バルコニー面積 -
その他面積 - 駐車場 -
管理費 - 修繕積立金 -
現況 居住中
仲介手数料 917,400円
利用制限 -
設備 日当り良好、閑静な住宅街、新築時図面あり、LDK15帖以上、築10年以内、築15年以内、駐車2台可能、駐車3台以上可能、TVインターホン、複層ガラス、デインプルキー、システムキッチン、IHクッキングヒーター、食器洗浄乾燥機、3口コンロ、追いだき機能付き、バス1坪以上、温水洗浄便座、トイレ2か所以上、シャワー付き洗面台、エアコンあり、都市ガス、上水道、下水道、ウォークインクローゼット、全居室収納あり、シューズBOX、シューズインクローゼット
取引態様 専任
備考 -
取り扱い会社

戸建エース / (株)アップデート不動産

新潟県長岡市古正寺3丁目116

情報登録日 2025/10/13 次回更新予定日 2026/05/22
取引条件有効期限 2025/12/12
  • 柏崎市日吉町 中古住宅
    戸建エース / (株)アップデート不動産
  • この物件を問い合わせる/無料
  • TEL: 080-7289-9376 080-7289-9376

この物件の地図・周辺情報・行政情報

この物件の周辺情報・行政情報を詳しく見る
【周辺情報】
物件の近くにあるコンビニや銀行・学校など、アイコン付のマップで詳しく表示できます!
【行政情報】
水道料や下水道料・ガス料金など、暮らしに関係のある情報を表示しています。
ファミリーマート 柏崎扇町店(コンビニ)まで330m
セブン-イレブン 柏崎四谷3丁目店(コンビニ)まで560m
ローソン 柏崎インター店(コンビニ)まで870m
大手薬局 柏崎店(ドラッグストア)まで130m
クスリのアオキ 柏崎中央店(ドラッグストア)まで370m
柏崎信用金庫 四谷支店(銀行)まで450m
第四北越銀行 柏崎南支店(銀行)まで860m
第四北越銀行 柏崎日吉町支店(銀行)まで870m
柏崎四谷郵便局(郵便局)まで540m
柏崎岩上郵便局(郵便局)まで810m

※カメラのアイコンがある場合は、マウスをポイントするとその施設の画像がご覧いただけます。


担当取扱い店舗情報

取扱い店舗画像
戸建エース / (株)アップデート不動産
TEL: 080-7289-9376
所在地: 新潟県長岡市古正寺3丁目116
交通:
営業時間: 10:00~17:00/定休日:水曜日 木曜日
免許番号: 新潟県知事(2)第5484号
所属団体名: 新潟県宅地建物取引業協会 長岡支部
取引態様: 専任
ホームページ: https://update-estate.com/