新潟県十日町市通り山53-2 中古一戸建て 10DK 3,000,000円の物件情報

十日町市の自然豊かで風光明媚、観光場所が豊富な地区に位置した物件

物件名/所在地 詳細 価格
十日町 中古売家 10DK
新潟県十日町市通り山53-2
  • 土地面積
    :310.73㎡ /93.99坪
  • 建物面積
    :133.87㎡ /40.49坪
  • 間取り
    :10DK
  • 築年月
    :1970年8月
3,000,000
  • 十日町 中古売家 10DK
    フジクリエイト株式会社
  • この物件を問い合わせる/無料
  • TEL: 0258-84-2231 0258-84-2231

物件画像

外観
間取り
物件画像
※画像クリックで拡大表示
外観
物件画像
※画像クリックで拡大表示
間取り
詳細画像
物件画像
玄関
物件画像
トイレ
物件画像
バスルーム
物件画像
洗面所
物件画像
和室
物件画像
和室
物件画像
洋室
物件画像
洋室
物件画像
印刷用地図


物件概要

部屋数豊富で活用方法は工夫次第で様々な可能性が広がる物件です
物件コード 00210-200072
物件名 十日町 中古売家 10DK
交通 駅:飯山線 越後田沢駅から徒歩17分、バス:中里中学校入口から徒歩2分
物件所在地 新潟県十日町市通り山53-2
物件種別 中古一戸建て
構造 木造 階建 地上2階建
建ぺい率/容積率 200%/70%
建物面積 1階 70.24㎡/ 2階 63.63㎡/ 計 133.87㎡ /40.49坪
土地面積 310.73㎡ /93.99坪
築年月 1970年8月(築55年)
入居(引き渡し)時期 相談
用途地域 無指定 地目 宅地
都市計画 都市計画区域外 学校区 田沢小学校(940m)・中里中学校(243m)
形状 - 道路 -
私道 - その他の制限 -
  • 十日町 中古売家 10DK
    フジクリエイト株式会社
  • この物件を問い合わせる/無料
  • TEL: 0258-84-2231 0258-84-2231

物件詳細情報

所在階/階数 - 号室 -
販売価格 3,000,000円 方位
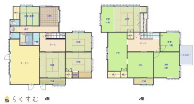
間取り 10DK (和室:9畳、8畳、8畳、8畳、6畳、6畳、4.5畳) (洋室:8、4.5、4)
12.5DK
専有面積 - バルコニー面積 -
その他面積 - 駐車場 -
管理費 - 修繕積立金 -
現況 空家
仲介手数料 330,000円
利用制限 -
設備 日当り良好、駐車2台可能、南向き、追いだき機能付き、バス1坪以上、温水洗浄便座、トイレ2か所以上、シャワー付き洗面台、エアコンあり、上水道、下水道、シューズBOX、BS端子、田舎暮らし
取引態様 一般
備考 築古の物件のため、売主様の一切の責任は免責とさせていただきます
現況有姿でのお引渡しとなります
写真上の残地物については基本現況のままとなりますが、お引渡し時に撤去されるものもあります。詳しくはお問い合わせください。

当物件は増築部分(約58㎡)が未登記となっております。
売却時には物件裏の田(157㎡)も売買の対象とさせていただきます。
売却時までに農地転用を行う予定です。

間取り図について現況と異なる部分がある場合は現況を優先いたします。
その他物件の詳しい状況等もお問い合わせください。
取り扱い会社

フジクリエイト株式会社

新潟県小千谷市片貝町6390

情報登録日 2025/09/18 次回更新予定日 2026/02/27
取引条件有効期限 2025/12/31
  • 十日町 中古売家 10DK
    フジクリエイト株式会社
  • この物件を問い合わせる/無料
  • TEL: 0258-84-2231 0258-84-2231

この物件の地図・周辺情報・行政情報

この物件の周辺情報・行政情報を詳しく見る
【周辺情報】
物件の近くにあるコンビニや銀行・学校など、アイコン付のマップで詳しく表示できます!
【行政情報】
水道料や下水道料・ガス料金など、暮らしに関係のある情報を表示しています。

担当取扱い店舗情報

取扱い店舗画像
フジクリエイト株式会社
TEL: 0258-84-2231
所在地: 新潟県小千谷市片貝町6390
交通:
営業時間: 8:30~17:00/定休日:日・祝
免許番号: 新潟県知事(4)第4907号
所属団体名: 公社 新潟県宅地建物取引協会 魚沼支部
取引態様: 一般
ホームページ: https://fuji-create.jp/