新潟県長岡市平島1丁目112 投資物件・その他 18,000,000円の物件情報

☆飲食店やシェアキッチン・キッチンラボ等いかがでしょうか。もちろん飲食以外にも活用OK! 事業者様向きの物件です。

物件名/所在地 詳細 価格
表面利回り
平島1丁目 売店舗・事務所
新潟県長岡市平島1丁目112
  • 土地面積
    :468.82㎡ /141.81坪
  • 建ぺい率
    :60%
  • 容積率
    :200%
18,000,000
-
  • 平島1丁目 売店舗・事務所
    株式会社フォレス・タカダ
  • この物件を問い合わせる/無料
  • TEL: 070-1370-6640 070-1370-6640

物件画像

外観
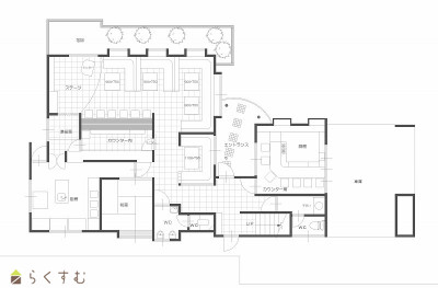
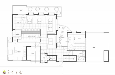
間取り
物件画像
※画像クリックで拡大表示
外観写真01
物件画像
※画像クリックで拡大表示
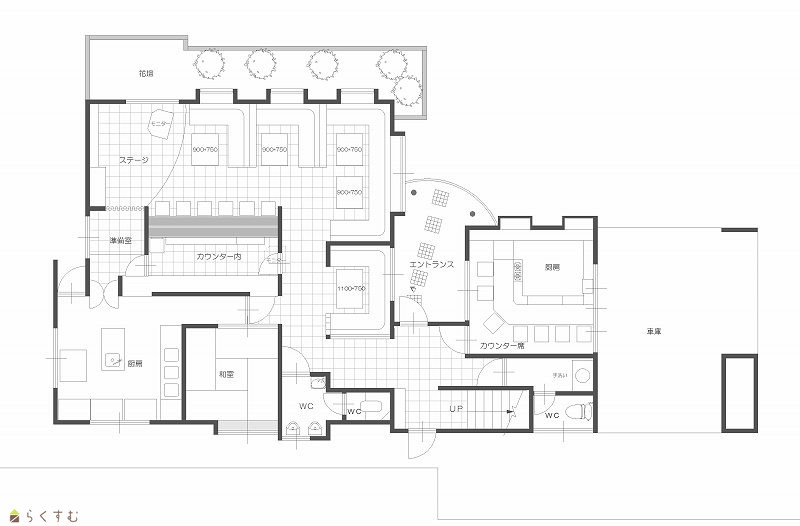
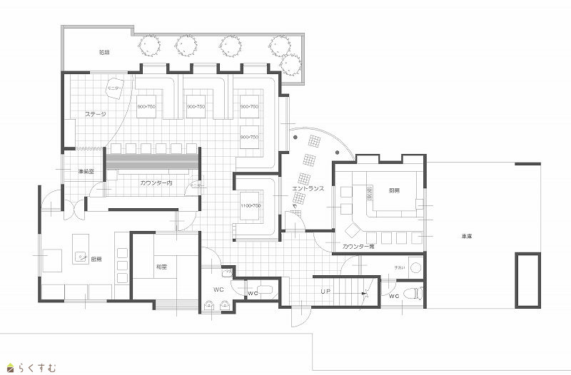
1階平面図
詳細画像
物件画像
2階平面図
物件画像
外観写真02
物件画像
入口エントランス
物件画像
1客席/フロア
物件画像
厨房
物件画像
1階和室4.5帖
物件画像
1階個室
物件画像
2階和室南側
物件画像
2階和室北側
物件画像
所在地図


物件概要

☆飲食店やシェアキッチン・キッチンラボ等いかがでしょうか。もちろん飲食以外にも活用OK! 事業者様向きの物件です。
物件コード 00125-200091
物件名 平島1丁目 売店舗・事務所
交通 駅:信越線 宮内駅から徒歩16分、バス:平島上口から徒歩4分
物件所在地 新潟県長岡市平島1丁目112
物件種別 投資物件・その他
物件区分 その他
構造 木造 階建 地上2階建
建ぺい率/容積率 60%/200%
建物面積 1階 108.71㎡/ 2階 47.2㎡/ 計 155.91㎡ /47.16坪
土地面積 468.82㎡ /141.81坪
築年月 1979年5月(築47年)
入居(引き渡し)時期 相談
用途地域 準工業地域 地目 宅地
都市計画 市街化区域 学校区 宮内小学校(979m)・宮内中学校(740m)
形状 - 道路 長岡市道 幅員10M(歩道含む) 消雪あり
私道 - その他の制限 建基法22条指定区域・大規模集客施設制限地区
  • 平島1丁目 売店舗・事務所
    株式会社フォレス・タカダ
  • この物件を問い合わせる/無料
  • TEL: 070-1370-6640 070-1370-6640

物件詳細情報

所在階/階数 - 号室 -
販売価格 18,000,000円 方位 -
表面利回り(満室想定時) - 満室想定年収 - (想定月収: - )
現行利回り - 現行年間年収 -
住戸数 -
間取り 1階:厨房エリア(厨房機器設備なし)・カウンター席・客席・ステージ・和室4.5帖1室・トイレ2ヵ所・1階洋室8帖1室/2階和室10帖2室
専有面積 - 155.91㎡ /47.16坪 バルコニー面積 -
その他面積 - 駐車場 約6台・屋根なし
管理費 - 修繕積立金 -
現況 空家
仲介手数料 660,000円
利用制限 -
設備 駐車場(近隣含む)、公営水道、都市ガス、下水道、事業向け
取引態様 一般
備考 ■町内会費・消雪組合費の借主負担あり ■1階:厨房エリア(厨房機器設備なし)・カウンター席・客席・ステージ・和室4.5帖1室・トイレ2ヵ所・1階洋室8帖1室/2階和室10帖2室
取り扱い会社

株式会社フォレス・タカダ

新潟県長岡市摂田屋5-6-22

情報登録日 2026/01/05 次回更新予定日 2026/05/22
取引条件有効期限 2026/03/31
  • 平島1丁目 売店舗・事務所
    株式会社フォレス・タカダ
  • この物件を問い合わせる/無料
  • TEL: 070-1370-6640 070-1370-6640

この物件の地図・周辺情報・行政情報

この物件の周辺情報・行政情報を詳しく見る
【周辺情報】
物件の近くにあるコンビニや銀行・学校など、アイコン付のマップで詳しく表示できます!
【行政情報】
水道料や下水道料・ガス料金など、暮らしに関係のある情報を表示しています。
ローソン 長岡摂田屋町店(コンビニ)まで350m
デイリーヤマザキ 長岡平島1丁目店(コンビニ)まで280m
セブン-イレブン 長岡南中央通り店(コンビニ)まで350m
ファミリーマート 長岡宮栄店(コンビニ)まで560m

※カメラのアイコンがある場合は、マウスをポイントするとその施設の画像がご覧いただけます。


担当取扱い店舗情報

取扱い店舗画像
株式会社フォレス・タカダ
TEL: 0258-39-2919
所在地: 新潟県長岡市摂田屋5-6-22
交通: 信越線〔宮内駅〕徒歩13分
営業時間: 8:30~17:30/定休日:隔週土曜・日曜日・祝/会社カレンダーによる
免許番号: 新潟県知事(8)第3591号
所属団体名: 新潟県宅地建物取引業協会 長岡支部
取引態様: 一般
ホームページ: http://www.takada-arc.com