新潟県長岡市北山4丁目39-8、39-17 新築一戸建て 3LDK 24,500,000円の物件情報

【10/2価格改定】ウオロク北山店徒歩7分、希望が丘小学校徒歩8分!近くの土手から長岡花火が見える立地です♪普段は土手沿いのお散歩、ウォーキングなどもいいですね♪

物件名/所在地 詳細 価格
北山 新築建売住宅
新潟県長岡市北山4丁目39-8、39-17
  • 土地面積
    :132.79㎡ /40.16坪
  • 建物面積
    :87.77㎡ /26.55坪
  • 間取り
    :3LDK
  • 築年月
    :2025年7月
24,500,000
  • 北山 新築建売住宅
    ダイエープロビス株式会社
  • この物件を問い合わせる/無料
  • TEL: 0258-24-1110 0258-24-1110

物件画像

外観
間取り
物件画像
※画像クリックで拡大表示
外観
物件画像
※画像クリックで拡大表示
間取り
詳細画像
物件画像
リビング
物件画像
キッチン
物件画像
リビング
物件画像
バスルーム
物件画像
洗面所
物件画像
洗面所
物件画像
トイレ
物件画像
玄関
物件画像
収納
物件画像
サンルーム
物件画像
洋室
物件画像
洋室
物件画像
洋室
物件画像
洋室
物件画像
トイレ
物件画像
印刷用地図


物件概要

家事がしやすい家事楽動線!家族みんなが便利な間取りです♪3帖の洗面室はランドリースペースとして活用できます。洗う→干す→しまうができる家事楽洗面室です♪
物件コード 00101-200402
物件名 北山 新築建売住宅
交通 駅:信越線 長岡駅から徒歩54分、バス:西中入口から徒歩2分
物件所在地 新潟県長岡市北山4丁目39-8、39-17
物件種別 新築一戸建て
構造 木造 階建 地上2階建
建ぺい率/容積率 60%/200%
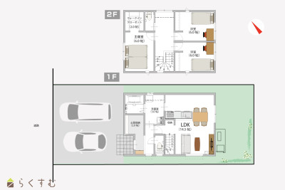
建物面積 1階 43.06㎡/ 2階 44.71㎡/ 計 87.77㎡ /26.55坪
土地面積 132.79㎡ /40.16坪
築年月 2025年7月(築5ヶ月)
入居(引き渡し)時期 随時入居(引き渡し)可
用途地域 第1種中高層住居専用地域 地目 宅地  (現状:宅地)
都市計画 市街化区域 学校区 希望が丘小学校(600m)・西中学校(650m)
形状 間口 7.2m × 奥行 18.2m 道路 西側 市道 幅員6m
私道 - その他の制限 -
  • 北山 新築建売住宅
    ダイエープロビス株式会社
  • この物件を問い合わせる/無料
  • TEL: 0258-24-1110 0258-24-1110

物件詳細情報

所在階/階数 - 号室 -
販売価格 24,500,000円 方位 北西
間取り 3LDK (洋室:6、6、6)
LDK14.5帖
洗面室3帖、土間収納2帖、WIC2帖
専有面積 - バルコニー面積 -
その他面積 - 駐車場 -
管理費 - 修繕積立金 -
現況 空家
仲介手数料 なし
消雪組合費 10,000円
利用制限 -
設備 整形地、前面道路6m以上、日当り良好、閑静な住宅街、スーパー近く、BELS/省エネ基準適合認定建物、瑕疵担保保険付き、建物確認・完了検査済証あり、フラット35S適合、全室フローリング、駐車場2台以上、庭あり、TVインターホン、複層ガラス、ディンプルキー、システムキッチン、カウンターキッチン、IHクッキングヒーター、追いだき機能付き、バス1坪以上、温水洗浄便座、シャワー付き洗面台、エアコン、24時間換気システム、オール電化、省エネ給湯、上水道、下水道、電気、ウォークインクローゼット、全居室収納あり、シューズインクローゼット、シューズBOX、照明器具付き、即引き渡し可能
取引態様 売主
備考 ↓ おすすめポイント ↓

安心のご契約!
~ニコニコ住宅の建物価格について~

表示価格には、
「土地」「建物」
「瑕疵担保責任保険」
「長期保証」「クリーニング費用」
「建物内の展示物撤収費用」
がきちんと含まれますのでご安心ください。

家事の時間を短縮できるよう、
家事楽にこだわった間取りです。

アウトドア用品や除雪道具も収納できる!
1坪の広々土間収納があります。

通学や買い物に便利な立地です!

■セブンイレブン北山2丁目店 徒歩5分(350m)
■ウオロク北山店  徒歩7分(550m)
■希望が丘小学校 徒歩8分(600m)
■西中学校 徒歩9分(650m)
■アクロスプラザ南七日町 車4分(1.6km)
■イオン 車5分(1.8km)
■リバーサイド千秋 車7分(2.8km)

LDKエアコン、カーテン、2階トイレ付です!

完成前は構造見学開放します。
早期予約を受け付けております!
お気軽にお問い合わせください!

建売とは思えない!
手厚いアフターサービスが自慢の家

最長60年長期保証の家:
地盤・基礎・構造・雨漏りは基本保証20年
メンテナンス実施で最長60年

設備保証10年:
ユニットバス・システムキッチン・給湯設備・多機能便座

無料点検:10年間で4回実施

緊急駆けつけサービス:24時間365日10年間家事の時間を短縮できるよう、
家事楽にこだわった間取りです。

建築確認番号 第R06-2396号
取り扱い会社

ダイエープロビス株式会社

新潟県長岡市宝4丁目2番地25

情報登録日 2025/12/12 次回更新予定日 2025/12/31
取引条件有効期限 2026/12/31
  • 北山 新築建売住宅
    ダイエープロビス株式会社
  • この物件を問い合わせる/無料
  • TEL: 0258-24-1110 0258-24-1110

この物件の地図・周辺情報・行政情報

この物件の周辺情報・行政情報を詳しく見る
【周辺情報】
物件の近くにあるコンビニや銀行・学校など、アイコン付のマップで詳しく表示できます!
【行政情報】
水道料や下水道料・ガス料金など、暮らしに関係のある情報を表示しています。
セブンイレブン 長岡北山2丁目店(コンビニ)まで350m
ウオロク 北山店(スーパー)まで410m
クスリのアオキ 大島店(ドラッグストア)まで580m
中野歯科医院(病院)まで190m
(株)大光銀行 希望が丘支店(銀行)まで340m

※カメラのアイコンがある場合は、マウスをポイントするとその施設の画像がご覧いただけます。


担当取扱い店舗情報

取扱い店舗画像
ダイエープロビス株式会社
TEL: 0258-24-1110
所在地: 新潟県長岡市宝4丁目2番地25
交通: 「宝4丁目」バス停より徒歩2分
営業時間: 8:30 ~ 17:30/定休日:土曜・日曜・祝日
免許番号: 新潟県知事(13)1619号
所属団体名: 新潟県宅地建物取引業協会 長岡支部
取引態様: 売主
ホームページ: https://www.daiei-probis.com