新潟県柏崎市東本町3-10-12 投資物件・その他 3,000,000円の物件情報

土地約181坪、建物51坪、駐車場あり。1・2階ともに広々間取りでキッチン・トイレあり。事務所や作業スペースとしての活用も。

物件名/所在地 詳細 価格
表面利回り
柏崎市東本町3丁目売物件/事業向け/投資
新潟県柏崎市東本町3-10-12
  • 土地面積
    :600㎡ /181.5坪
  • 建ぺい率
    :60%
  • 容積率
    :200%
3,000,000
-
  • 柏崎市東本町3丁目売物件/事業向け/投資
    株式会社 ホーメックス
  • この物件を問い合わせる/無料
  • TEL: 0257-24-0034 0257-24-0034

物件画像

外観
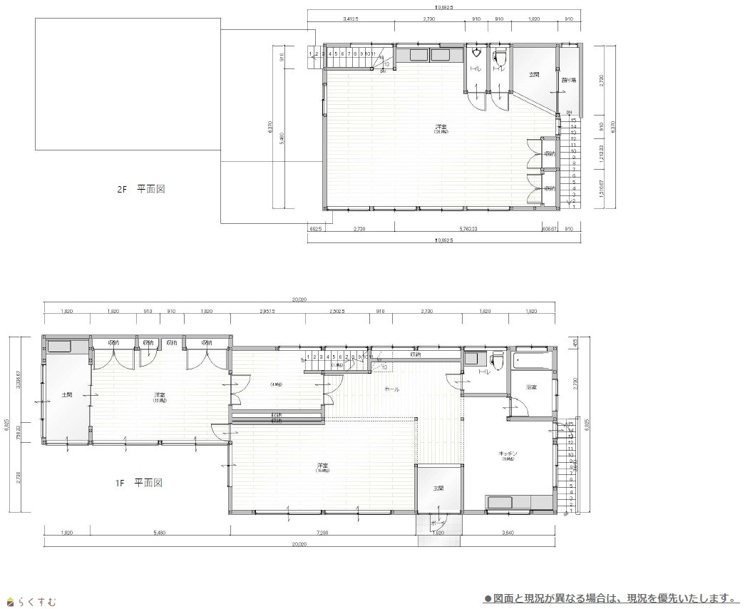
間取り
物件画像
※画像クリックで拡大表示
外観
物件画像
※画像クリックで拡大表示
間取り
詳細画像
物件画像
外観
物件画像
1階洋室
物件画像
2階洋室
物件画像
階段ホール
物件画像
キッチン
物件画像
トイレ
物件画像
玄関
物件画像
外観
物件画像
外観
物件画像
外観
物件画像
印刷用地図


物件概要

物件コード 00088-200842
物件名 柏崎市東本町3丁目売物件/事業向け/投資
交通 駅:越後線 東柏崎駅から徒歩6分、バス:諏訪町1丁目から徒歩4分
物件所在地 新潟県柏崎市東本町3-10-12
物件種別 投資物件・その他
物件区分 その他
構造 木造 階建 地上2階建
建ぺい率/容積率 60%/200%
建物面積 計 170.05㎡ /51.44坪
土地面積 600㎡ /181.5坪
築年月 1975年8月(築50年)
入居(引き渡し)時期 相談
用途地域 第1種住居地域 地目 畑  (現状:宅地)
都市計画 - 学校区 柏崎小学校(857m)・第一中学校(894m)
形状 間口 12.9m × 奥行 45.5m 道路 公道 市道柏崎2-6号線(幅員6m)、融雪道路、一方通行路
私道 - その他の制限 -
  • 柏崎市東本町3丁目売物件/事業向け/投資
    株式会社 ホーメックス
  • この物件を問い合わせる/無料
  • TEL: 0257-24-0034 0257-24-0034

物件詳細情報

所在階/階数 - 号室 -
販売価格 3,000,000円 方位 -
表面利回り(満室想定時) - 満室想定年収 - (想定月収: - )
現行利回り - 現行年間年収 -
住戸数 -
間取り -
専有面積 - バルコニー面積 -
その他面積 - 駐車場 -
管理費 - 修繕積立金 -
現況 空家
仲介手数料 330,000円
利用制限 -
設備 -
取引態様 一般
備考 ■現況測量あり(実測:591.48㎡/178.92坪)
■本件建物は昭和51年・昭和58年に増築工事あり。登記は未登記である。
■本土地の地先には、融雪道のための電柱および分電盤があり移動は出来ないものと思われるものが存在します。また、同地先には自治会の資源物置場が設置され、敷地の正面に間口制限があります。
■本建物は昭和56年6月以前に新築・増築がされており、現行の建築基準法における耐震基準には合致しません。
■2025年4月の建築基準法改正により、大規模なリフォーム工事等を行う場合は確認申請が必要となる。
■解体の場合、工事費は約400万円税込程度となります。
取り扱い会社

株式会社 ホーメックス

新潟県柏崎市土合628-1

情報登録日 2026/02/13 次回更新予定日 2026/04/19
取引条件有効期限 2026/05/13
  • 柏崎市東本町3丁目売物件/事業向け/投資
    株式会社 ホーメックス
  • この物件を問い合わせる/無料
  • TEL: 0257-24-0034 0257-24-0034

この物件の地図・周辺情報・行政情報

この物件の周辺情報・行政情報を詳しく見る
【周辺情報】
物件の近くにあるコンビニや銀行・学校など、アイコン付のマップで詳しく表示できます!
【行政情報】
水道料や下水道料・ガス料金など、暮らしに関係のある情報を表示しています。
セブン-イレブン 柏崎錦町店(コンビニ)まで550m
ローソン 柏崎学校町店(コンビニ)まで720m
ウエルシア柏崎錦町店 (調剤薬局)(ドラッグストア)まで460m
のざわ内科医院(病院)まで570m
つよしクリニック(病院)まで690m
まえかわ歯科クリニック(病院)まで720m
樋口内科医院扇町(病院)まで780m
柏崎信用金庫 諏訪町支店(銀行)まで400m
第四北越銀行 柏崎東本町支店(銀行)まで640m
柏崎東本町郵便局(郵便局)まで480m
セブン-イレブン 柏崎錦町店(コンビニ)まで550m
ローソン 柏崎学校町店(コンビニ)まで720m
ウエルシア柏崎錦町店 (調剤薬局)(ドラッグストア)まで460m
医療法人社団 本田医院(病院)まで310m
つよしクリニック(病院)まで690m
まえかわ歯科クリニック(病院)まで720m
樋口内科医院扇町(病院)まで780m
柏崎信用金庫 諏訪町支店(銀行)まで400m
第四北越銀行 柏崎東本町支店(銀行)まで640m
柏崎信用金庫 四谷支店(銀行)まで780m
柏崎東本町郵便局(郵便局)まで480m

※カメラのアイコンがある場合は、マウスをポイントするとその施設の画像がご覧いただけます。


担当取扱い店舗情報

取扱い店舗画像
株式会社 ホーメックス
TEL: 0257-24-0034
所在地: 新潟県柏崎市土合628-1
交通:
営業時間: 8:30~17:30/定休日:土・日・祝(対応可能です) 年末年始・お盆・GW
免許番号: 新潟県知事(9)第3199号
所属団体名: 新潟県宅地建物取引業協会 柏崎支部
取引態様: 一般
ホームページ: http://homex.co.jp/