新潟県柏崎市米山町2357-1 中古一戸建て 5DK 500,000円の物件情報

5DK、米山海水浴場まで徒歩約8分、国道8号まで約300m

物件名/所在地 詳細 価格
柏崎市米山町売住宅
新潟県柏崎市米山町2357-1
  • 土地面積
    :161.98㎡ /48.99坪
  • 建物面積
    :118.2㎡ /35.75坪
  • 間取り
    :5DK
  • 築年月
    :不詳
500,000
  • 柏崎市米山町売住宅
    株式会社 ホーメックス
  • この物件を問い合わせる/無料
  • TEL: 0257-24-0034 0257-24-0034

物件画像

外観
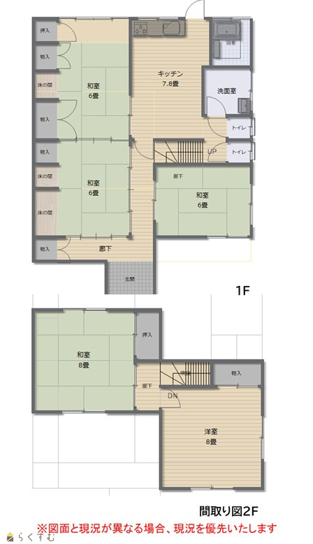
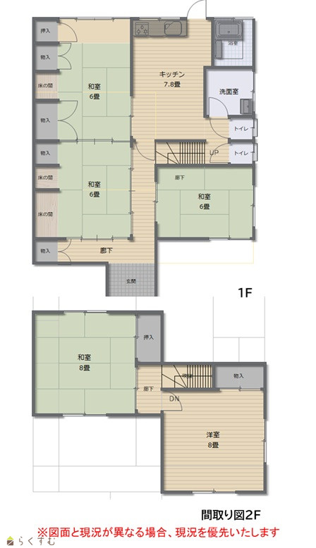
間取り
物件画像
※画像クリックで拡大表示
外観
物件画像
※画像クリックで拡大表示
間取り図
詳細画像
物件画像
和室
物件画像
DK
物件画像
風呂
物件画像
洗面脱衣室
物件画像
ホーメックス不動産サイト
物件画像
地図画像


物件概要

物件コード 00088-200788
物件名 柏崎市米山町売住宅
交通 駅:信越線 米山駅から徒歩7分
物件所在地 新潟県柏崎市米山町2357-1
物件種別 中古一戸建て
構造 木造 階建 地上2階建
建ぺい率/容積率 -
建物面積 1階 81㎡/ 2階 37.2㎡/ 計 118.2㎡ /35.75坪
土地面積 161.98㎡ /48.99坪
築年月 不詳
入居(引き渡し)時期 相談
用途地域 無指定 地目 宅地
都市計画 都市計画区域外 学校区 西小学校(10,619m)・第三中学校(9,647m)
形状 - 道路 公道
私道 - その他の制限 法22条指定区域
  • 柏崎市米山町売住宅
    株式会社 ホーメックス
  • この物件を問い合わせる/無料
  • TEL: 0257-24-0034 0257-24-0034

物件詳細情報

所在階/階数 - 号室 -
販売価格 500,000円 方位
間取り 5DK (和室:6畳、6畳、6畳、8畳) (洋室:8)
DK7.8
専有面積 - バルコニー面積 -
その他面積 - 駐車場 -
管理費 - 修繕積立金 -
現況 -
仲介手数料 330,000円
利用制限 -
設備 駐車2台可能
取引態様 一般
備考 □昭和59年建築
□下水は汲み取りです。
□軒天、2階天井工事が必要となります。
□改修工事は承れますのでご相談ください。
□建物は登記されておりません。
□建物保存登記をする場合は別途費用がかかります。
□物置(7.43㎡)(未登記)があります。
□井戸付(モーター交換必要)
□現況有姿での売買となります。(動産あり)
取り扱い会社

株式会社 ホーメックス

新潟県柏崎市土合628-1

情報登録日 2026/04/10 次回更新予定日 2026/05/22
取引条件有効期限 2025/08/15
  • 柏崎市米山町売住宅
    株式会社 ホーメックス
  • この物件を問い合わせる/無料
  • TEL: 0257-24-0034 0257-24-0034

この物件の地図・周辺情報・行政情報

この物件の周辺情報・行政情報を詳しく見る
【周辺情報】
物件の近くにあるコンビニや銀行・学校など、アイコン付のマップで詳しく表示できます!
【行政情報】
水道料や下水道料・ガス料金など、暮らしに関係のある情報を表示しています。
鉢崎郵便局(郵便局)まで420m

※カメラのアイコンがある場合は、マウスをポイントするとその施設の画像がご覧いただけます。


担当取扱い店舗情報

取扱い店舗画像
株式会社 ホーメックス
TEL: 0257-24-0034
所在地: 新潟県柏崎市土合628-1
交通:
営業時間: 8:30~17:30/定休日:土・日・祝(対応可能です) 年末年始・お盆・GW
免許番号: 新潟県知事(9)第3199号
所属団体名: 新潟県宅地建物取引業協会 柏崎支部
取引態様: 一般
ホームページ: http://homex.co.jp/