新潟県柏崎市関町6-5 投資物件・その他 6,200,000円の物件情報

物件名/所在地 詳細 価格
表面利回り
アンジュ枇杷島
新潟県柏崎市関町6-5
  • 土地面積
    :269.01㎡ /81.37坪
  • 建ぺい率
    :60%
  • 容積率
    :200%
6,200,000
12%
(満室想定時)
  • アンジュ枇杷島
    株式会社 アイエステート
  • この物件を問い合わせる/無料
  • TEL: 0257-24-2545 0257-24-2545

物件画像

外観
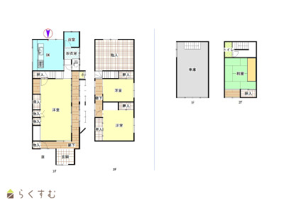
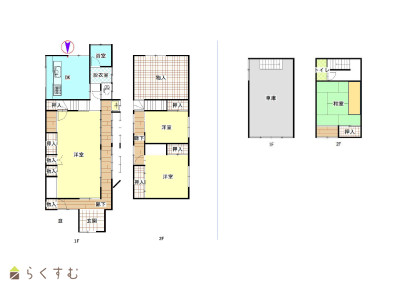
間取り
物件画像
※画像クリックで拡大表示
外観
物件画像
※画像クリックで拡大表示
間取り図 本棟+別棟 現況と相違の場合は現況優先とします
詳細画像
物件画像
1
物件画像
2
物件画像
3
物件画像
4
物件画像
5
物件画像
6
物件画像
7
物件画像
8
物件画像
別棟
物件画像
地図画像


物件概要

物件コード 00083-200044
物件名 アンジュ枇杷島
交通 駅:信越線 柏崎駅から徒歩12分、バス:宮場町から徒歩3分
物件所在地 新潟県柏崎市関町6-5
物件種別 投資物件・その他
物件区分 1棟売りマンション・アパート
構造 木造 階建 地上2階建
建ぺい率/容積率 60%/200%
建物面積 計 192.35㎡ /58.18坪
土地面積 269.01㎡ /81.37坪
築年月 1976年10月(築49年)
入居(引き渡し)時期 相談
用途地域 第1種低層住居専用地域 地目 宅地
都市計画 非線引き都市計画区域 学校区 枇杷島小学校(275m)・鏡が沖中学校(1,023m)
形状 - 道路 -
私道 - その他の制限 -
  • アンジュ枇杷島
    株式会社 アイエステート
  • この物件を問い合わせる/無料
  • TEL: 0257-24-2545 0257-24-2545

物件詳細情報

所在階/階数 - 号室 -
販売価格 6,200,000円 方位 -
表面利回り(満室想定時) 12% 満室想定年収 - (想定月収: - )
現行利回り - 現行年間年収 -
住戸数 1
間取り 3SLDK
専有面積 192.35㎡ /58.18坪 ~ 192.35㎡ /58.18坪 バルコニー面積 -
その他面積 - 駐車場 2~3台
管理費 - 修繕積立金 -
現況 賃貸中
仲介手数料 270,600円
利用制限 -
設備 公営水道、都市ガス、下水道
取引態様 一般
備考 -
取り扱い会社

株式会社 アイエステート

新潟県柏崎市東港町4番1号

情報登録日 2025/12/17 次回更新予定日 2026/06/01
取引条件有効期限 2026/06/30
  • アンジュ枇杷島
    株式会社 アイエステート
  • この物件を問い合わせる/無料
  • TEL: 0257-24-2545 0257-24-2545

この物件の地図・周辺情報・行政情報

この物件の周辺情報・行政情報を詳しく見る
【周辺情報】
物件の近くにあるコンビニや銀行・学校など、アイコン付のマップで詳しく表示できます!
【行政情報】
水道料や下水道料・ガス料金など、暮らしに関係のある情報を表示しています。
セブン-イレブン 柏崎若葉町店(コンビニ)まで810m
セブン-イレブン 柏崎穂波町店(コンビニ)まで920m

※カメラのアイコンがある場合は、マウスをポイントするとその施設の画像がご覧いただけます。


担当取扱い店舗情報

取扱い店舗画像
株式会社 アイエステート
TEL: 0257-24-2545
所在地: 新潟県柏崎市東港町4番1号
交通: 柏崎駅
営業時間: 9:00~17:00/定休日:日曜日・祝日
免許番号: 新潟県知事(3)第5068号
所属団体名: 新潟県宅地建物取引協会 柏崎支部
取引態様: 一般
ホームページ: http://www.aiestate.co.jp/