新潟県長岡市下々条町2484番地9 中古一戸建て 2LDK 23,800,000円の物件情報

木の温もりを感じる自然志向のログハウスライフ

物件名/所在地 詳細 価格
下々条町売ログハウス
新潟県長岡市下々条町2484番地9
  • 土地面積
    :222.98㎡ /67.45坪
  • 建物面積
    :105.62㎡ /31.95坪
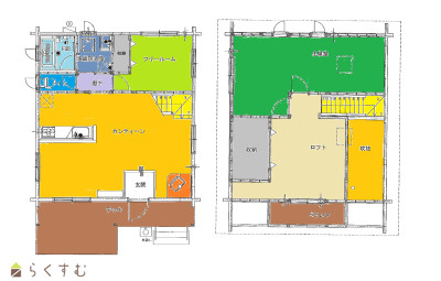
  • 間取り
    :2LDK
  • 築年月
    :2014年10月
23,800,000
  • 下々条町売ログハウス
    橋本建設 株式会社
  • この物件を問い合わせる/無料
  • TEL: 0258-63-1112 0258-63-1112

物件画像

外観
間取り
物件画像
※画像クリックで拡大表示
 
物件画像
※画像クリックで拡大表示
 
詳細画像
物件画像
 
物件画像
 
物件画像
 
物件画像
 
物件画像
1階居室
物件画像
1階居室・収納
物件画像
2階ロフト
物件画像
2階ロフト
物件画像
 ベランダ
物件画像
2階居室
物件画像
2階居室
物件画像
キッチン
物件画像
洗面化粧室 
物件画像
浴室
物件画像
トイレ 
物件画像
2階ロフト収納
物件画像
デッキ
物件画像
カーポート・収納棚
物件画像
外部収納
物件画像
地図画像


物件概要

薪ストーブやデッキ、ロフト等、のんびり楽しめる暮らしをしてみませんか?
物件コード 00070-200096
物件名 下々条町売ログハウス
交通 駅:信越線 押切駅から徒歩28分、バス:大野から徒歩2分
物件所在地 新潟県長岡市下々条町2484番地9
物件種別 中古一戸建て
構造 丸太組み構法 階建 地上2階建
建ぺい率/容積率 60%/200%
建物面積 1階 56.34㎡/ 2階 49.28㎡/ 計 105.62㎡ /31.95坪
土地面積 222.98㎡ /67.45坪
築年月 2014年10月(築11年)
入居(引き渡し)時期 相談
用途地域 第2種中高層住居専用地域 地目 宅地  (現状:宅地)
都市計画 市街化区域 学校区 黒条小学校(666m)・堤岡中学校(248m)
形状 間口 12.38m × 奥行 17.99m 道路 市道:黒条196号線
私道 - その他の制限 地区計画有(新組地区)
  • 下々条町売ログハウス
    橋本建設 株式会社
  • この物件を問い合わせる/無料
  • TEL: 0258-63-1112 0258-63-1112

物件詳細情報

所在階/階数 - 号室 -
販売価格 23,800,000円 方位 北西
間取り 2LDK (洋室:13.8、5.3)
LDK21
専有面積 - バルコニー面積 -
その他面積 - 駐車場 -
管理費 - 修繕積立金 -
現況 空家
仲介手数料 851,400円
利用制限 -
設備 閑静な住宅街、LDK15帖以上、全室フローリング、築15年以内、駐車3台以上可能、TVインターホン、複層ガラス、デインプルキー、カウンターキッチン、IHクッキングヒーター、追いだき機能付き、温水洗浄便座、エアコンあり、ウッドデッキ・テラス、都市ガス、上水道、下水道
取引態様 一般
備考 価格改定2,200万円→2,380万円(令和8年3月4日)
取り扱い会社

橋本建設 株式会社

新潟県見附市市野坪町31-3

情報登録日 2026/03/04 次回更新予定日 2026/05/22
取引条件有効期限 2027/09/30
  • 下々条町売ログハウス
    橋本建設 株式会社
  • この物件を問い合わせる/無料
  • TEL: 0258-63-1112 0258-63-1112

この物件の地図・周辺情報・行政情報

この物件の周辺情報・行政情報を詳しく見る
【周辺情報】
物件の近くにあるコンビニや銀行・学校など、アイコン付のマップで詳しく表示できます!
【行政情報】
水道料や下水道料・ガス料金など、暮らしに関係のある情報を表示しています。

担当取扱い店舗情報

取扱い店舗画像
橋本建設 株式会社
TEL: 0258-63-1112
所在地: 新潟県見附市市野坪町31-3
交通: 見附駅
営業時間: 9:00~17:00/定休日:水・木曜日
免許番号: 新潟県知事(9)第3180号
所属団体名: 公益社団法人 新潟県宅地建物取引業協会 三条支部
取引態様: 一般
ホームページ: http://hashikenhome.com/