新潟県見附市学校町1丁目477-6 中古一戸建て 2K 3,800,000円の物件情報

※商談中

物件名/所在地 詳細 価格
見附市学校町 店舗
新潟県見附市学校町1丁目477-6
  • 土地面積
    :131.51㎡ /39.78坪
  • 建物面積
    :50.44㎡ /15.25坪
  • 間取り
    :2K
  • 築年月
    :1998年1月
3,800,000
  • 見附市学校町 店舗
    株式会社 山六木材
  • この物件を問い合わせる/無料
  • TEL: 0258-78-4413 0258-78-4413

物件画像

外観
間取り
物件画像
※画像クリックで拡大表示
外観
物件画像
※画像クリックで拡大表示
建物平面図
詳細画像
物件画像
外観
物件画像
外観
物件画像
駐車場
物件画像
1階
物件画像
1階
物件画像
2階
物件画像
2階
物件画像
内部
物件画像
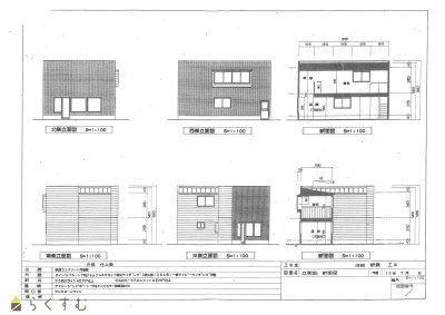
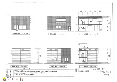
立面図、断面図
物件画像
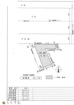
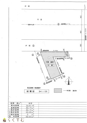
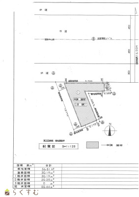
配置図


物件概要

物件コード 00063-200096
物件名 見附市学校町 店舗
交通 駅:信越線 見附駅から徒歩20分、バス:見附保育園前から徒歩2分
物件所在地 新潟県見附市学校町1丁目477-6
物件種別 中古一戸建て
構造 木造 階建 地上2階建
建ぺい率/容積率 60%/200%
建物面積 1階 30.19㎡/ 2階 20.25㎡/ 計 50.44㎡ /15.25坪
土地面積 131.51㎡ /39.78坪
築年月 1998年1月(築28年)
入居(引き渡し)時期 相談
用途地域 準工業地域 地目 宅地
都市計画 市街化区域 学校区 見附小学校(395m)・見附中学校(1,277m)
形状 間口 10m 道路 北側:市道
私道 - その他の制限 -
  • 見附市学校町 店舗
    株式会社 山六木材
  • この物件を問い合わせる/無料
  • TEL: 0258-78-4413 0258-78-4413

物件詳細情報

所在階/階数 - 号室 -
販売価格 3,800,000円 方位 -
間取り 2K
専有面積 - バルコニー面積 -
その他面積 - 駐車場 -
管理費 - 修繕積立金 -
現況 空家
仲介手数料 330,000円
利用制限 -
設備 日当り良好、駐車3台以上可能、都市ガス、上水道、下水道、田舎暮らし、事業向け
取引態様 一般
備考 駐車場3台可(カーポート)
未登記建物
現況有姿取引
土地は4筆
取り扱い会社

株式会社 山六木材

新潟県三島郡出雲崎町松本99-1

情報登録日 2026/04/07 次回更新予定日 2026/05/22
取引条件有効期限 2026/06/08
  • 見附市学校町 店舗
    株式会社 山六木材
  • この物件を問い合わせる/無料
  • TEL: 0258-78-4413 0258-78-4413

この物件の地図・周辺情報・行政情報

この物件の周辺情報・行政情報を詳しく見る
【周辺情報】
物件の近くにあるコンビニや銀行・学校など、アイコン付のマップで詳しく表示できます!
【行政情報】
水道料や下水道料・ガス料金など、暮らしに関係のある情報を表示しています。
ローソン 見附学校町店(コンビニ)まで190m
マルイ 見附店(スーパー)まで810m
クスリのアオキ 本所店(ドラッグストア)まで600m
見附市立病院(病院)まで360m
JAえちご中越 見附東支店(銀行)まで760m
見附郵便局(郵便局)まで280m

※カメラのアイコンがある場合は、マウスをポイントするとその施設の画像がご覧いただけます。


担当取扱い店舗情報

取扱い店舗画像
株式会社 山六木材
TEL: 0258-78-4413
所在地: 新潟県三島郡出雲崎町松本99-1
交通: JR 出雲崎駅
営業時間: 8:15~17:30/定休日:水曜・年末年始休暇、GW、夏季休暇
免許番号: 新潟県知事(3)第5114号
所属団体名: 新潟県宅地建物取引協会 長岡支部
取引態様: 一般
ホームページ: https://yama-roku-moku.com/