新潟県三島郡出雲崎町大寺925番地 中古一戸建て 7LDK 1,600,000円の物件情報

のどかな田園風景が広がる集落内の物件。海へも近いです。

物件名/所在地 詳細 価格
出雲崎町大寺中古住宅
新潟県三島郡出雲崎町大寺925番地
  • 土地面積
    :551.56㎡ /166.84坪
  • 建物面積
    :500.94㎡ /151.53坪
  • 間取り
    :7LDK
  • 築年月
    :不詳
1,600,000
  • 出雲崎町大寺中古住宅
    ブレイン・リアルエステート合同会社
  • この物件を問い合わせる/無料
  • TEL: 0258-86-6934 0258-86-6934

物件画像

外観
間取り
物件画像
※画像クリックで拡大表示
外観
物件画像
※画像クリックで拡大表示
間取り
詳細画像
物件画像
内観1
物件画像
内観2
物件画像
内観3
物件画像
内観4
物件画像
内観5
物件画像
内観6
物件画像
内観7
物件画像
内観8
物件画像
内観9
物件画像
内観10
物件画像
印刷用地図


物件概要

セカンドハウスやシェアハウスとしてのご利用もできます。
物件コード 00044-200705
物件名 出雲崎町大寺中古住宅
交通 駅:越後線 妙法寺駅から徒歩12分、バス:大寺から徒歩3分
物件所在地 新潟県三島郡出雲崎町大寺925番地
物件種別 中古一戸建て
構造 木造 階建 地上2階建
建ぺい率/容積率 60%/200%
建物面積 1階 344.97㎡/ 2階 155.97㎡/ 計 500.94㎡ /151.53坪
土地面積 551.56㎡ /166.84坪
築年月 不詳
入居(引き渡し)時期 相談
用途地域 用途の指定のない地域 地目 宅地
都市計画 都市計画区域外 学校区 出雲崎小学校(3,809m)・出雲崎中学校(3,827m)
形状 間口 21m × 奥行 38m 道路 南側公道 東側公道
私道 - その他の制限 -
  • 出雲崎町大寺中古住宅
    ブレイン・リアルエステート合同会社
  • この物件を問い合わせる/無料
  • TEL: 0258-86-6934 0258-86-6934

物件詳細情報

所在階/階数 - 号室 -
販売価格 1,600,000円 方位 南東
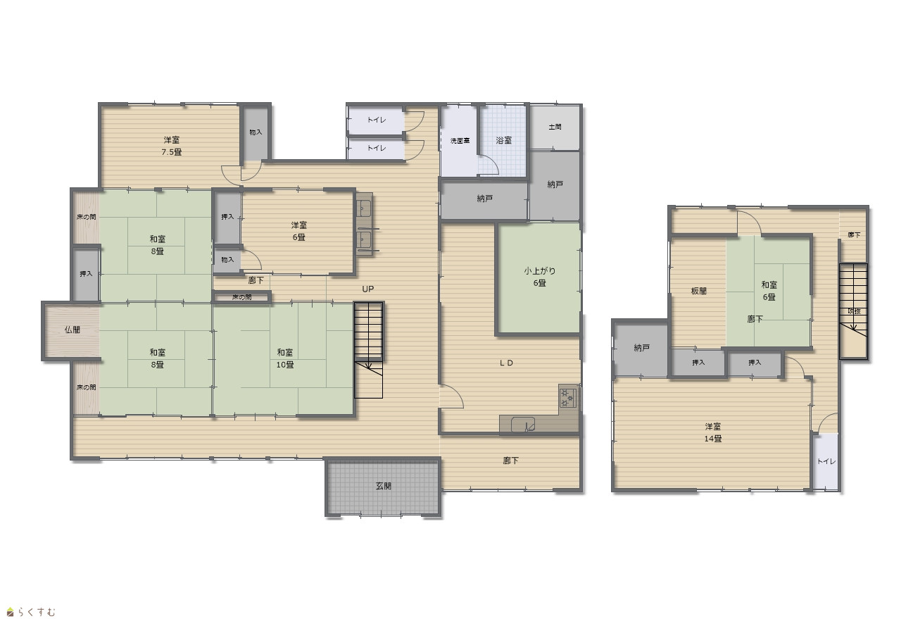
間取り 7LDK (和室:6畳、8畳、8畳、10畳、6畳) (洋室:6、7.5、14)
LDK15
専有面積 - バルコニー面積 -
その他面積 - 駐車場 -
管理費 - 修繕積立金 -
現況 居住中
仲介手数料 110,000円
利用制限 -
設備 角地、日当り良好、閑静な住宅街、LDK15帖以上、駐車3台以上可能、南向き、システムキッチン、3口コンロ、ガスコンロ設置済み、追いだき機能付き、バス1坪以上、トイレ2か所以上、LPG、上水道、浄化槽、即引き渡し可能、別荘、田舎暮らし、事業向け
取引態様 一般
備考 -
取り扱い会社

ブレイン・リアルエステート合同会社

新潟県長岡市大島本町3丁目10番8号202号室

情報登録日 2025/12/23 次回更新予定日 2026/04/03
取引条件有効期限 2026/03/31
  • 出雲崎町大寺中古住宅
    ブレイン・リアルエステート合同会社
  • この物件を問い合わせる/無料
  • TEL: 0258-86-6934 0258-86-6934

この物件の地図・周辺情報・行政情報

この物件の周辺情報・行政情報を詳しく見る
【周辺情報】
物件の近くにあるコンビニや銀行・学校など、アイコン付のマップで詳しく表示できます!
【行政情報】
水道料や下水道料・ガス料金など、暮らしに関係のある情報を表示しています。

担当取扱い店舗情報

取扱い店舗画像
ブレイン・リアルエステート合同会社
TEL: 0258-86-6934
所在地: 新潟県長岡市大島本町3丁目10番8号202号室
交通:
営業時間: 9:30~18:00/定休日:水曜日、日曜日
免許番号: 新潟県知事(4)第4978号
所属団体名: ブレインリアルエステート合同会社
取引態様: 一般
ホームページ: http://www.brain-niigata.co.jp