新潟県長岡市古正寺3丁目127番 投資物件・その他 14,000,000円の物件情報

希少な分譲タイプの事務所です。駐車場1台確保済み!

物件名/所在地 詳細 価格
表面利回り
サーパス古正寺中央公園 事務所区画
102号室
新潟県長岡市古正寺3丁目127番
  • 土地面積
    :1,550.47㎡ /469.01坪
  • 建ぺい率
    :70%
  • 容積率
    :200%
14,000,000
-
  • サーパス古正寺中央公園 事務所区画
    株式会社 高野不動産販売
  • この物件を問い合わせる/無料
  • TEL: 0258-33-7711 0258-33-7711

物件画像

外観
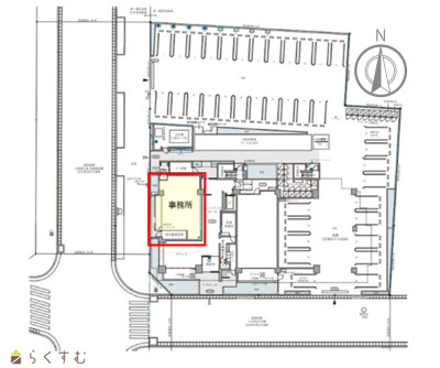
間取り
物件画像
※画像クリックで拡大表示
外観
物件画像
※画像クリックで拡大表示
間取り
詳細画像
物件画像
敷地図
物件画像
自動ドア
物件画像
室内スケルトンです
物件画像
室内スケルトンです
物件画像
室内スケルトンです
物件画像
室内スケルトンです
物件画像
給排水引き込み済み
物件画像
分電盤
物件画像
トランクルーム付き
物件画像
トランクルーム付き
物件画像
警備システム
物件画像
インターフォン
物件画像
レターボックス
物件画像
駐車場一台確保済み
物件画像
印刷用地図


物件概要

恵まれた住環境の中の事務所です。士業の方におすすめ☆
物件コード 00041-200978
物件名 サーパス古正寺中央公園 事務所区画
交通 駅:上越新幹線 長岡駅から徒歩45分、バス:寺島から徒歩4分
物件所在地 新潟県長岡市古正寺3丁目127番
物件種別 投資物件・その他
物件区分 マンション(区分所有)
構造 鉄筋コン 階建 地上9階建
建ぺい率/容積率 70%/200%
建物面積 -
土地面積 1,550.47㎡ /469.01坪
築年月 2025年1月(築1年)
入居(引き渡し)時期 相談
用途地域 第2種住居地域 地目 宅地  (現状:宅地)
都市計画 市街化区域 学校区 大島小学校(1,187m)・大島中学校(900m)
形状 - 道路 -
私道 - その他の制限 -
  • サーパス古正寺中央公園 事務所区画
    株式会社 高野不動産販売
  • この物件を問い合わせる/無料
  • TEL: 0258-33-7711 0258-33-7711

物件詳細情報

所在階/階数 1階/9階 号室 102号室
販売価格 14,000,000円 方位 -
表面利回り(満室想定時) - 満室想定年収 - (想定月収: - )
現行利回り - 現行年間年収 -
住戸数 1
間取り -
専有面積 63.02㎡ /19.06坪 ~ 63.02㎡ /19.06坪 バルコニー面積 -
その他面積 - 駐車場 6,000円/月
管理費 13,700円 修繕積立金 6,600円
現況 空家
仲介手数料 491,436円
利用制限 ペット:不可、楽器:不可
設備 角地、エレベーター、駐車場(近隣含む)、公営水道、都市ガス、下水道、事業向け
取引態様 一般
備考 飲食店や物販等の店舗利用不可。
修繕積立基金660,000円(購入時一括支払い)
古正寺町内会運営負担金年額5,000円の支払いが必要です。 
取り扱い会社

株式会社 高野不動産販売

新潟県長岡市柏町1丁目4-33

情報登録日 2026/03/07 次回更新予定日 2026/05/22
取引条件有効期限 2026/04/28
  • サーパス古正寺中央公園 事務所区画
    株式会社 高野不動産販売
  • この物件を問い合わせる/無料
  • TEL: 0258-33-7711 0258-33-7711

この物件の地図・周辺情報・行政情報

この物件の周辺情報・行政情報を詳しく見る
【周辺情報】
物件の近くにあるコンビニや銀行・学校など、アイコン付のマップで詳しく表示できます!
【行政情報】
水道料や下水道料・ガス料金など、暮らしに関係のある情報を表示しています。
セブン-イレブン 長岡寺島町店(コンビニ)まで380m
原信 寺島店(スーパー)まで430m
ウエルシア長岡古正寺店 (調剤薬局)(ドラッグストア)まで230m

※カメラのアイコンがある場合は、マウスをポイントするとその施設の画像がご覧いただけます。


担当取扱い店舗情報

取扱い店舗画像
株式会社 高野不動産販売
TEL: 0258-33-7711
所在地: 新潟県長岡市柏町1丁目4-33
交通: 長岡駅
営業時間: 9:00~17:30/定休日:土曜日・日曜日・祝日・お盆・年末年始
免許番号: 新潟県知事(1)第5568号
所属団体名: (公社)新潟県宅地建物取引業協会,(公社)首都圏不動産公正取引協議会,(公財)日本賃貸住宅管理協会
取引態様: 一般
ホームページ: https://www.tknf.co.jp