新潟県長岡市千手2丁目11-18 中古マンション 4LDK 23,500,000円の物件情報

築20年未満の分譲マンションです!

物件名/所在地 詳細 価格
サーパス千手弐番館201号室
201号室
新潟県長岡市千手2丁目11-18
  • 専有面積
    :88.57㎡ /26.79坪
  • 間取り
    :4LDK
  • 築年月
    :2006年11月
23,500,000
  • サーパス千手弐番館201号室
    株式会社 高野不動産販売
  • この物件を問い合わせる/無料
  • TEL: 0258-33-7711 0258-33-7711

物件画像

外観
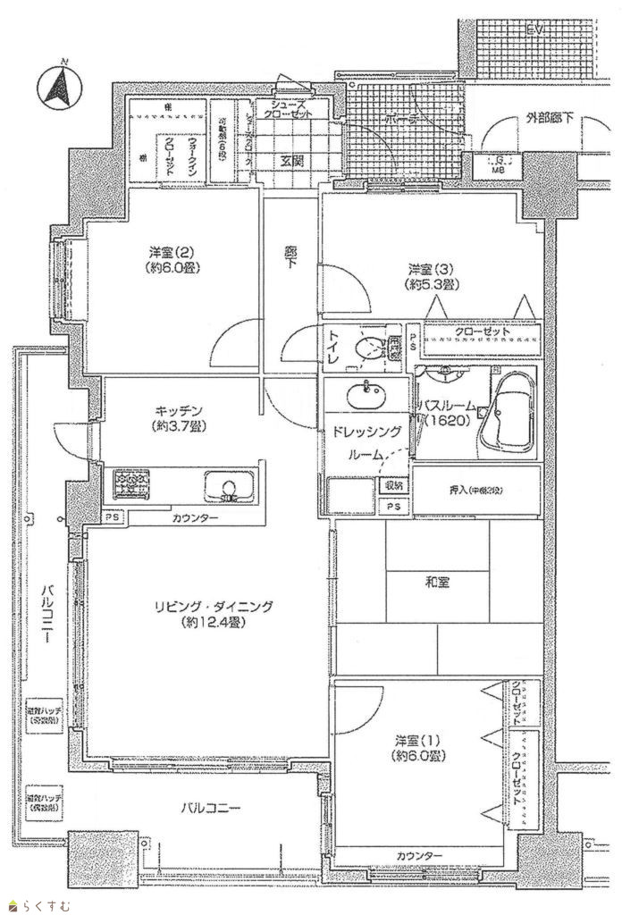
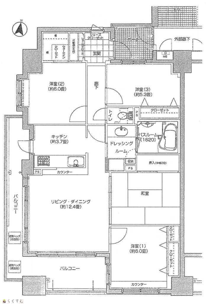
間取り
物件画像
※画像クリックで拡大表示
正面玄関側(西側)
物件画像
※画像クリックで拡大表示
4LDK
詳細画像
物件画像
キッチン
物件画像
玄関
物件画像
リビング
物件画像
居室
物件画像
脱衣・浴室
物件画像
浴室
物件画像
トイレ
物件画像
玄関
物件画像
エントランス
物件画像
浴室乾燥機
物件画像
モニターフォン
物件画像
リビング床暖房
物件画像
地図画像


物件概要

角部屋で階下に住戸が無い、4LDKです
物件コード 00041-200896
物件名 サーパス千手弐番館201号室
交通 駅:上越新幹線 長岡駅から徒歩14分、バス:柏町から徒歩4分
物件所在地 新潟県長岡市千手2丁目11-18
物件種別 中古マンション
構造 鉄筋コン 階建 地上9階建
建ぺい率/容積率 90%/300%
建物面積 計 6,450.71㎡ /1,951.33坪
土地面積 1,791.41㎡ /541.9坪
築年月 2006年11月(築19年)
入居(引き渡し)時期 相談
用途地域 近隣商業地域 地目 宅地  (現状:宅地)
都市計画 市街化区域 学校区 千手小学校(213m)・南中学校(387m)
形状 - 道路 西側 公道 約22m、北側 公道 約15m
私道 - その他の制限 -
  • サーパス千手弐番館201号室
    株式会社 高野不動産販売
  • この物件を問い合わせる/無料
  • TEL: 0258-33-7711 0258-33-7711

物件詳細情報

所在階/階数 2階/9階 号室 201号室
販売価格 23,500,000円 方位 南西
間取り 4LDK (和室:6畳) (洋室:6、6、5.3)
LDK16.1
専有面積 88.57㎡ /26.79坪 バルコニー面積 16.77㎡ /5.07坪
その他面積 - 駐車場 7,000円(抽選)
管理費 12,700円 修繕積立金 19,500円
現況 空家
仲介手数料 841,500円
インターネット利用料 2,835円
支払必須
専有部分警備料 427円
支払必須(アルソック提携)
エスコートサービス利用料 330円
支払必須
利用制限 ペット:可、楽器:可
設備 角部屋、2階以上、閑静な住宅街、外観タイル張り、洗濯機置き場、エレベーター、宅配BOX、集会所、LDK15帖以上、全室フローリング、平面駐車場、南向き、管理人常駐(日中)、TV付きインターホン、エントランスオートロック、セキュリティ会社あり、対面式キッチン、食器洗浄乾燥機、浄水器、3口コンロ、ガスコンロ設置済み、浴室乾燥機、浴室1坪以上、温水洗浄便座、シャワー付き洗面台、エアコン、床暖房、都市ガス、公営水道、下水道
取引態様 一般
備考 駐車場は現在平置きの区画ですが、2年ごとに抽選があります。
取り扱い会社

株式会社 高野不動産販売

新潟県長岡市柏町1丁目4-33

情報登録日 2024/10/18 次回更新予定日 2026/05/26
取引条件有効期限 2025/02/08
  • サーパス千手弐番館201号室
    株式会社 高野不動産販売
  • この物件を問い合わせる/無料
  • TEL: 0258-33-7711 0258-33-7711

この物件の地図・周辺情報・行政情報

この物件の周辺情報・行政情報を詳しく見る
【周辺情報】
物件の近くにあるコンビニや銀行・学校など、アイコン付のマップで詳しく表示できます!
【行政情報】
水道料や下水道料・ガス料金など、暮らしに関係のある情報を表示しています。
セブン-イレブン 長岡西千手店(コンビニ)まで420m
ローソン 長岡幸町店(コンビニ)まで630m
柏薬局(ドラッグストア)まで280m
杉本内科医院(病院)まで70m
渡辺医院(病院)まで300m
シートン動物病院 長岡(病院)まで290m
長岡信用金庫 本店(銀行)まで690m
第四北越銀行 長岡本店営業部(銀行)まで780m

※カメラのアイコンがある場合は、マウスをポイントするとその施設の画像がご覧いただけます。


担当取扱い店舗情報

取扱い店舗画像
株式会社 高野不動産販売
TEL: 0258-33-7711
所在地: 新潟県長岡市柏町1丁目4-33
交通: 長岡駅
営業時間: 9:00~17:30/定休日:土曜日・日曜日・祝日・お盆・年末年始
免許番号: 新潟県知事(1)第5568号
所属団体名: (公社)新潟県宅地建物取引業協会,(公社)首都圏不動産公正取引協議会,(公財)日本賃貸住宅管理協会
取引態様: 一般
ホームページ: https://www.tknf.co.jp