新潟県長岡市長町2丁目2-2 中古一戸建て 6DK 7,800,000円の物件情報

高床式住宅(天井高約1450mm)!敷地内消雪設備あり!

物件名/所在地 詳細 価格
長町中古住宅
新潟県長岡市長町2丁目2-2
  • 土地面積
    :128.49㎡ /38.86坪
  • 建物面積
    :134.87㎡ /40.79坪
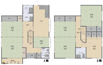
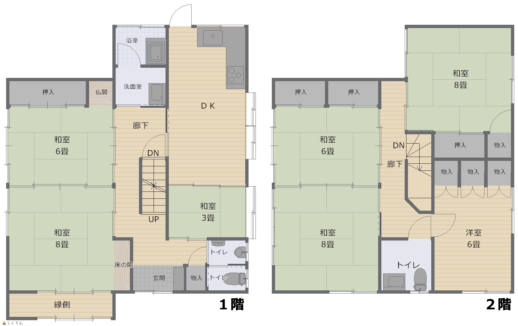
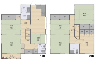
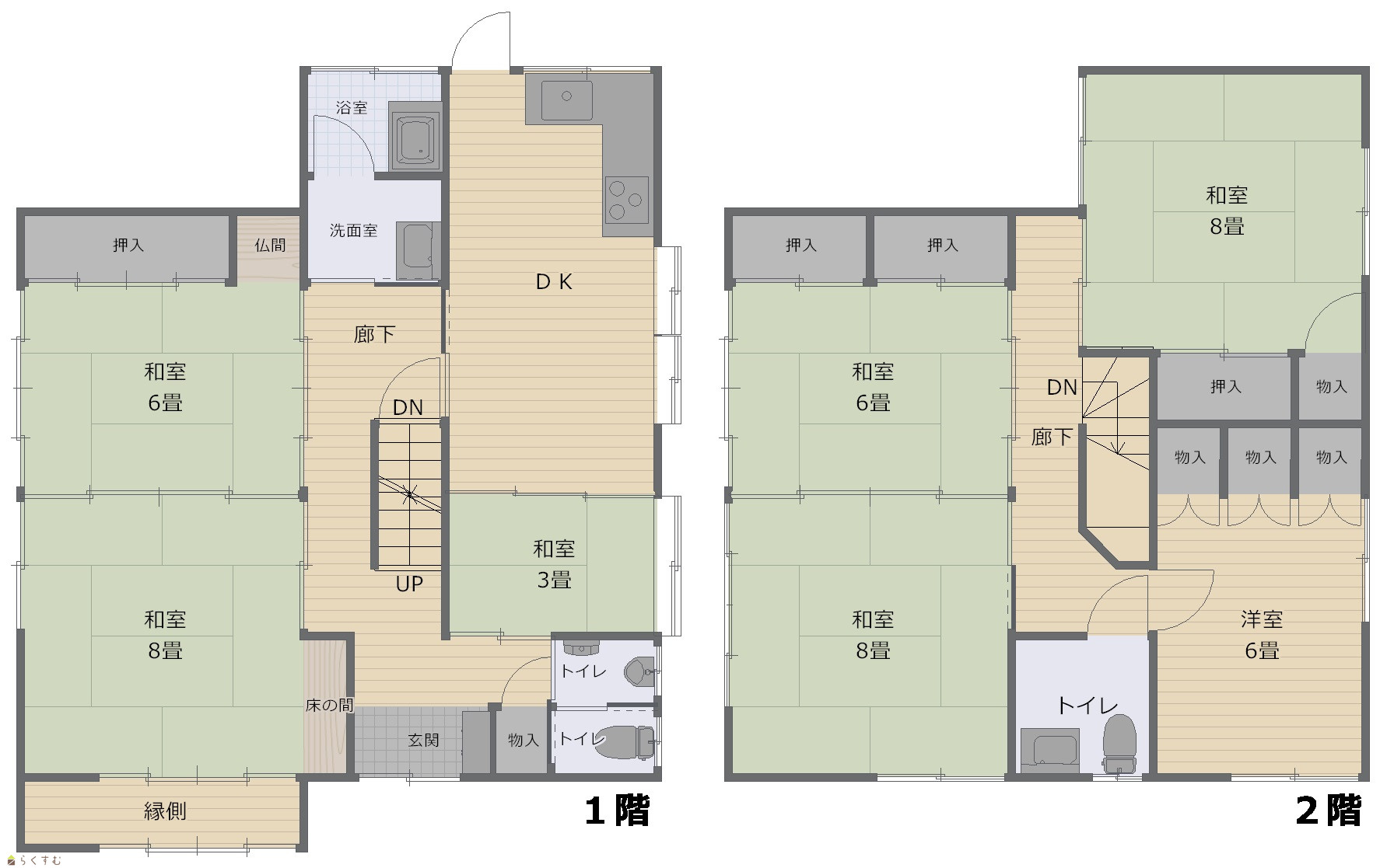
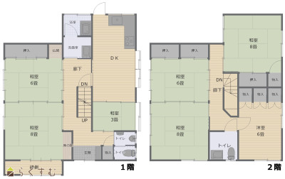
  • 間取り
    :6DK
  • 築年月
    :1983年10月
7,800,000
  • 長町中古住宅
    髙頭不動産 株式会社
  • この物件を問い合わせる/無料
  • TEL: 0120-1818-27 0120-1818-27

物件画像

外観
間取り
物件画像
※画像クリックで拡大表示
外観
物件画像
※画像クリックで拡大表示
間取り
詳細画像
物件画像
内観
物件画像
内観
物件画像
内観
物件画像
内観
物件画像
内観
物件画像
内観
物件画像
内観
物件画像
内観
物件画像
内観
物件画像
内観
物件画像
内観
物件画像
内観
物件画像
内観
物件画像
内観
物件画像
内観
物件画像
内観
物件画像
印刷用地図


物件概要

物件コード 00040-201155
物件名 長町中古住宅
交通 駅:信越線 長岡駅から徒歩17分、バス:昭和通りから徒歩2分
物件所在地 新潟県長岡市長町2丁目2-2
物件種別 中古一戸建て
構造 木造 階建 地上2階建
建ぺい率/容積率 80%/300%
建物面積 1階 68.63㎡/ 2階 66.24㎡/ 計 134.87㎡ /40.79坪
土地面積 128.49㎡ /38.86坪
築年月 1983年10月(築42年)
入居(引き渡し)時期 随時入居(引き渡し)可
用途地域 近隣商業地域 地目 宅地  (現状:宅地)
都市計画 市街化区域 学校区 神田小学校(242m)・東中学校(836m)
形状 - 道路 東側 公道 4m
私道 - その他の制限 準防火地域
  • 長町中古住宅
    髙頭不動産 株式会社
  • この物件を問い合わせる/無料
  • TEL: 0120-1818-27 0120-1818-27

物件詳細情報

所在階/階数 - 号室 -
販売価格 7,800,000円 方位
間取り 6DK
専有面積 - バルコニー面積 -
その他面積 - 駐車場 -
管理費 - 修繕積立金 -
現況 空家
仲介手数料 330,000円
利用制限 -
設備 閑静な住宅街
取引態様 専任
備考 敷地の一部が道路敷きになっております
取り扱い会社

髙頭不動産 株式会社

新潟県長岡市千歳1-3-25

情報登録日 2025/08/21 次回更新予定日 2025/11/17
取引条件有効期限 2025/12/31
  • 長町中古住宅
    髙頭不動産 株式会社
  • この物件を問い合わせる/無料
  • TEL: 0120-1818-27 0120-1818-27

この物件の地図・周辺情報・行政情報

この物件の周辺情報・行政情報を詳しく見る
【周辺情報】
物件の近くにあるコンビニや銀行・学校など、アイコン付のマップで詳しく表示できます!
【行政情報】
水道料や下水道料・ガス料金など、暮らしに関係のある情報を表示しています。

担当取扱い店舗情報

取扱い店舗画像
髙頭不動産 株式会社
TEL: 0120-1818-27
所在地: 新潟県長岡市千歳1-3-25
交通: 長岡駅
営業時間: 8時30分~17時30分(大手支店は9時~18時)/定休日:本社:土日祝日(事前予約での対応可能)、支店:日曜祝日第5土曜(毎年2月下旬から3月は休みなし)
免許番号: 新潟県知事(17)第191号
所属団体名: 新潟県宅地建物取引協会 長岡支部
取引態様: 専任
ホームページ: http://www.takato-f.com