新潟県長岡市宮本町3丁目甲2787-1 中古一戸建て 5DK 1,000,000円の物件情報

自然豊かな住環境

物件名/所在地 詳細 価格
宮本3丁目売物件
新潟県長岡市宮本町3丁目甲2787-1
  • 土地面積
    :827.33㎡ /250.26坪
  • 建物面積
    :213.31㎡ /64.52坪
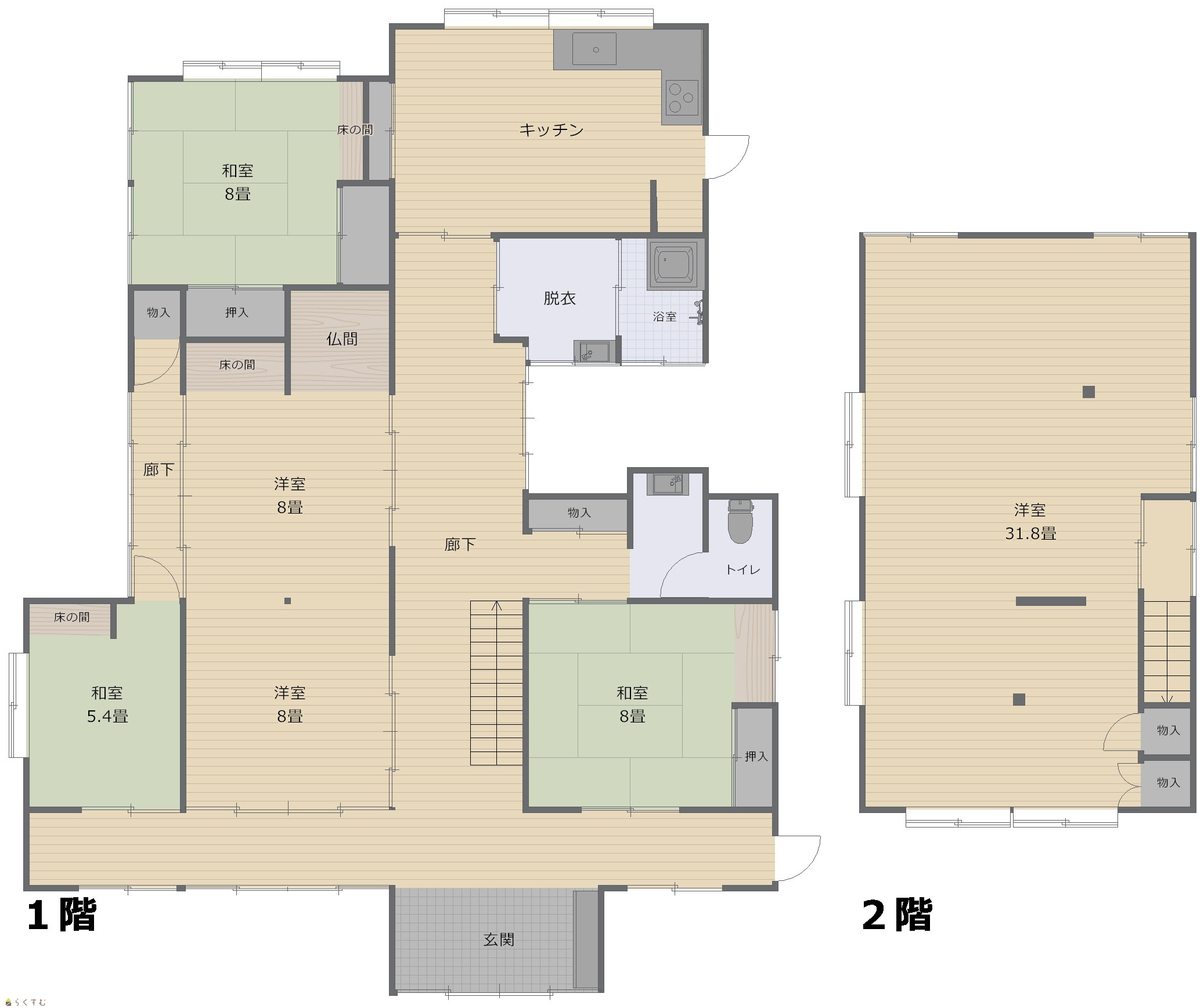
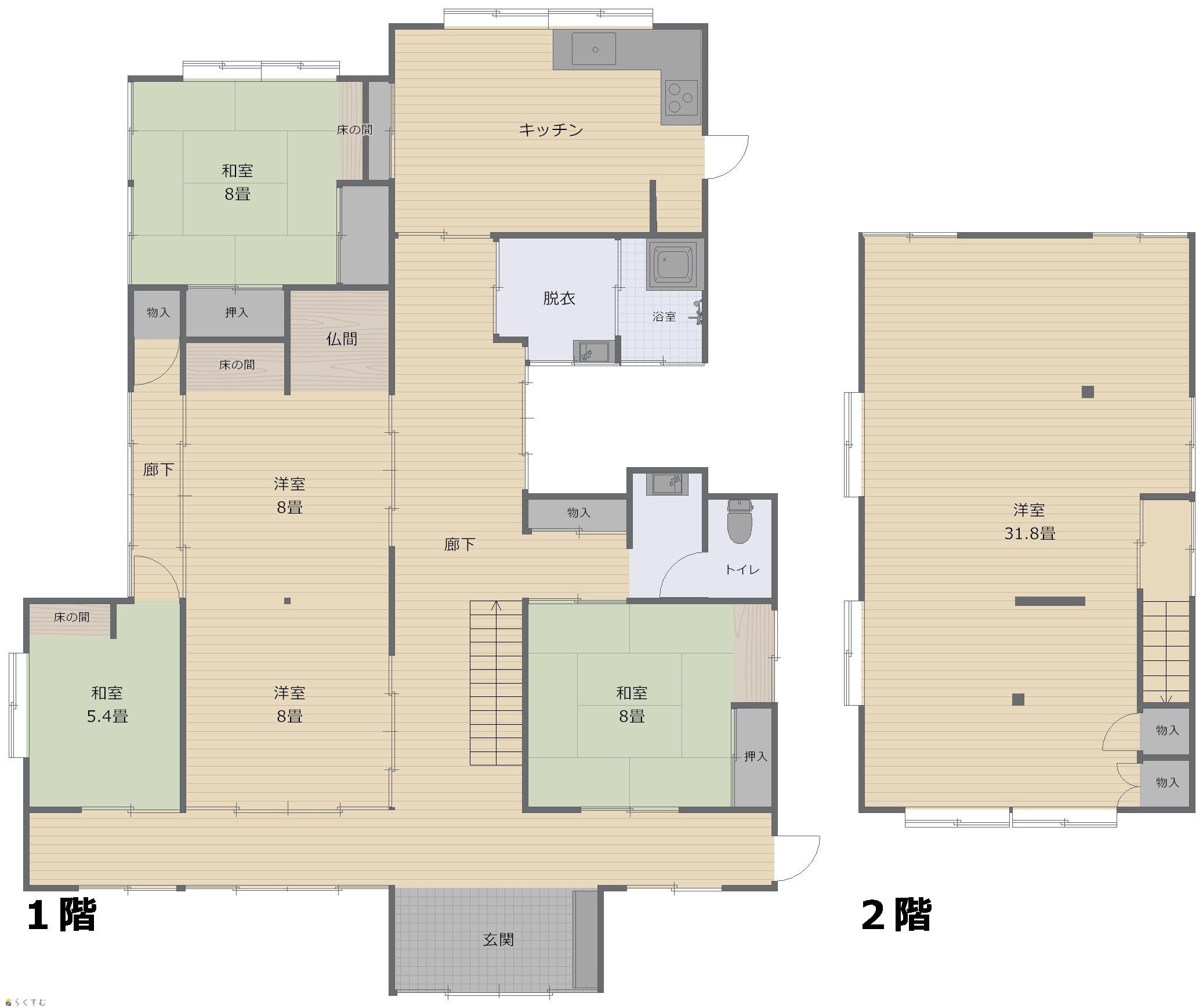
  • 間取り
    :5DK
  • 築年月
    :1974年7月
1,000,000
  • 宮本3丁目売物件
    髙頭不動産 株式会社
  • この物件を問い合わせる/無料
  • TEL: 0120-1818-27 0120-1818-27

物件画像

外観
間取り
物件画像
※画像クリックで拡大表示
外観
物件画像
※画像クリックで拡大表示
間取
詳細画像
物件画像
外観
物件画像
玄関
物件画像
廊下
物件画像
室内
物件画像
室内
物件画像
室内
物件画像
室内
物件画像
浴室
物件画像
洗面
物件画像
ダイニングキッチン
物件画像
室内
物件画像
地図


物件概要

物件コード 00040-201127
物件名 宮本3丁目売物件
交通 駅:信越線 来迎寺駅から徒歩124分、バス:宮本3丁目から徒歩4分
物件所在地 新潟県長岡市宮本町3丁目甲2787-1
物件種別 中古一戸建て
構造 木造 階建 地上2階建
建ぺい率/容積率 70%/200%
建物面積 1階 155.81㎡/ 2階 57.5㎡/ 計 213.31㎡ /64.52坪
土地面積 827.33㎡ /250.26坪
築年月 1974年7月(築51年)
入居(引き渡し)時期 随時入居(引き渡し)可
用途地域 無指定 地目 宅地  (現状:宅地、雑種地)
都市計画 市街化調整区域 学校区 宮本小学校(826m)・青葉台中学校(1,036m)
形状 - 道路 北側 公道 7m 除雪道路
私道 - その他の制限 -
  • 宮本3丁目売物件
    髙頭不動産 株式会社
  • この物件を問い合わせる/無料
  • TEL: 0120-1818-27 0120-1818-27

物件詳細情報

所在階/階数 - 号室 -
販売価格 1,000,000円 方位 -
間取り 5DK
専有面積 - バルコニー面積 -
その他面積 - 駐車場 -
管理費 - 修繕積立金 -
現況 空家
仲介手数料 330,000円
利用制限 -
設備 高台に立地、閑静な住宅街
取引態様 一般
備考 床が所々腐食しております。設備等を含め、修繕が必要な状態です。リフォームを前提にご検討ください。解体をご希望される場合、解体費の負担ご相談ください。
取り扱い会社

髙頭不動産 株式会社

新潟県長岡市千歳1-3-25

情報登録日 2025/08/20 次回更新予定日 2026/04/03
取引条件有効期限 2025/12/31
  • 宮本3丁目売物件
    髙頭不動産 株式会社
  • この物件を問い合わせる/無料
  • TEL: 0120-1818-27 0120-1818-27

この物件の地図・周辺情報・行政情報

この物件の周辺情報・行政情報を詳しく見る
【周辺情報】
物件の近くにあるコンビニや銀行・学校など、アイコン付のマップで詳しく表示できます!
【行政情報】
水道料や下水道料・ガス料金など、暮らしに関係のある情報を表示しています。

担当取扱い店舗情報

取扱い店舗画像
髙頭不動産 株式会社
TEL: 0120-1818-27
所在地: 新潟県長岡市千歳1-3-25
交通: 長岡駅
営業時間: 8時30分~17時30分(大手支店は9時~18時)/定休日:本社:土日祝日(事前予約での対応可能)、支店:日曜祝日第5土曜(毎年2月下旬から3月は休みなし)
免許番号: 新潟県知事(17)第191号
所属団体名: 新潟県宅地建物取引協会 長岡支部
取引態様: 一般
ホームページ: http://www.takato-f.com