新潟県長岡市新保1丁目9-31 中古一戸建て 3LDK 21,200,000円の物件情報

【価格改定しました!】2,320万円(R7.5.2)→2,120万円(R7.10.16)【令和7年5月リフォーム完了!】リフォーム内容・・・クロス張替、リビング用エアコン新品、トイレ新品&2階新設、畳表替、建具交換、WIC新設、等★自社物件につき仲介手数料不要★原信新保店まで徒歩約8分★お気軽にお問い合わせください!

物件名/所在地 詳細 価格
新保1丁目 売住宅
新潟県長岡市新保1丁目9-31
  • 土地面積
    :227.23㎡ /68.73坪
  • 建物面積
    :182.17㎡ /55.1坪
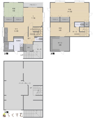
  • 間取り
    :3LDK
  • 築年月
    :1988年11月
21,200,000
  • 新保1丁目 売住宅
    髙頭不動産 株式会社
  • この物件を問い合わせる/無料
  • TEL: 0120-1818-27 0120-1818-27

物件画像

外観
間取り
物件画像
※画像クリックで拡大表示
外観
物件画像
※画像クリックで拡大表示
間取
詳細画像
物件画像
玄関
物件画像
洗面室
物件画像
洗面台
物件画像
浴室
物件画像
1階トイレ
物件画像
ダイニングキッチン8.2帖
物件画像
キッチン
物件画像
リビング7.7帖①
物件画像
リビング7.7帖②
物件画像
和室6帖①
物件画像
和室6帖②
物件画像
1階ホール
物件画像
2階洋室14.5帖①
物件画像
2階洋室14.5帖②
物件画像
2階洋室6帖
物件画像
WIC
物件画像
2階トイレ
物件画像
2階ホール
物件画像
インナーガレージ
物件画像
地図
動画


物件概要

★車2台分のインナーガレージあり★富曽亀小学校・東北中学校まで徒歩圏内★川崎東小学校への学区外就学可能区域
物件コード 00040-201106
物件名 新保1丁目 売住宅
交通 駅:信越線 北長岡駅から徒歩14分、バス:新保1丁目から徒歩3分
物件所在地 新潟県長岡市新保1丁目9-31
物件種別 中古一戸建て
構造 木造鉄筋コン 階建 地上3階建
建ぺい率/容積率 60%/200%
建物面積 1階 66.24㎡/ 2階 59.62㎡/ 3階 56.31㎡/ 計 182.17㎡ /55.1坪
土地面積 227.23㎡ /68.73坪
築年月 1988年11月(築37年)
入居(引き渡し)時期 随時入居(引き渡し)可
用途地域 第1種中高層住居専用地域 地目 宅地
都市計画 市街化区域 学校区 富曾亀小学校(509m)・東北中学校(875m)
形状 間口 12.3m × 奥行 18m 道路 北側 公道 幅員約5.7m 融雪道路
私道 - その他の制限 -
  • 新保1丁目 売住宅
    髙頭不動産 株式会社
  • この物件を問い合わせる/無料
  • TEL: 0120-1818-27 0120-1818-27

物件詳細情報

所在階/階数 - 号室 -
販売価格 21,200,000円 方位
間取り 3LDK (和室:6畳) (洋室:14.5、6)
LDK15.9
専有面積 - バルコニー面積 -
その他面積 - 駐車場 -
管理費 - 修繕積立金 -
現況 空家
仲介手数料 なし
利用制限 -
設備 スーパー近く、LDK15帖以上、駐車2台可能、TVインターホン、システムキッチン、IHクッキングヒーター、食器洗浄乾燥機、2口コンロ、追いだき機能付き、浴室乾燥機、バス1坪以上、温水洗浄便座、トイレ2か所以上、シャワー付き洗面台、エアコンあり、24時間換気システム、都市ガス、上水道、下水道、ウォークインクローゼット、全居室収納あり、シューズBOX、内装リフォーム済み
取引態様 売主
備考 ※第二種高度地区、建築基準法第22条区域、まちなか居住区域に該当します。
取り扱い会社

髙頭不動産 株式会社

新潟県長岡市千歳1-3-25

情報登録日 2025/10/16 次回更新予定日 2026/04/05
取引条件有効期限 2026/01/15
  • 新保1丁目 売住宅
    髙頭不動産 株式会社
  • この物件を問い合わせる/無料
  • TEL: 0120-1818-27 0120-1818-27

この物件の地図・周辺情報・行政情報

この物件の周辺情報・行政情報を詳しく見る
【周辺情報】
物件の近くにあるコンビニや銀行・学校など、アイコン付のマップで詳しく表示できます!
【行政情報】
水道料や下水道料・ガス料金など、暮らしに関係のある情報を表示しています。
ローソン 長岡新保店(コンビニ)まで230m
セブン-イレブン 長岡永田店(コンビニ)まで520m
原信 新保店(スーパー)まで590m
良食生活館 川崎店(スーパー)まで890m
ALPHAS薬局 美園店(ドラッグストア)まで370m
ALPHAS薬局 新保店(ドラッグストア)まで420m
ドラッグトップス 新保薬局(ドラッグストア)まで600m

※カメラのアイコンがある場合は、マウスをポイントするとその施設の画像がご覧いただけます。


担当取扱い店舗情報

取扱い店舗画像
髙頭不動産 株式会社
TEL: 0120-1818-27
所在地: 新潟県長岡市千歳1-3-25
交通: 長岡駅
営業時間: 8時30分~17時30分(大手支店は9時~18時)/定休日:本社:土日祝日(事前予約での対応可能)、支店:日曜祝日第5土曜(毎年2月下旬から3月は休みなし)
免許番号: 新潟県知事(17)第191号
所属団体名: 新潟県宅地建物取引協会 長岡支部
取引態様: 売主
ホームページ: http://www.takato-f.com