新潟県柏崎市柳橋町732-1 売土地・分譲地 7,781,000円の物件情報

柏崎駅南口まで徒歩約6分

物件名/所在地 詳細 価格
柳橋町77坪売土地
新潟県柏崎市柳橋町732-1
  • 土地面積
    :257.25㎡ /77.81坪
  • 坪単価
    :100,000円/坪
  • 建ぺい率
    :60%
  • 容積率
    :200%
7,781,000
  • 柳橋町77坪売土地
    株式会社 ai-will
  • この物件を問い合わせる/無料
  • TEL: 0257-35-5370 0257-35-5370

物件画像

外観
間取り
物件画像
※画像クリックで拡大表示
物件画像
※画像クリックで拡大表示
詳細画像
物件画像
物件画像


物件概要

当社売主につき仲介手数料不要!
物件コード 00037-200114
物件名 柳橋町77坪売土地
交通 駅:信越線 柏崎駅から徒歩12分、バス:枇杷島から徒歩2分
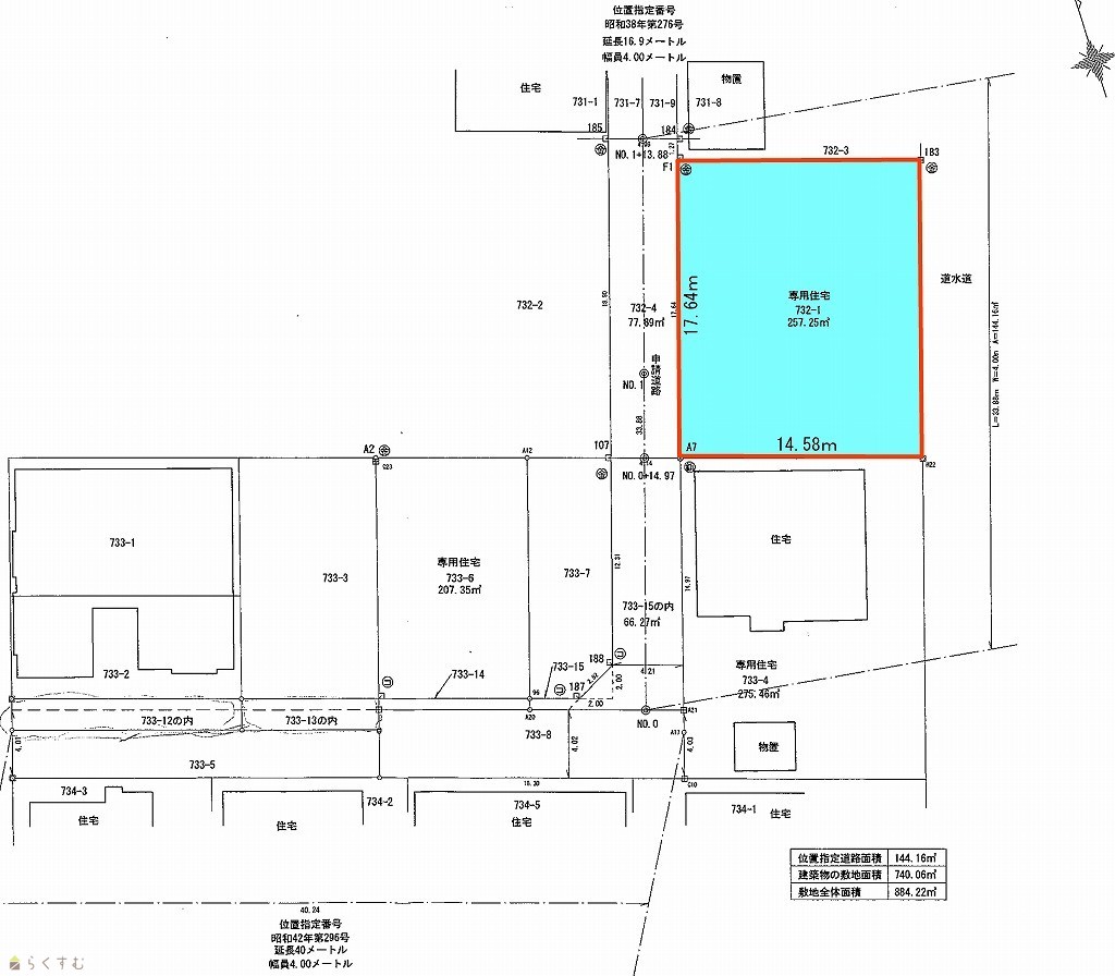
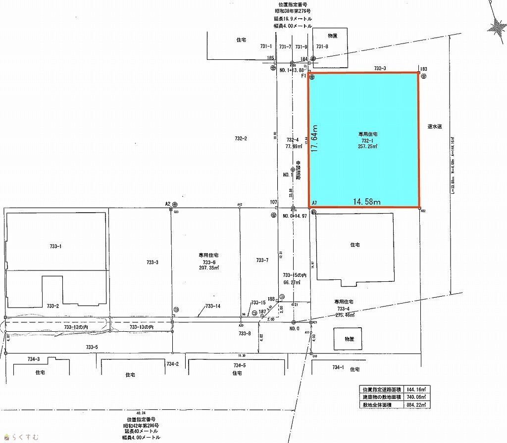
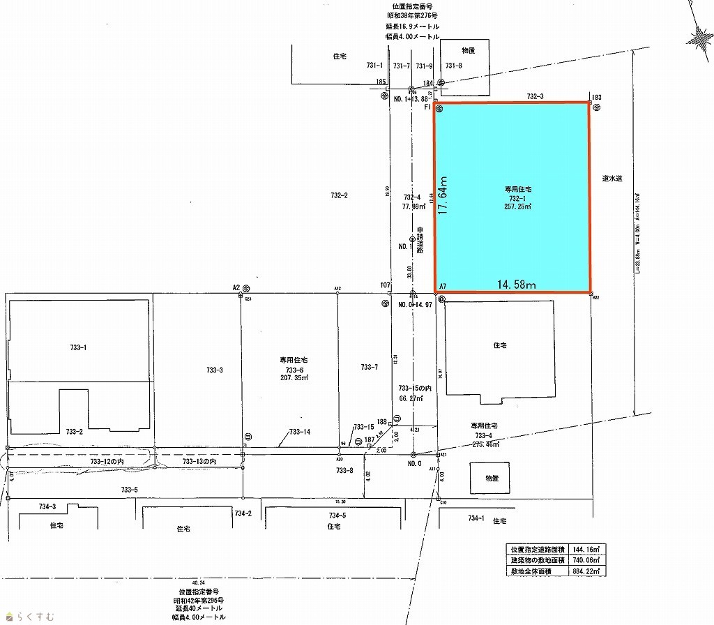
物件所在地 新潟県柏崎市柳橋町732-1
物件種別 売土地・分譲地
物件区分 売土地
構造 - 階建 -
建ぺい率/容積率 60%/200%
建物面積 -
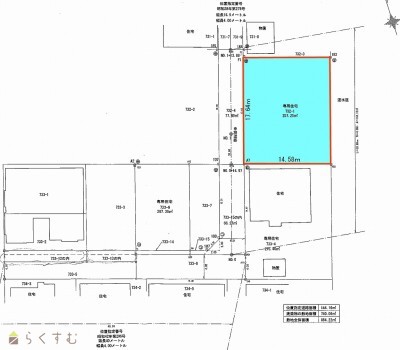
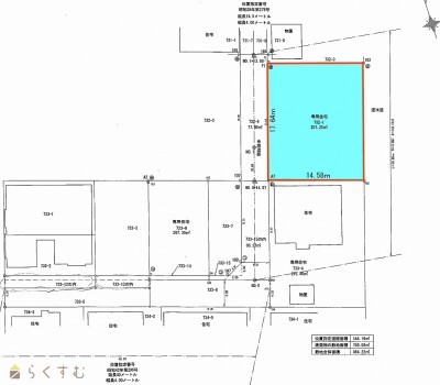
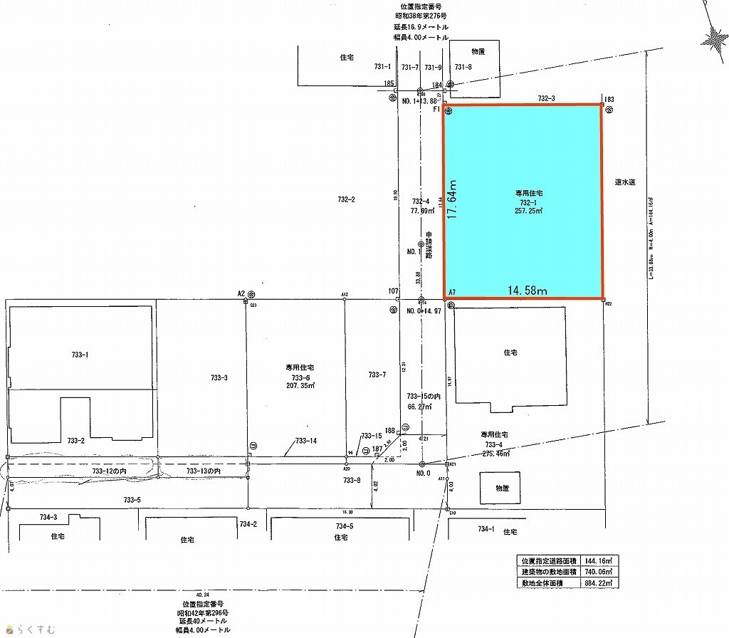
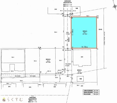
土地面積 257.25㎡ /77.81坪
築年月 -
入居(引き渡し)時期 相談
用途地域 第1種住居地域 地目 宅地  (現状:宅地)
都市計画 非線引き都市計画区域 学校区 枇杷島小学校(217m)・鏡が沖中学校(1,164m)
形状 間口 17.64m × 奥行 14.58m 道路 西側:幅員4m位置指定道路第276号
私道 - その他の制限 -
  • 柳橋町77坪売土地
    株式会社 ai-will
  • この物件を問い合わせる/無料
  • TEL: 0257-35-5370 0257-35-5370

物件詳細情報

所在階/階数 - 号室 -
販売価格 7,781,000円 方位 -
間取り -
専有面積 - バルコニー面積 -
その他面積 - 駐車場 -
管理費 - 修繕積立金 -
現況 更地
仲介手数料 なし
利用制限 -
設備 更地、学校近く、最寄り駅近く、建築条件なし、所有権、側溝、都市ガス(前面道路)、上水道(前面道路)、下水道(前面道路)、都市ガス(宅地内)、上水道(宅地内)、下水道(宅地内)、住宅向け
取引態様 売主
備考 柏崎駅南口まで徒歩約6分☆当社売主につき仲介手数料不要!☆2023.5.24 9,337,200円より値下げしました☆
取り扱い会社

株式会社 ai-will

新潟県柏崎市田中10-31

情報登録日 2023/05/24 次回更新予定日 2026/01/07
取引条件有効期限 2023/06/30
  • 柳橋町77坪売土地
    株式会社 ai-will
  • この物件を問い合わせる/無料
  • TEL: 0257-35-5370 0257-35-5370

この物件の地図・周辺情報・行政情報

この物件の周辺情報・行政情報を詳しく見る
【周辺情報】
物件の近くにあるコンビニや銀行・学校など、アイコン付のマップで詳しく表示できます!
【行政情報】
水道料や下水道料・ガス料金など、暮らしに関係のある情報を表示しています。
セブンイレブン 柏崎穂波町店(コンビニ)まで610m
ウオロク 柏崎店(スーパー)まで740m
五十川内科医院(病院)まで270m
柏崎信用金庫 南支店(銀行)まで440m
柏崎枇杷島郵便局(郵便局)まで490m

※カメラのアイコンがある場合は、マウスをポイントするとその施設の画像がご覧いただけます。


担当取扱い店舗情報

取扱い店舗画像
株式会社 ai-will
TEL: 0257-35-5370
所在地: 新潟県柏崎市田中10-31
交通: 国道8号線よりすぐ
営業時間: 平日9:00~18:00土日祝10:00~16:0/定休日:当社規定 (お盆・年末年始・GW)
免許番号: 新潟県知事(4)4821号
所属団体名: 新潟県宅地建物取引協会 柏崎支部
取引態様: 売主
ホームページ: http://www.ai-will.co.jp/