小学校に近いです。
| 物件名/所在地 | 詳細 | 価格 |
|---|---|---|
| 弥彦村大字山崎中古住宅
新潟県西蒲原郡弥彦村山崎1256-9 |
|
9,500,000円 |
| 物件コード | 00032-200114 | ||
|---|---|---|---|
| 物件名 | 弥彦村大字山崎中古住宅 | ||
| 交通 | 駅:弥彦線 矢作駅から徒歩9分、バス:水道町から徒歩35分 | ||
| 物件所在地 | 新潟県西蒲原郡弥彦村山崎1256-9 | ||
| 物件種別 | 中古一戸建て | ||
| 構造 | 木造 | 階建 | 地上2階建 |
| 建ぺい率/容積率 | 70%/200% | ||
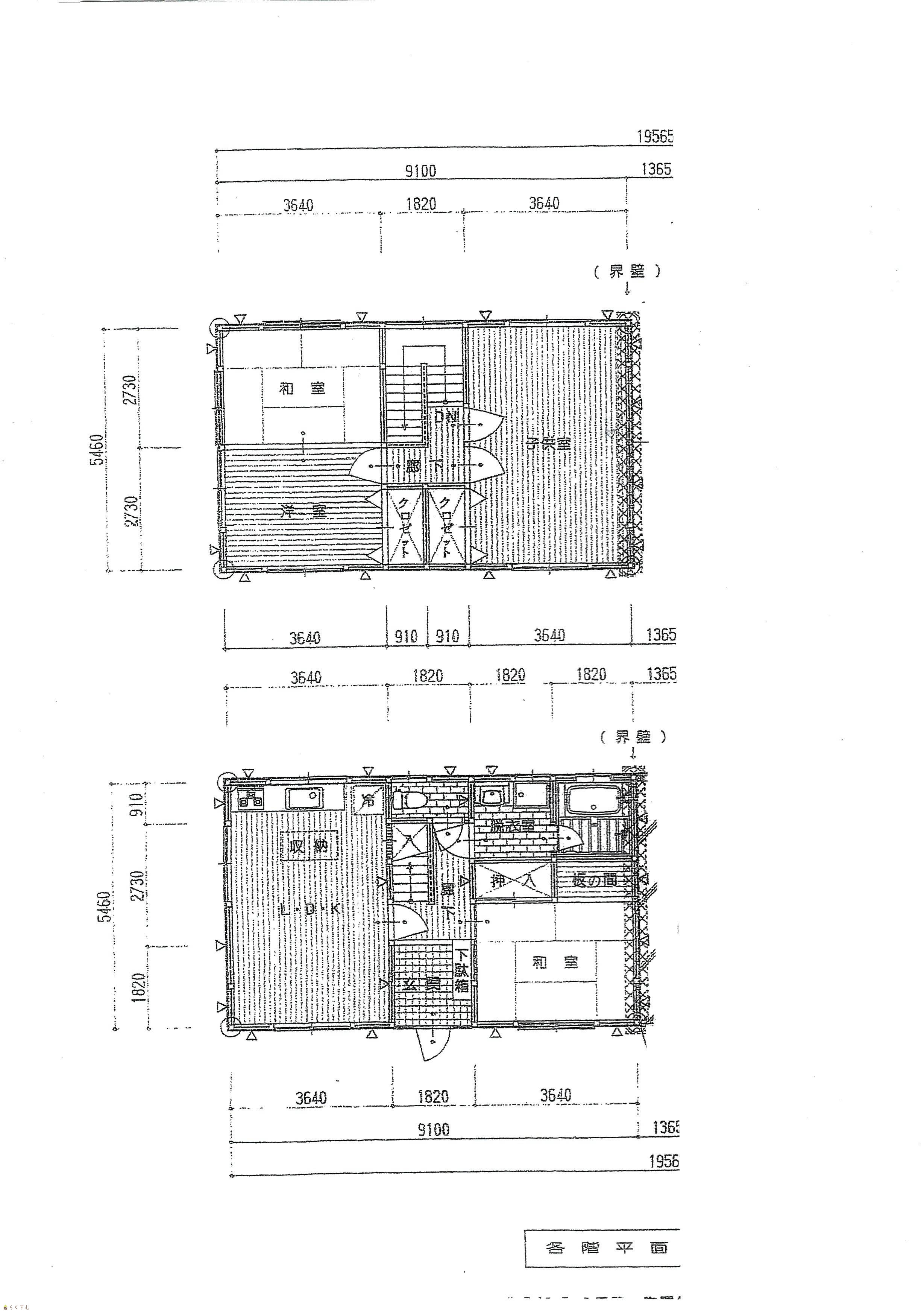
| 建物面積 | 1階 49.68㎡/ 2階 49.68㎡/ 計 99.36㎡ /30.05坪 | ||
| 土地面積 | 157.22㎡ /47.55坪 | ||
| 築年月 | 1999年7月(築26年) | ||
| 入居(引き渡し)時期 | 随時入居(引き渡し)可 | ||
| 用途地域 | 用途の指定のない地域 | 地目 | 宅地 (現状:宅地) |
| 都市計画 | 市街化区域 | 学校区 | 弥彦小学校(227m)・弥彦中学校(721m) |
| 形状 | 間口 2.6m × 奥行 18.5m | 道路 | 私道 |
| 私道 | 接道は私道(位置指定道路)の為所有権(1/2)を取得します。 | その他の制限 | - |
| 所在階/階数 | - | 号室 | - |
|---|---|---|---|
| 販売価格 | 9,500,000円 | 方位 | 南西 |
| 間取り |
4LDK (和室:6畳、6畳) (洋室:6、12) 12 |
||
| 専有面積 | - | バルコニー面積 | - |
| その他面積 | - | 駐車場 | - |
| 管理費 | - | 修繕積立金 | - |
| 現況 | 空家 | ||
| 仲介手数料 | 379,500円 | ||
| 利用制限 | - | ||
| 設備 | 日当り良好、閑静な住宅街、駐車3台以上可能、ガスコンロ設置可能、追いだき機能付き、温水洗浄便座、シャワー付き洗面台、エアコンあり、都市ガス、上水道、下水道、床下収納、シューズBOX、内装リフォーム済み、即引き渡し可能 | ||
| 取引態様 | 一般 | ||
| 備考 | 旗竿地ですので縦列駐車となります。 | ||
| 取り扱い会社 |
青旺不動産 株式会社 新潟県長岡市関原町1-5335 |
||
| 情報登録日 | 2025/04/28 | 次回更新予定日 | 2025/11/19 |
| 取引条件有効期限 | 2025/07/25 | ||
|
JA新潟かがやき 弥彦支店(銀行)まで660m |
※カメラのアイコンがある場合は、マウスをポイントするとその施設の画像がご覧いただけます。
| TEL: | 0258-47-8113 | |
|---|---|---|
| 所在地: | 新潟県長岡市関原町1-5335 | |
| 交通: | ||
| 営業時間: | 9:00~18:00/定休日:日曜・祭日 | |
| 免許番号: | 新潟県知事(4)4890号 | |
| 所属団体名: | 公益社団法人 全日本不動産協会 | |
| 取引態様: | 一般 | |
| ホームページ: | http://www.seiou-re.co.jp | |