新潟県長岡市宝2丁目2-30、2-31 中古一戸建て 4DK 26,000,000円の物件情報

土地173坪、建物57坪の物件。付属建物(小屋)あり。

物件名/所在地 詳細 価格
宝2丁目 売家
新潟県長岡市宝2丁目2-30、2-31
  • 土地面積
    :574㎡ /173.63坪
  • 建物面積
    :189.25㎡ /57.24坪
  • 間取り
    :4DK
  • 築年月
    :1977年7月
26,000,000
  • 宝2丁目 売家
    越路建設 株式会社
  • この物件を問い合わせる/無料
  • TEL: 0258-34-3433 0258-34-3433

物件画像

外観
間取り
物件画像
※画像クリックで拡大表示
外観写真
物件画像
※画像クリックで拡大表示
1階平面図
詳細画像
物件画像
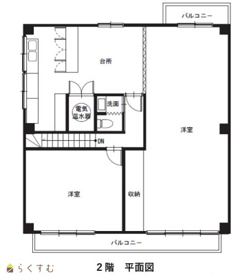
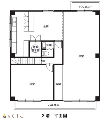
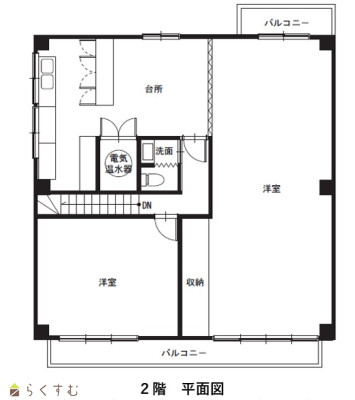
2階平面図
物件画像
建物裏側
物件画像
玄関ドア
物件画像
玄関
物件画像
1階 和室
物件画像
1階 脱衣室
物件画像
1階 浴室
物件画像
1階 台所
物件画像
1階 トイレ
物件画像
階段
物件画像
2階 ダイニング
物件画像
2階 キッチン
物件画像
2階 洗面・トイレ
物件画像
2階 居間
物件画像
2階 洋室
物件画像
インナーガレージ
物件画像
住宅裏の小屋
物件画像
地図


物件概要

ひらせい北長岡店まで徒歩13分。長岡信用金庫宝支店まで徒歩3分。
物件コード 00023-200127
物件名 宝2丁目 売家
交通 駅:信越線 北長岡駅から徒歩32分、バス:宝1丁目から徒歩2分
物件所在地 新潟県長岡市宝2丁目2-30、2-31
物件種別 中古一戸建て
構造 鉄筋コン 階建 地上2階建
建ぺい率/容積率 60%/200%
建物面積 1階 92.22㎡/ 2階 97.03㎡/ 計 189.25㎡ /57.24坪
土地面積 574㎡ /173.63坪
築年月 1977年7月(築48年)
入居(引き渡し)時期 相談
用途地域 準工業地域 地目 宅地  (現状:宅地)
都市計画 市街化区域 学校区 黒条小学校(1,833m)・堤岡中学校(1,820m)
形状 間口 21.13m × 奥行 27.27m 道路 前面道路 長岡市道 東幹線69号
私道 - その他の制限 大規模集客施設制限地区
  • 宝2丁目 売家
    越路建設 株式会社
  • この物件を問い合わせる/無料
  • TEL: 0258-34-3433 0258-34-3433

物件詳細情報

所在階/階数 - 号室 -
販売価格 26,000,000円 方位
間取り 4DK (和室:6畳、9.5畳) (洋室:10、24)
専有面積 - バルコニー面積 -
その他面積 - 駐車場 -
管理費 - 修繕積立金 -
現況 空家
仲介手数料 924,000円
利用制限 -
設備 日当り良好、駐車3台以上可能、追いだき機能付き、バス1坪以上、温水洗浄便座、トイレ2か所以上、エアコンあり、都市ガス、上水道、下水道、2世帯向き、別荘、田舎暮らし、事業向け
取引態様 専属専任
備考 ●給水引き込みあり(Φ20mm)●都市ガス引き込みあり(Φ30mm)●下水引き込みあり(公共桝設置)●敷地内電柱あり●前面道路幅員18m●裏に小屋あります●隣の敷地も含みます
取り扱い会社

越路建設 株式会社

新潟県長岡市新町1-3-30

情報登録日 2024/10/24 次回更新予定日 2026/02/16
取引条件有効期限 2024/06/30
  • 宝2丁目 売家
    越路建設 株式会社
  • この物件を問い合わせる/無料
  • TEL: 0258-34-3433 0258-34-3433

この物件の地図・周辺情報・行政情報

この物件の周辺情報・行政情報を詳しく見る
【周辺情報】
物件の近くにあるコンビニや銀行・学校など、アイコン付のマップで詳しく表示できます!
【行政情報】
水道料や下水道料・ガス料金など、暮らしに関係のある情報を表示しています。

担当取扱い店舗情報

取扱い店舗画像
越路建設 株式会社
TEL: 0258-34-3433
所在地: 新潟県長岡市新町1-3-30
交通: 新町1丁目バス停徒歩1分(ファミリーマート向かい)
営業時間: 8:30~17:30/定休日:土曜・日曜・祭日
免許番号: 新潟県知事(6)4072号
所属団体名: 新潟県宅地建物取引業協会 長岡支部
取引態様: 専属専任
ホームページ: http://www.koshiken.com/