新潟県長岡市宮内1丁目10-25 中古一戸建て 3LDK 17,500,000円の物件情報

宮内1丁目のリノベーション物件です♪近隣駐車場も紹介可能です♪価格改定しました。

物件名/所在地 詳細 価格
宮内1丁目リノベーション物件♪近隣駐車場も紹介可能♪価
新潟県長岡市宮内1丁目10-25
  • 土地面積
    :113.96㎡ /34.47坪
  • 建物面積
    :106.27㎡ /32.14坪
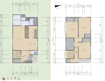
  • 間取り
    :3LDK
  • 築年月
    :1986年7月
17,500,000
  • 宮内1丁目リノベーション物件♪近隣駐車場も紹介可能♪価
    有限会社 ABCホーム
  • この物件を問い合わせる/無料
  • TEL: 0258-35-6682 0258-35-6682

物件画像

外観
間取り
物件画像
※画像クリックで拡大表示
外観
物件画像
※画像クリックで拡大表示
間取り
詳細画像
物件画像
玄関
物件画像
玄関
物件画像
LDK
物件画像
LDK
物件画像
キッチン
物件画像
キッチン
物件画像
お風呂
物件画像
脱衣所
物件画像
ランドリールーム
物件画像
洋室
物件画像
洋室
物件画像
洋室
物件画像
道路
物件画像
地図画像


物件概要

宮内1丁目のリノベーション物件です♪近隣駐車場も紹介可能です♪価格改定しました。
物件コード 00017-200304
物件名 宮内1丁目リノベーション物件♪近隣駐車場も紹介可能♪価
交通 駅:信越線 宮内駅から徒歩6分
物件所在地 新潟県長岡市宮内1丁目10-25
物件種別 中古一戸建て
構造 木造 階建 地上2階建
建ぺい率/容積率 60%/200%
建物面積 1階 54.1㎡/ 2階 52.17㎡/ 計 106.27㎡ /32.14坪
土地面積 113.96㎡ /34.47坪
築年月 1986年7月(築39年)
入居(引き渡し)時期 随時入居(引き渡し)可
用途地域 第1種住居地域 地目 宅地  (現状:宅地)
都市計画 市街化区域 学校区 上組小学校(1,102m)・宮内中学校(488m)
形状 間口 7m × 奥行 16.6m 道路 建築基準法第43条第2項2号(但し書き道路)
私道 建築基準法第43条第2項2号(但し書き道路) その他の制限 第3種高度地区、建築基準法第22条地域
  • 宮内1丁目リノベーション物件♪近隣駐車場も紹介可能♪価
    有限会社 ABCホーム
  • この物件を問い合わせる/無料
  • TEL: 0258-35-6682 0258-35-6682

物件詳細情報

所在階/階数 - 号室 -
販売価格 17,500,000円 方位 指定なし
間取り 3LDK (洋室:6、6、6)
LDK18
専有面積 - バルコニー面積 -
その他面積 - 駐車場 -
管理費 - 修繕積立金 -
現況 空家
仲介手数料 643,500円
利用制限 -
設備 角地、閑静な住宅街、LDK15帖以上、全室フローリング、駐車2台可能、複層ガラス、デインプルキー、システムキッチン、カウンターキッチン、追いだき機能付き、バス1坪以上、温水洗浄便座、都市ガス、上水道、下水道、内装リフォーム済み、外装リフォーム済み、リノベーション物件、即引き渡し可能
取引態様 一般
備考 私道公衆用道路部分14㎡は無償でお引渡し致します。
取り扱い会社

有限会社 ABCホーム

新潟県長岡市曙1-1-7

情報登録日 2025/09/29 次回更新予定日 2026/05/22
取引条件有効期限 2024/08/31
  • 宮内1丁目リノベーション物件♪近隣駐車場も紹介可能♪価
    有限会社 ABCホーム
  • この物件を問い合わせる/無料
  • TEL: 0258-35-6682 0258-35-6682

この物件の地図・周辺情報・行政情報

この物件の周辺情報・行政情報を詳しく見る
【周辺情報】
物件の近くにあるコンビニや銀行・学校など、アイコン付のマップで詳しく表示できます!
【行政情報】
水道料や下水道料・ガス料金など、暮らしに関係のある情報を表示しています。

担当取扱い店舗情報

取扱い店舗画像
有限会社 ABCホーム
TEL: 0258-35-6682
所在地: 新潟県長岡市曙1-1-7
交通:
営業時間: 9:00~18:00/定休日:
免許番号: 新潟県知事(4)4781号
所属団体名: 新潟県宅地建物取引業協会 長岡支部
取引態様: 一般
ホームページ: http://abc-home.d.dooo.jp/