新潟県長岡市宮栄1丁目15-8 中古一戸建て 5DK 5,300,000円の物件情報

物件名/所在地 詳細 価格
売家 宮栄1丁目
新潟県長岡市宮栄1丁目15-8
  • 土地面積
    :158㎡ /47.79坪
  • 建物面積
    :125.87㎡ /38.07坪
  • 間取り
    :5DK
  • 築年月
    :1972年1月
5,300,000
  • 売家 宮栄1丁目
    株式会社 金井不動産
  • この物件を問い合わせる/無料
  • TEL: 0120-35-3901 0120-35-3901

物件画像

外観
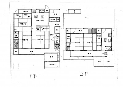
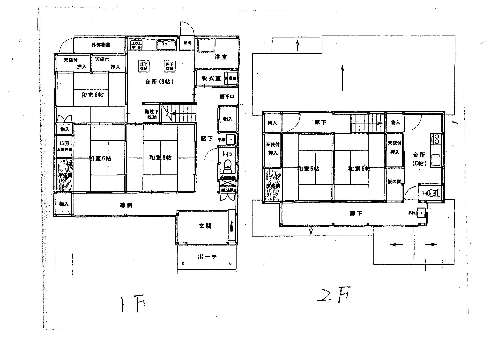
間取り
物件画像
※画像クリックで拡大表示
外観
物件画像
※画像クリックで拡大表示
詳細画像
物件画像
物件画像
物件画像
物件画像
物件画像
物件画像
物件画像
物件画像
物件画像
物件画像
物件画像
物件画像
物件画像
物件画像
物件画像
流しあと
物件画像
2Fトイレ
物件画像
2F東側景色
物件画像
2F西側景色
物件画像
駐車スペース用地


物件概要

物件コード 00014-200022
物件名 売家 宮栄1丁目
交通 駅:平島バス停徒歩6分・宮内駅徒歩11分、バス:平島から徒歩2分
物件所在地 新潟県長岡市宮栄1丁目15-8
物件種別 中古一戸建て
構造 木造 階建 地上2階建
建ぺい率/容積率 60%/200%
建物面積 1階 81.81㎡/ 2階 44.06㎡/ 計 125.87㎡ /38.07坪
土地面積 158㎡ /47.79坪
築年月 1972年1月(築54年)
入居(引き渡し)時期 相談
用途地域 第1種住居地域 地目
都市計画 - 学校区 宮内小学校・宮内中学校
形状 - 道路 -
私道 幅員4m その他の制限
  • 売家 宮栄1丁目
    株式会社 金井不動産
  • この物件を問い合わせる/無料
  • TEL: 0120-35-3901 0120-35-3901

物件詳細情報

所在階/階数 - 号室 -
販売価格 5,300,000円 方位
間取り 5DK (和室:8畳、6畳、6畳、6畳、6畳)
DK8
専有面積 - バルコニー面積 -
その他面積 - 駐車場 -
管理費 - 修繕積立金 -
現況 空家
仲介手数料 なし
利用制限 -
設備 都市ガス/公営水道/電気
取引態様 一般
備考 -
取り扱い会社

株式会社 金井不動産

新潟県長岡市要町3-1-26

情報登録日 2012/11/26 次回更新予定日 2026/05/22
取引条件有効期限 -
  • 売家 宮栄1丁目
    株式会社 金井不動産
  • この物件を問い合わせる/無料
  • TEL: 0120-35-3901 0120-35-3901

この物件の地図・周辺情報・行政情報

この物件の周辺情報・行政情報を詳しく見る
【周辺情報】
物件の近くにあるコンビニや銀行・学校など、アイコン付のマップで詳しく表示できます!
【行政情報】
水道料や下水道料・ガス料金など、暮らしに関係のある情報を表示しています。

担当取扱い店舗情報

取扱い店舗画像
株式会社 金井不動産
TEL: 0120-35-3901
所在地: 新潟県長岡市要町3-1-26
交通: 長岡駅大手口①バス乗場より乗車~溝橋下車徒歩約4分
営業時間: 9:30~18:00/定休日:日曜・祝祭日
免許番号: 新潟県知事(16)第495号
所属団体名: 新潟県宅地建物取引業協会 長岡支部
取引態様: 一般
ホームページ: http://www.3901.com