長岡市四郎丸3丁目1-1 中古一戸建て 3R 12,800,000円の物件情報

≪四郎丸小学区≫中央図書館近く、長岡駅まで徒歩12分

物件名/所在地 詳細 価格
店舗ビル 『四郎丸3丁目ビル』
長岡市四郎丸3丁目1-1
  • 土地面積
    :59.8㎡ /18.08坪
  • 建物面積
    :118.5㎡ /35.84坪
  • 間取り
    :3R
  • 築年月
    :1985年3月
12,800,000
  • 店舗ビル 『四郎丸3丁目ビル』
    ㈱スタッフサイトウ不動産部
  • この物件を問い合わせる/無料
  • TEL: 0258-24-0623 0258-24-0623

物件画像

外観
間取り
物件画像
※画像クリックで拡大表示
外観
物件画像
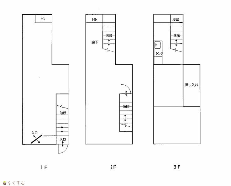
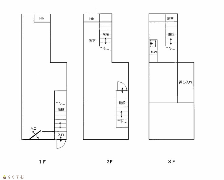
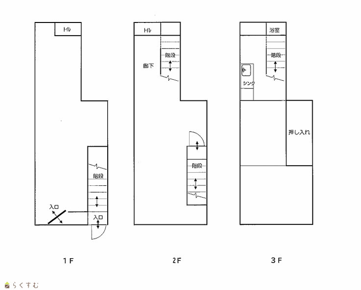
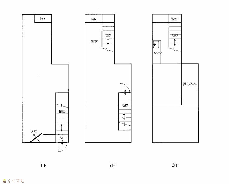
※画像クリックで拡大表示
間取り
詳細画像
物件画像
内装
物件画像
2階への階段
物件画像
2階
物件画像
通路
物件画像
トイレ
物件画像
3階への階段
物件画像
和室
物件画像
和室
物件画像
バスルーム
物件画像
設備
物件画像
3階
物件画像
屋上への階段
物件画像
屋上
物件画像
入口
物件画像
印刷用地図


物件概要

外装、内装リフォーム済です!
物件コード 00011-200335
物件名 店舗ビル 『四郎丸3丁目ビル』
交通 駅:信越線 長岡駅から徒歩12分、バス:学校町1丁目から徒歩1分
物件所在地 長岡市四郎丸3丁目1-1
物件種別 中古一戸建て
構造 鉄骨 階建 地上3階建
建ぺい率/容積率 60%/200%
建物面積 1階 39.5㎡/ 2階 39.5㎡/ 3階 39.5㎡/ 計 118.5㎡ /35.84坪
土地面積 59.8㎡ /18.08坪
築年月 1985年3月(築41年)
入居(引き渡し)時期 相談
用途地域 第1種住居地域 地目 宅地
都市計画 市街化区域 学校区 四郎丸小学校(268m)・南中学校(960m)
形状 - 道路 国道352号
私道 - その他の制限 -
  • 店舗ビル 『四郎丸3丁目ビル』
    ㈱スタッフサイトウ不動産部
  • この物件を問い合わせる/無料
  • TEL: 0258-24-0623 0258-24-0623

物件詳細情報

所在階/階数 - 号室 -
販売価格 12,800,000円 方位 -
間取り 3R
専有面積 - バルコニー面積 -
その他面積 - 駐車場 -
管理費 - 修繕積立金 -
現況 空家
仲介手数料 488,400円
利用制限 -
設備 トイレ2か所以上、エアコンあり、都市ガス、上水道、下水道、内装リフォーム済み、外装リフォーム済み、事業向け
取引態様 一般
備考 駐車場はありません
取り扱い会社

㈱スタッフサイトウ不動産部

新潟県長岡市蔵王2丁目4番17号

情報登録日 2025/09/01 次回更新予定日 2026/04/03
取引条件有効期限 2026/03/31
  • 店舗ビル 『四郎丸3丁目ビル』
    ㈱スタッフサイトウ不動産部
  • この物件を問い合わせる/無料
  • TEL: 0258-24-0623 0258-24-0623

この物件の地図・周辺情報・行政情報

この物件の周辺情報・行政情報を詳しく見る
【周辺情報】
物件の近くにあるコンビニや銀行・学校など、アイコン付のマップで詳しく表示できます!
【行政情報】
水道料や下水道料・ガス料金など、暮らしに関係のある情報を表示しています。

担当取扱い店舗情報

取扱い店舗画像
㈱スタッフサイトウ不動産部
TEL: 0258-24-0623
所在地: 新潟県長岡市蔵王2丁目4番17号
交通: JR北長岡駅
営業時間: 8:30~17:30/定休日:第2・4土曜・日曜・祭日
免許番号: 新潟県知事(2)第5364号
所属団体名: 新潟県宅地建物取引業協会 長岡支部
取引態様: 一般
ホームページ: http://hokuetsu-fudousan.com