長岡市草生津3丁目4-13 中古一戸建て 2LDK 42,000,000円の物件情報

物件名/所在地 詳細 価格
草生津3丁目 『倉庫・事務所』
長岡市草生津3丁目4-13
  • 土地面積
    :615.16㎡ /186.08坪
  • 建物面積
    :615.16㎡ /186.08坪
  • 間取り
    :2LDK
  • 築年月
    :1969年7月
42,000,000
  • 草生津3丁目 『倉庫・事務所』
    ㈱スタッフサイトウ不動産部
  • この物件を問い合わせる/無料
  • TEL: 0258-24-0623 0258-24-0623

物件画像

外観
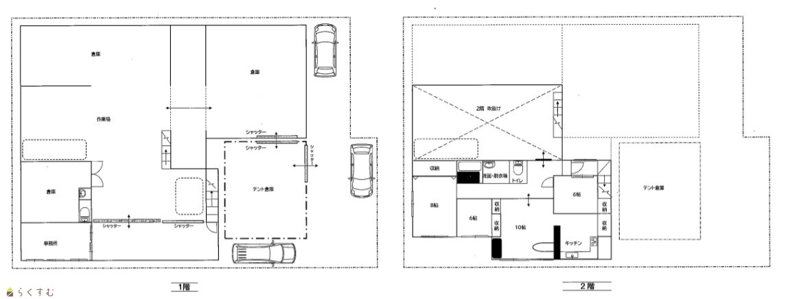
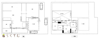
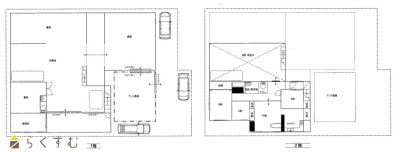
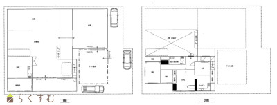
間取り
物件画像
※画像クリックで拡大表示
外観
物件画像
※画像クリックで拡大表示
間取り
詳細画像
物件画像
テント倉庫
物件画像
地図画像


物件概要

物件コード 00011-200322
物件名 草生津3丁目 『倉庫・事務所』
交通 駅:上越新幹線 長岡駅から徒歩20分、バス:長生橋東詰から徒歩2分
物件所在地 長岡市草生津3丁目4-13
物件種別 中古一戸建て
構造 鉄筋コン 階建 地上2階建
建ぺい率/容積率 60%/200%
建物面積 1階 433.89㎡/ 2階 181.27㎡/ 計 615.16㎡ /186.08坪
土地面積 615.16㎡ /186.08坪
築年月 1969年7月(築56年)
入居(引き渡し)時期 相談
用途地域 第1種住居地域 地目 宅地  (現状:宅地)
都市計画 市街化区域 学校区 千手小学校(416m)・南中学校(799m)
形状 - 道路 -
私道 - その他の制限 -
  • 草生津3丁目 『倉庫・事務所』
    ㈱スタッフサイトウ不動産部
  • この物件を問い合わせる/無料
  • TEL: 0258-24-0623 0258-24-0623

物件詳細情報

所在階/階数 - 号室 -
販売価格 42,000,000円 方位 -
間取り 2LDK
専有面積 - バルコニー面積 -
その他面積 - 駐車場 -
管理費 - 修繕積立金 -
現況 空家
仲介手数料 1,452,000円
利用制限 -
設備 -
取引態様 一般
備考 -
取り扱い会社

㈱スタッフサイトウ不動産部

新潟県長岡市蔵王2丁目4番17号

情報登録日 2025/10/27 次回更新予定日 2026/05/22
取引条件有効期限 2026/03/31
  • 草生津3丁目 『倉庫・事務所』
    ㈱スタッフサイトウ不動産部
  • この物件を問い合わせる/無料
  • TEL: 0258-24-0623 0258-24-0623

この物件の地図・周辺情報・行政情報

この物件の周辺情報・行政情報を詳しく見る
【周辺情報】
物件の近くにあるコンビニや銀行・学校など、アイコン付のマップで詳しく表示できます!
【行政情報】
水道料や下水道料・ガス料金など、暮らしに関係のある情報を表示しています。

担当取扱い店舗情報

取扱い店舗画像
㈱スタッフサイトウ不動産部
TEL: 0258-24-0623
所在地: 新潟県長岡市蔵王2丁目4番17号
交通: JR北長岡駅
営業時間: 8:30~17:30/定休日:第2・4土曜・日曜・祭日
免許番号: 新潟県知事(2)第5364号
所属団体名: 新潟県宅地建物取引業協会 長岡支部
取引態様: 一般
ホームページ: http://hokuetsu-fudousan.com