新潟県長岡市寿1丁目2-51 投資物件・その他 150,000,000円の物件情報

2.8t 2基クレーン付きです。建物W16.6m*D44m

物件名/所在地 詳細 価格
表面利回り
投資目算可能(現在年間1000万稼動) 年6%
新潟県長岡市寿1丁目2-51
  • 土地面積
    :1,658.5㎡ /501.69坪
  • 建ぺい率
    :60%
  • 容積率
    :200%
150,000,000
6%
(満室想定時)
  • 投資目算可能(現在年間1000万稼動) 年6%
    ㈱スタッフサイトウ不動産部
  • この物件を問い合わせる/無料
  • TEL: 0258-24-0623 0258-24-0623

物件画像

外観
間取り
物件画像
※画像クリックで拡大表示
外観
物件画像
※画像クリックで拡大表示
間取り
詳細画像
物件画像
地図画像


物件概要

只今賃貸中です。
物件コード 00011-200226
物件名 投資目算可能(現在年間1000万稼動) 年6%
交通 駅:信越線 北長岡駅から徒歩25分、バス:北中学校前から徒歩5分
物件所在地 新潟県長岡市寿1丁目2-51
物件種別 投資物件・その他
物件区分 1棟売りマンション・アパート
構造 鉄骨 階建 地上1階建
建ぺい率/容積率 60%/200%
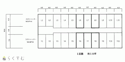
建物面積 1階 708.16㎡/ 計 708.16㎡ /214.21坪
土地面積 1,658.5㎡ /501.69坪
築年月 1986年3月(築40年)
入居(引き渡し)時期 相談
用途地域 準工業地域 地目 宅地  (現状:宅地)
都市計画 市街化区域 学校区 新町小学校(1,114m)・北中学校(384m)
形状 間口 20m 道路 長岡286号
私道 - その他の制限 -
  • 投資目算可能(現在年間1000万稼動) 年6%
    ㈱スタッフサイトウ不動産部
  • この物件を問い合わせる/無料
  • TEL: 0258-24-0623 0258-24-0623

物件詳細情報

所在階/階数 1階/1階 号室 -
販売価格 150,000,000円 方位 -
表面利回り(満室想定時) 6% 満室想定年収 - (想定月収: - )
現行利回り - 現行年間年収 -
住戸数 22
間取り -
専有面積 708.16㎡ /214.21坪 ~ 708.16㎡ /214.21坪 バルコニー面積 -
その他面積 - 駐車場 -
管理費 - 修繕積立金 -
現況 賃貸中
仲介手数料 5,016,000円
利用制限 -
設備 事業向け
取引態様 一般
備考 2.8t2基クレーン付きです。建物W16.6m*D44m
取り扱い会社

㈱スタッフサイトウ不動産部

新潟県長岡市蔵王2丁目4番17号

情報登録日 2025/11/18 次回更新予定日 2026/04/03
取引条件有効期限 2026/09/30
  • 投資目算可能(現在年間1000万稼動) 年6%
    ㈱スタッフサイトウ不動産部
  • この物件を問い合わせる/無料
  • TEL: 0258-24-0623 0258-24-0623

この物件の地図・周辺情報・行政情報

この物件の周辺情報・行政情報を詳しく見る
【周辺情報】
物件の近くにあるコンビニや銀行・学校など、アイコン付のマップで詳しく表示できます!
【行政情報】
水道料や下水道料・ガス料金など、暮らしに関係のある情報を表示しています。
セブン-イレブン 長岡北中学校前店(コンビニ)まで490m
新潟県立精神医療センター(病院)まで640m
新潟県病院同仁会(病院)まで880m

※カメラのアイコンがある場合は、マウスをポイントするとその施設の画像がご覧いただけます。


担当取扱い店舗情報

取扱い店舗画像
㈱スタッフサイトウ不動産部
TEL: 0258-24-0623
所在地: 新潟県長岡市蔵王2丁目4番17号
交通: JR北長岡駅
営業時間: 8:30~17:30/定休日:第2・4土曜・日曜・祭日
免許番号: 新潟県知事(2)第5364号
所属団体名: 新潟県宅地建物取引業協会 長岡支部
取引態様: 一般
ホームページ: http://hokuetsu-fudousan.com