小千谷市三仏生4004-1 外7筆 中古一戸建て 1LDK 15,500,000円の物件情報

古民家風の丸太梁の現しで、天然素材の温かさ、力強い和の雰囲気!

物件名/所在地 詳細 価格
小千谷市三仏生 【中古一戸建て】 
小千谷市三仏生4004-1 外7筆
  • 土地面積
    :1,412.15㎡ /427.17坪
  • 建物面積
    :121.37㎡ /36.71坪
  • 間取り
    :1LDK
  • 築年月
    :2007年6月
15,500,000
  • 小千谷市三仏生 【中古一戸建て】 
    株式会社 島岡不動産企画
  • この物件を問い合わせる/無料
  • TEL: 0258-39-6030 0258-39-6030

物件画像

外観
間取り
物件画像
※画像クリックで拡大表示
全景(建物西側・玄関)
物件画像
※画像クリックで拡大表示
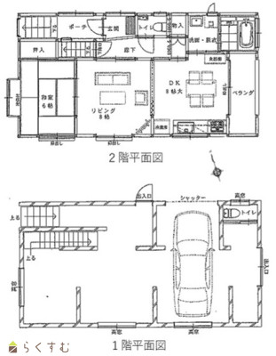
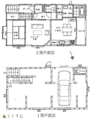
平面図(1階基礎・物置、2階居宅)
詳細画像
物件画像
全景(樹木、居宅、鉄骨倉庫)
物件画像
建物南側
物件画像
外階段・玄関
物件画像
DK8帖
物件画像
リビング8帖
物件画像
LDK天井(丸太梁の現し)
物件画像
和室6帖
物件画像
浴室
物件画像
トイレ
物件画像
1階基礎(車庫)
物件画像
1階基礎(物置)
物件画像
1階基礎(トイレ)
物件画像
かまぼこ型倉庫(鉄骨二階建て)
物件画像
敷地裏からの全景
物件画像
敷地東側(空地・畑)
物件画像
前面道路(県道・消雪道路)
物件画像
敷地全体と建物配置図(概略)
物件画像
印刷用地図


物件概要

広々敷地でライフスタイルに合わせた増築や家庭菜園をお楽しみください。別荘・田舎暮らしにお薦めです!
物件コード 00008-200268
物件名 小千谷市三仏生 【中古一戸建て】 
交通 バス:三仏生中央から徒歩1分
物件所在地 小千谷市三仏生4004-1 外7筆
物件種別 中古一戸建て
構造 木造 階建 地上2階建
建ぺい率/容積率 70%/200%
建物面積 1階 65.43㎡/ 2階 55.94㎡/ 計 121.37㎡ /36.71坪
土地面積 1,412.15㎡ /427.17坪
築年月 2007年6月(築18年)
入居(引き渡し)時期 相談
用途地域 無指定 地目 宅地・畑  (現状:宅地・畑)
都市計画 非線引き都市計画区域 学校区 和泉小学校(924m)・千田中学校(1,718m)
形状 間口 17.73m × 奥行 55m 道路 西側県道三仏生片貝線8m(消雪道路)
私道 - その他の制限 ■一部農地有り(農地法第3条許可必要)■一部地上権設定登記有り(農林水産省によるトンネル水路敷設)
  • 小千谷市三仏生 【中古一戸建て】 
    株式会社 島岡不動産企画
  • この物件を問い合わせる/無料
  • TEL: 0258-39-6030 0258-39-6030

物件詳細情報

所在階/階数 - 号室 -
販売価格 15,500,000円 方位 西
間取り 1LDK (和室:6畳)
LDK16
専有面積 - バルコニー面積 -
その他面積 5.37㎡ /1.62坪  ベランダ 駐車場 -
管理費 - 修繕積立金 -
現況 居住中
仲介手数料 577,500円
利用制限 -
設備 日当り良好、閑静な住宅街、LDK15帖以上、駐車2台可能、南向き、複層ガラス、システムキッチン、3口コンロ、追いだき機能付き、バス1坪以上、温水洗浄便座、トイレ2か所以上、エアコンあり、都市ガス、上水道、下水道、バリアフリー、シューズBOX、田舎暮らし
取引態様 一般
備考 ■LDKは構造材の丸太梁の現しで、内装の一部としてインパクトがあり、天然素材の温かさ、古民家風の力強い和の雰囲気が感じられます。
■今までが「別宅」としての利用で、内装・設備がとても綺麗です。
■1階基礎部分にはトイレも有り、子供部屋や趣味の部屋としても転用可能です。          
■令和7年10月屋根・外壁の塗替工事済みです。        
★★内見ご希望の際は、予めご連絡をお願いいたします★★
取り扱い会社

株式会社 島岡不動産企画

新潟県長岡市西新町1-8-11

情報登録日 2025/11/27 次回更新予定日 2026/05/22
取引条件有効期限 2026/03/31
  • 小千谷市三仏生 【中古一戸建て】 
    株式会社 島岡不動産企画
  • この物件を問い合わせる/無料
  • TEL: 0258-39-6030 0258-39-6030

この物件の地図・周辺情報・行政情報

この物件の周辺情報・行政情報を詳しく見る
【周辺情報】
物件の近くにあるコンビニや銀行・学校など、アイコン付のマップで詳しく表示できます!
【行政情報】
水道料や下水道料・ガス料金など、暮らしに関係のある情報を表示しています。
三仏生郵便局(郵便局)まで360m
チャレンジャー小千谷店(スーパー)まで2800m
ベイシア小千谷店(スーパー)まで1200m
原信西小千谷店(スーパー)まで3700m
JA厚生連 小千谷綜合病院(病院)まで3800m
小千谷市役所(市区町村機関)まで3900m

※カメラのアイコンがある場合は、マウスをポイントするとその施設の画像がご覧いただけます。


担当取扱い店舗情報

取扱い店舗画像
株式会社 島岡不動産企画
TEL: 0258-39-6030
所在地: 新潟県長岡市西新町1-8-11
交通: 「新町小学校前」バス停徒歩1分
営業時間: 9:00~18:30/定休日:日曜・祭日
免許番号: 新潟県知事(4)4829号
所属団体名: 公益社団法人 新潟県宅地建物取引業協会
取引態様: 一般
ホームページ: http://www.shimaoka.co.jp