新潟県長岡市新保4丁目1446番14 新築一戸建て 3LDK 29,800,000円の物件情報

スーパー等徒歩圏内♪◆駐車3台並列可◆「乾太くん」設置◆1階2階にウォークインクローゼット完備!

物件名/所在地 詳細 価格
長岡市新保4丁目 建売住宅
新潟県長岡市新保4丁目1446番14
  • 土地面積
    :181.92㎡ /55.03坪
  • 建物面積
    :92.54㎡ /27.99坪
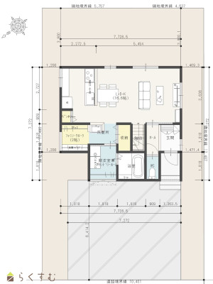
  • 間取り
    :3LDK
  • 築年月
    :2026年7月
29,800,000
  • 長岡市新保4丁目 建売住宅
    有限会社 一代工務店
  • この物件を問い合わせる/無料
  • TEL: 0258-34-2221 0258-34-2221

物件画像

外観
間取り
物件画像
※画像クリックで拡大表示
※画像はイメージとなり実物と異なる場合があります。
物件画像
※画像クリックで拡大表示
地型付間取り図
詳細画像
物件画像
1階
物件画像
2階
物件画像
前面道路は幅8mでゆとりがあります。消雪パイプもあり♪
物件画像
印刷用地図


物件概要

<令和8年7月完成予定>●スーパーやドラッグストアが徒歩圏内♪ ●富曽亀小学校、東北中学校区の新築3LDK♪ ●広々とした駐車スペースは3台並列駐車できます。 ●前面道路には消雪パイプも完備で冬も安心! ●1階2階にウォークインクローゼット完備!充実した収納スペース。 ●ガス衣類乾燥機「乾太くん」を設置!冬場や花粉の季節の洗濯ストレスを軽減します。
物件コード 00007-200764
物件名 長岡市新保4丁目 建売住宅
交通 駅:信越線 北長岡駅から徒歩16分、バス:中越高校前から徒歩3分
物件所在地 新潟県長岡市新保4丁目1446番14
物件種別 新築一戸建て
構造 木造 階建 地上2階建
建ぺい率/容積率 50%/80%
建物面積 計 92.54㎡ /27.99坪
土地面積 181.92㎡ /55.03坪
築年月 2026年7月完成予定
入居(引き渡し)時期 相談
用途地域 第1種低層住居専用地域 地目 宅地
都市計画 市街化区域 学校区 富曾亀小学校(415m)・東北中学校(1,138m)
形状 - 道路 北西側:市道 8.0m
私道 - その他の制限 -
  • 長岡市新保4丁目 建売住宅
    有限会社 一代工務店
  • この物件を問い合わせる/無料
  • TEL: 0258-34-2221 0258-34-2221

物件詳細情報

所在階/階数 - 号室 -
販売価格 29,800,000円 方位 北西
間取り 3LDK (洋室:7、6、6)
LDK16.6
建築確認番号:NK第25長00846号
専有面積 - バルコニー面積 -
その他面積 - 駐車場 -
管理費 - 修繕積立金 -
現況 指定なし
仲介手数料 なし
利用制限 -
設備 整形地、前面道路6m以上、日当り良好、閑静な住宅街、スーパー近く、BELS/省エネ基準適合認定建物、LDK15畳以上、全室フローリング、駐車場2台以上、駐車場3台以上、庭あり、TVインターホン、複層ガラス、ディンプルキー、システムキッチン、IHクッキングヒーター、3口コンロ、追いだき機能付き、バス1坪以上、温水洗浄便座、シャワー付き洗面台、エアコン、24時間換気システム、省エネ給湯、高気密高断熱住宅、都市ガス、上水道、下水道、電気、ウォークインクローゼット、全居室収納あり、床下収納、シューズBOX、照明器具付き
取引態様 売主
備考 ・絶対高さの制限:10m
・外壁後退:1m
・第一種高度地区
・22条指定区域
※物件掲載内容と現況に相違がある場合は現況を優先と致します。
詳細はお気軽にお問い合わせください。
担当:沼田
携帯:070-8449-3715
取り扱い会社

有限会社 一代工務店

新潟県長岡市信濃2-5-36

情報登録日 2026/03/08 次回更新予定日 2026/04/03
取引条件有効期限 2026/05/01
  • 長岡市新保4丁目 建売住宅
    有限会社 一代工務店
  • この物件を問い合わせる/無料
  • TEL: 0258-34-2221 0258-34-2221

この物件の地図・周辺情報・行政情報

この物件の周辺情報・行政情報を詳しく見る
【周辺情報】
物件の近くにあるコンビニや銀行・学校など、アイコン付のマップで詳しく表示できます!
【行政情報】
水道料や下水道料・ガス料金など、暮らしに関係のある情報を表示しています。
セブン-イレブン 長岡永田店(コンビニ)まで500m
ローソン 長岡新保店(コンビニ)まで500m
原信 新保店(スーパー)まで380m
ドラッグトップス 新保薬局(ドラッグストア)まで270m
大光銀行 新保支店(銀行)まで450m
長岡永田郵便局(郵便局)まで410m

※カメラのアイコンがある場合は、マウスをポイントするとその施設の画像がご覧いただけます。


担当取扱い店舗情報

取扱い店舗画像
有限会社 一代工務店
TEL: 0258-34-2221
所在地: 新潟県長岡市信濃2-5-36
交通: 長岡駅
営業時間: 9:00~18:00/定休日:
免許番号: 新潟県知事(12)2196号
所属団体名: 新潟県宅地建物取引業協会 長岡支部
取引態様: 売主
ホームページ: http://www.ichidai-k.co.jp/