新潟県十日町市西本町2丁目9番24 新築一戸建て 3LDK 27,800,000円の物件情報

オール電化!自然落雪屋根♪商業施設徒歩圏内◆2階LDK◆家事ラク動線◆角地

物件名/所在地 詳細 価格
十日町市西本町2丁目 建売住宅 2号棟
新潟県十日町市西本町2丁目9番24
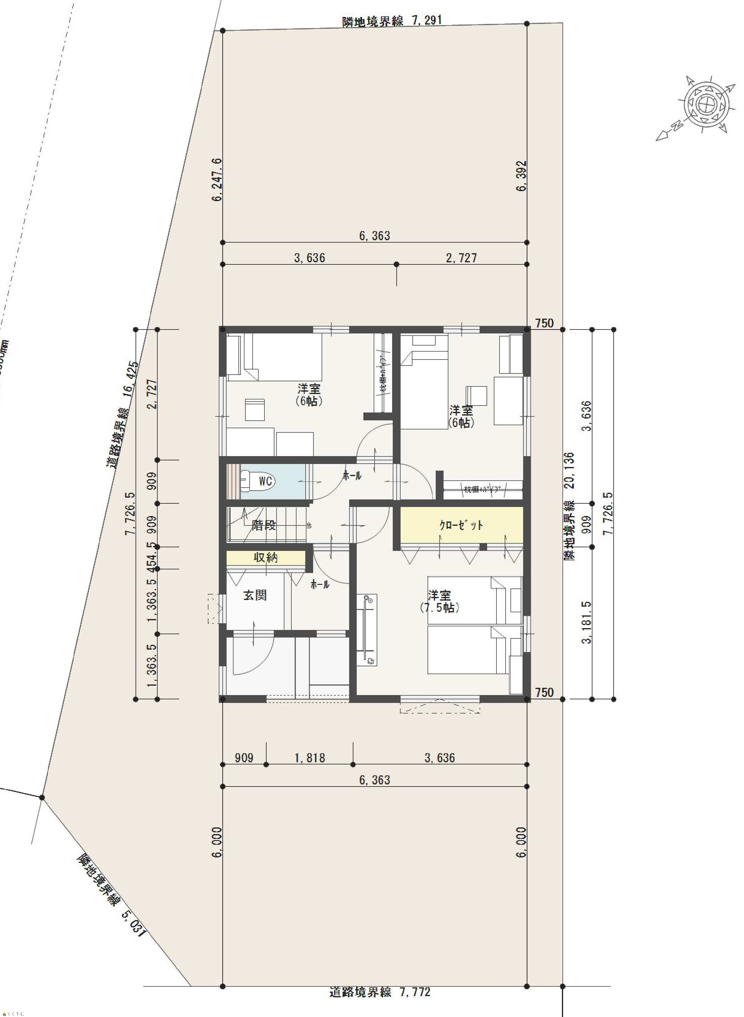
  • 土地面積
    :183㎡ /55.35坪
  • 建物面積
    :94.6㎡ /28.61坪
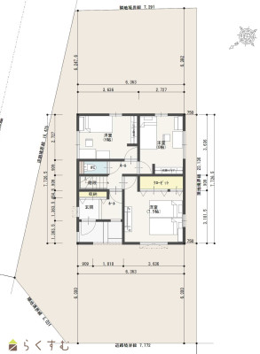
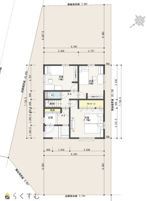
  • 間取り
    :3LDK
  • 築年月
    :2026年3月
27,800,000
  • 十日町市西本町2丁目 建売住宅 2号棟
    有限会社 一代工務店
  • この物件を問い合わせる/無料
  • TEL: 0258-34-2221 0258-34-2221

物件画像

外観
間取り
物件画像
※画像クリックで拡大表示
外観
物件画像
※画像クリックで拡大表示
地型付間取り図
詳細画像
物件画像
1階
物件画像
2階
物件画像
2階LDK16.1帖
物件画像
2階LDK16.1帖
物件画像
キッチン
物件画像
玄関ポーチ
物件画像
玄関ホール
物件画像
1階洋室7.5帖
物件画像
1階洋室6帖1
物件画像
1階洋室6帖2
物件画像
1階トイレ 1階2階にトイレ完備♪
物件画像
ユニットバス
物件画像
サンルーム
物件画像
洗面化粧台
物件画像
シューズクローク
物件画像
ファミリークローク
物件画像
食品庫
物件画像
前面道路は幅員8mでお車の苦手な方も安心です。
物件画像
BELS/建築物省エネ基準適合認定書あり
物件画像
印刷用地図
動画


物件概要

◆オール電化・角地の3LDK住宅! ◆自然落雪屋根で、冬も安心です♪ ◆スーパー・コンビニ・ドラッグストアが徒歩圏内♪ ◆周りからの視線が気にならない2階リビングは、居心地が良く、家族団らんにも最適です。 ◆サンルームに洗濯機置き場を配置し、洗う・干すが一ヶ所で完結。 ◆生活感を隠してすっきり。整った暮らしを叶える3帖のファミリークロークを設置しました。
物件コード 00007-200753
物件名 十日町市西本町2丁目 建売住宅 2号棟
交通 駅:飯山線 十日町駅から徒歩19分、バス:十日町車庫前から徒歩7分
物件所在地 新潟県十日町市西本町2丁目9番24
物件種別 新築一戸建て
構造 木造 階建 地上2階建
建ぺい率/容積率 70%/150%
建物面積 計 94.6㎡ /28.61坪
土地面積 183㎡ /55.35坪
築年月 2026年3月(築2ヶ月)
入居(引き渡し)時期 随時入居(引き渡し)可
用途地域 第1種中高層住居専用地域 地目
都市計画 非線引き都市計画区域 学校区 西小学校(377m)・南中学校(2,039m)
形状 - 道路 北東側:市道 8.0m、北西側:市道 8.0m
私道 - その他の制限 -
  • 十日町市西本町2丁目 建売住宅 2号棟
    有限会社 一代工務店
  • この物件を問い合わせる/無料
  • TEL: 0258-34-2221 0258-34-2221

物件詳細情報

所在階/階数 - 号室 -
販売価格 27,800,000円 方位 北西
間取り 3LDK (洋室:7.5、6、6)
LDK16.1
サンルームあり
専有面積 - バルコニー面積 -
その他面積 - 駐車場 -
管理費 - 修繕積立金 -
現況 指定なし
仲介手数料 なし
利用制限 -
設備 前面道路6m以上、日当り良好、閑静な住宅街、スーパー近く、BELS/省エネ基準適合認定建物、フラット35S適合、LDK15畳以上、全室フローリング、駐車場2台以上、TVインターホン、複層ガラス、ディンプルキー、システムキッチン、IHクッキングヒーター、浄水器、3口コンロ、追いだき機能付き、バス1坪以上、温水洗浄便座、シャワー付き洗面台、エアコン、24時間換気システム、オール電化、省エネ給湯、高気密高断熱住宅、上水道、下水道、電気、ウォークインクローゼット、全居室収納あり、床下収納、シューズBOX、照明器具付き、即引き渡し可能
取引態様 売主
備考 ・22条指定区域

※物件掲載内容と現況に相違がある場合は現況を優先と致します。
詳細はお気軽にお問い合わせください。
担当:高橋
携帯:080-1223-9349
取り扱い会社

有限会社 一代工務店

新潟県長岡市信濃2-5-36

情報登録日 2026/04/26 次回更新予定日 2026/05/22
取引条件有効期限 2026/06/01
  • 十日町市西本町2丁目 建売住宅 2号棟
    有限会社 一代工務店
  • この物件を問い合わせる/無料
  • TEL: 0258-34-2221 0258-34-2221

この物件の地図・周辺情報・行政情報

この物件の周辺情報・行政情報を詳しく見る
【周辺情報】
物件の近くにあるコンビニや銀行・学校など、アイコン付のマップで詳しく表示できます!
【行政情報】
水道料や下水道料・ガス料金など、暮らしに関係のある情報を表示しています。
ローソン 十日町西本町店(コンビニ)まで260m
原信 十日町北店(スーパー)まで760m
ウエルシア十日町下川原町店 (調剤薬局)(ドラッグストア)まで320m

※カメラのアイコンがある場合は、マウスをポイントするとその施設の画像がご覧いただけます。


担当取扱い店舗情報

取扱い店舗画像
有限会社 一代工務店
TEL: 0258-34-2221
所在地: 新潟県長岡市信濃2-5-36
交通: 長岡駅
営業時間: 9:00~18:00/定休日:
免許番号: 新潟県知事(12)2196号
所属団体名: 新潟県宅地建物取引業協会 長岡支部
取引態様: 売主
ホームページ: http://www.ichidai-k.co.jp/