新潟県三条市曲渕3丁目137番14 新築一戸建て 3LDK 23,900,000円の物件情報

近隣商業施設充実◆対面キッチン♪◆LDK南向き◆前面道路に消雪パイプあり!

物件名/所在地 詳細 価格
三条市曲渕3丁目 建売住宅③
新潟県三条市曲渕3丁目137番14
  • 土地面積
    :165.65㎡ /50.1坪
  • 建物面積
    :84㎡ /25.41坪
  • 間取り
    :3LDK
  • 築年月
    :2026年5月
23,900,000
  • 三条市曲渕3丁目 建売住宅③
    有限会社 一代工務店
  • この物件を問い合わせる/無料
  • TEL: 0258-34-2221 0258-34-2221

物件画像

外観
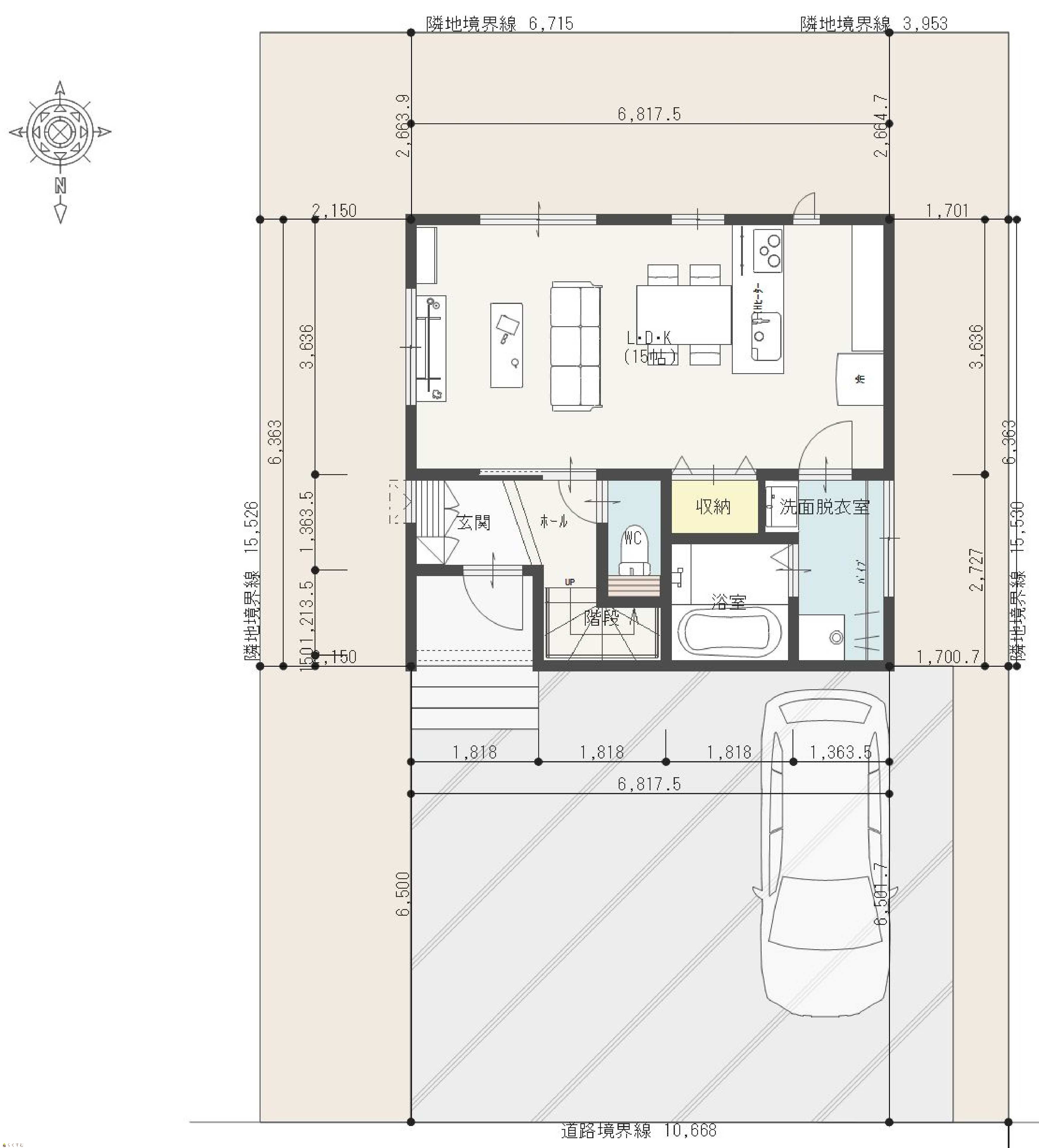
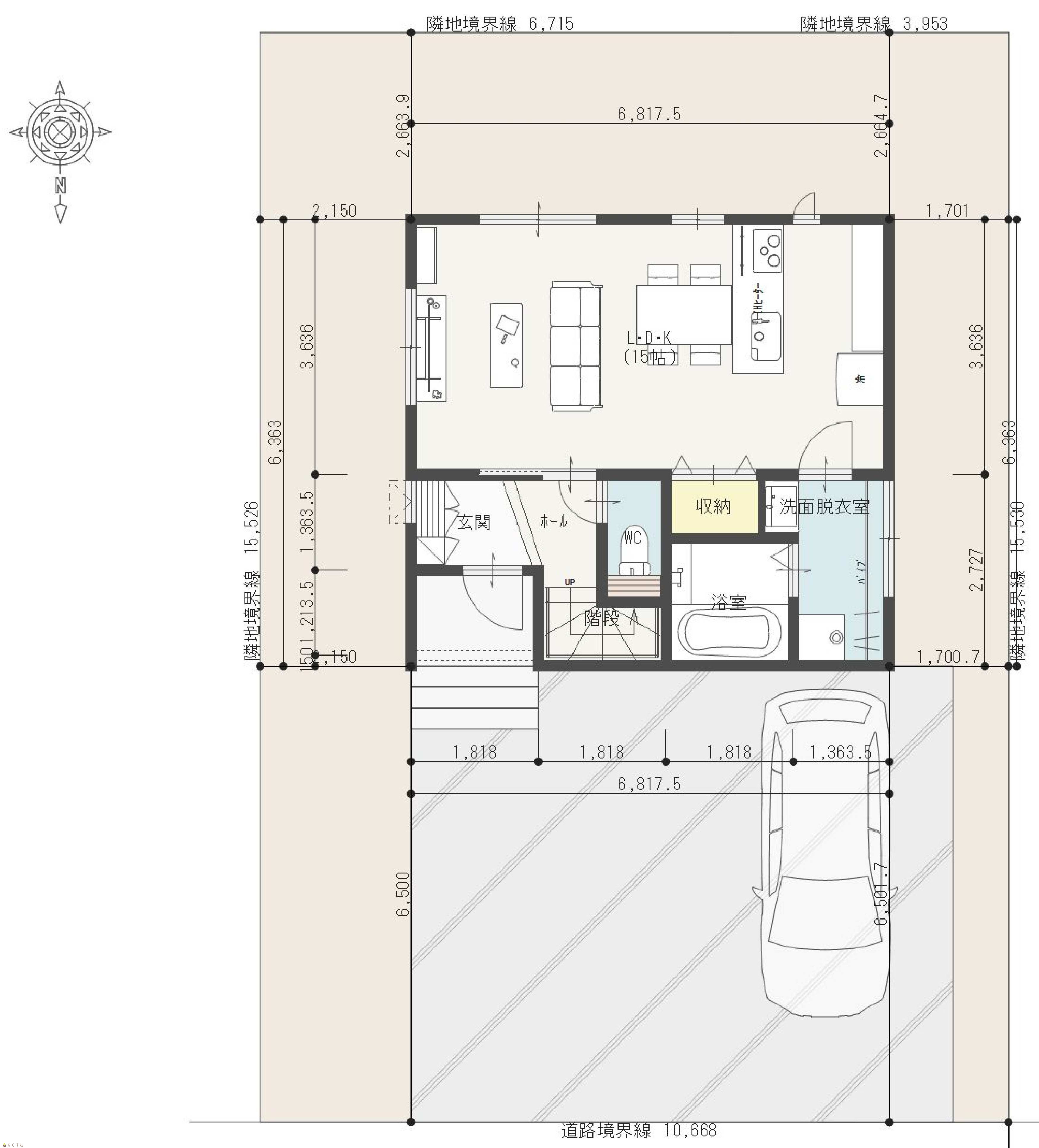
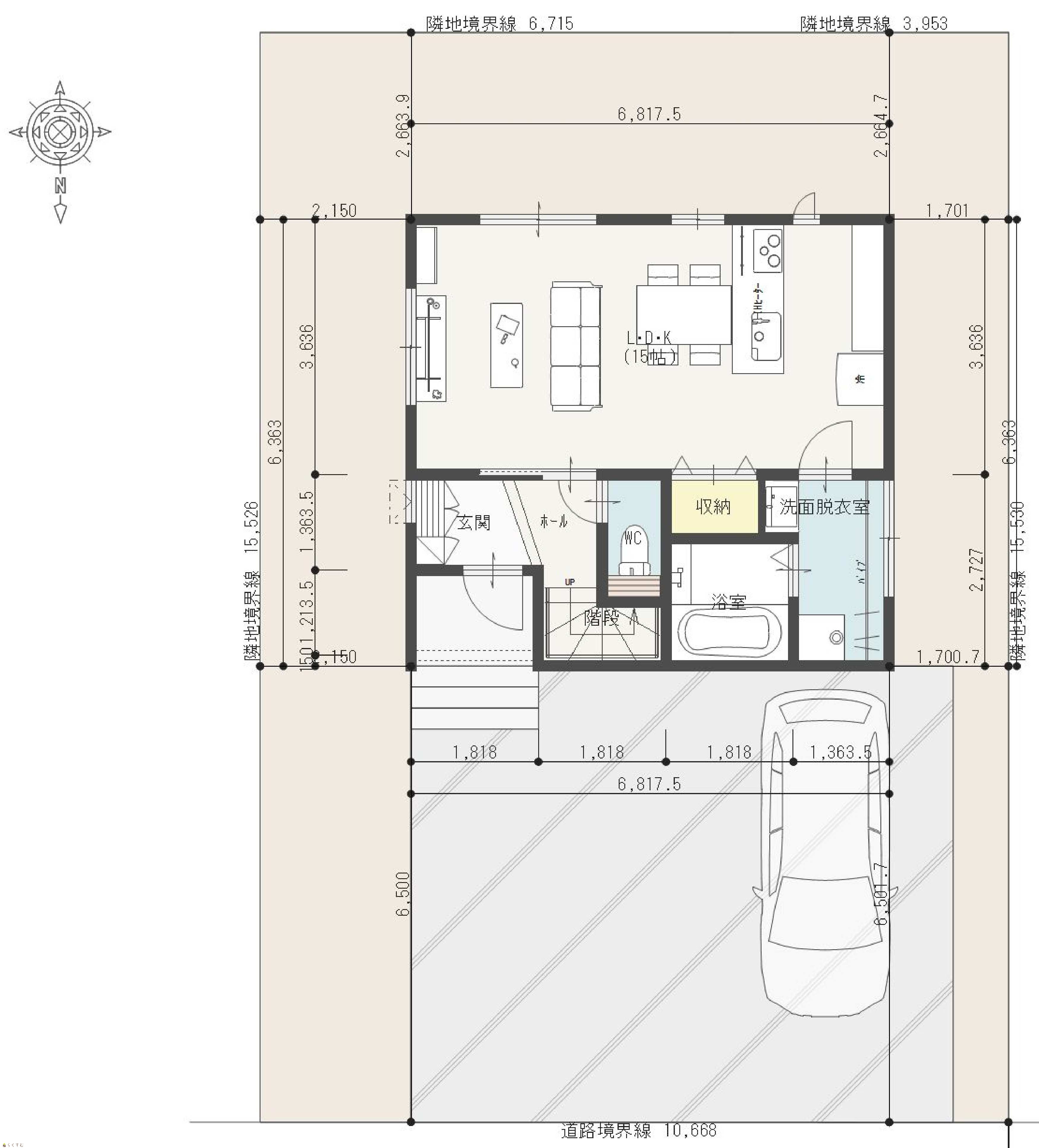
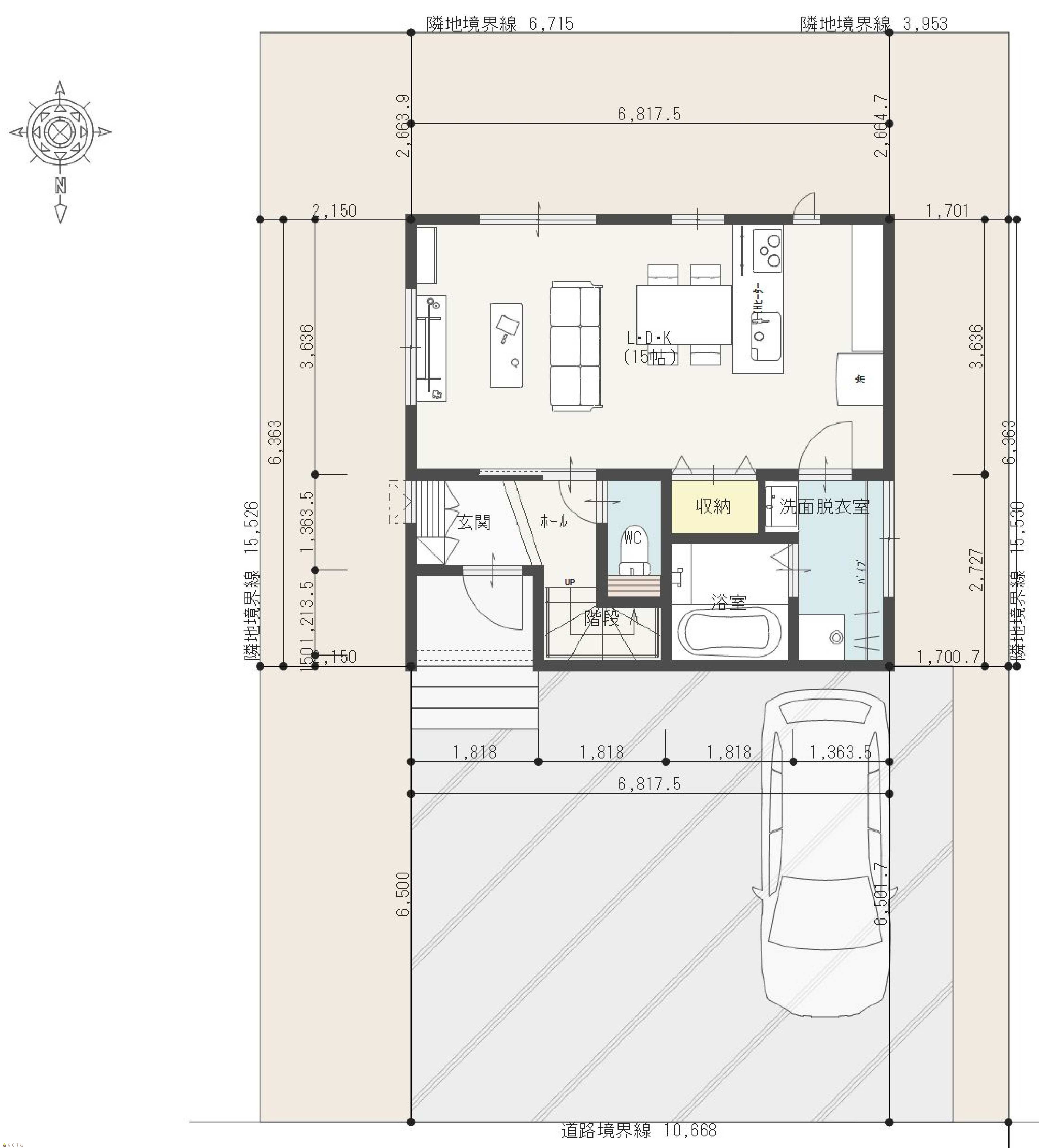
間取り
物件画像
※画像クリックで拡大表示
※画像はイメージとなり実物と異なる場合があります。
物件画像
※画像クリックで拡大表示
地型付間取り図
詳細画像
物件画像
1階
物件画像
2階
物件画像
LDK15帖
物件画像
LDK15帖
物件画像
キッチン
物件画像
玄関ホール
物件画像
洗面脱衣室
物件画像
洗面化粧台
物件画像
ユニットバス
物件画像
1階トイレ 1階2階にトイレ完備♪
物件画像
2階 洋室7.2帖
物件画像
2階 洋室6.1帖1
物件画像
2階 洋室6.1帖2
物件画像
シューズボックス
物件画像
キッチン収納
物件画像
キッチン収納
物件画像
2階 洋室7.2帖のウォークインクローゼット
物件画像
前面道路は消雪パイプがありますので、冬も安心です。
物件画像
BELS/建築物省エネ基準適合認定書あり
物件画像
印刷用地図
動画


物件概要

<令和8年5月完成予定>◆商業施設やスーパーが徒歩圏内に充実♪ ◆月岡小学校・こども園も徒歩圏内♪お子様も安心の環境です。 ◆前面道路は消雪パイプ設置!冬も安心です。 ◆LDKはソファもダイニングもゆったり置ける広さ♪南向きの窓から光が差し込む、明るい空間♪ ◆対面キッチンは、ご家族やお客様とのコミュニケーションも取りやすくなっています。 ◆洗濯機と物干し場を一緒にし、重い洗濯物を運ぶことなく干せ、家事効率UP!
物件コード 00007-200746
物件名 三条市曲渕3丁目 建売住宅③
交通 駅:信越線 三条駅から徒歩17分、バス:曲渕二丁目から徒歩5分
物件所在地 新潟県三条市曲渕3丁目137番14
物件種別 新築一戸建て
構造 木造 階建 地上2階建
建ぺい率/容積率 50%/100%
建物面積 計 84㎡ /25.41坪
土地面積 165.65㎡ /50.1坪
築年月 2026年5月完成予定
入居(引き渡し)時期 相談
用途地域 第1種低層住居専用地域 地目 宅地
都市計画 非線引き都市計画区域 学校区 月岡小学校(351m)・本成寺中学校(1,698m)
形状 - 道路 北側:市道 6.0m
私道 - その他の制限 -
  • 三条市曲渕3丁目 建売住宅③
    有限会社 一代工務店
  • この物件を問い合わせる/無料
  • TEL: 0258-34-2221 0258-34-2221

物件詳細情報

所在階/階数 - 号室 -
販売価格 23,900,000円 方位
間取り 3LDK (洋室:7.2、6.1、6.1)
LDK15
建築確認番号:NK第25長00085号
専有面積 - バルコニー面積 -
その他面積 - 駐車場 -
管理費 - 修繕積立金 -
現況 指定なし
仲介手数料 なし
利用制限 -
設備 整形地、前面道路6m以上、日当り良好、スーパー近く、BELS/省エネ基準適合認定建物、フラット35S適合、LDK15畳以上、全室フローリング、駐車場2台以上、南向き、TVインターホン、複層ガラス、ディンプルキー、システムキッチン、IHクッキングヒーター、3口コンロ、追いだき機能付き、バス1坪以上、温水洗浄便座、シャワー付き洗面台、エアコン、24時間換気システム、省エネ給湯、高気密高断熱住宅、都市ガス、上水道、浄化槽、電気、ウォークインクローゼット、全居室収納あり、シューズBOX、照明器具付き
取引態様 売主
備考 ・22条指定区域
・高さ制限:10m
・外壁後退:1.5m
・消雪パイプ管理費:20,000円/年

※物件掲載内容と現況に相違がある場合は現況を優先と致します。
詳細はお気軽にお問い合わせください。
担当:小林
携帯:090-1438-1795
取り扱い会社

有限会社 一代工務店

新潟県長岡市信濃2-5-36

情報登録日 2026/04/11 次回更新予定日 2026/05/22
取引条件有効期限 2026/06/01
  • 三条市曲渕3丁目 建売住宅③
    有限会社 一代工務店
  • この物件を問い合わせる/無料
  • TEL: 0258-34-2221 0258-34-2221

この物件の地図・周辺情報・行政情報

この物件の周辺情報・行政情報を詳しく見る
【周辺情報】
物件の近くにあるコンビニや銀行・学校など、アイコン付のマップで詳しく表示できます!
【行政情報】
水道料や下水道料・ガス料金など、暮らしに関係のある情報を表示しています。
マルイ 三条月岡店(スーパー)まで990m
三条信用金庫 月岡支店(銀行)まで760m

※カメラのアイコンがある場合は、マウスをポイントするとその施設の画像がご覧いただけます。


担当取扱い店舗情報

取扱い店舗画像
有限会社 一代工務店
TEL: 0258-34-2221
所在地: 新潟県長岡市信濃2-5-36
交通: 長岡駅
営業時間: 9:00~18:00/定休日:
免許番号: 新潟県知事(12)2196号
所属団体名: 新潟県宅地建物取引業協会 長岡支部
取引態様: 売主
ホームページ: http://www.ichidai-k.co.jp/