新潟県長岡市前田1丁目96番 新築一戸建て 3LDK 26,990,000円の物件情報

スーパー、コンビニ、小学校、保育園徒歩圏内◆乾太くん設置♪◆1階にファミリークローク

物件名/所在地 詳細 価格
長岡市前田1丁目 建売住宅 1号棟
新潟県長岡市前田1丁目96番
  • 土地面積
    :171㎡ /51.72坪
  • 建物面積
    :91.71㎡ /27.74坪
  • 間取り
    :3LDK
  • 築年月
    :2026年1月
26,990,000
  • 長岡市前田1丁目 建売住宅 1号棟
    有限会社 一代工務店
  • この物件を問い合わせる/無料
  • TEL: 0258-34-2221 0258-34-2221

物件画像

外観
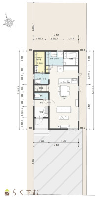
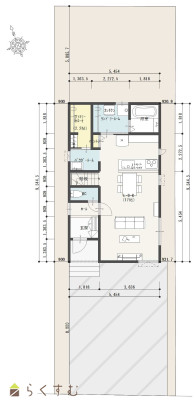
間取り
物件画像
※画像クリックで拡大表示
※画像はイメージとなり実物と異なる場合があります。
物件画像
※画像クリックで拡大表示
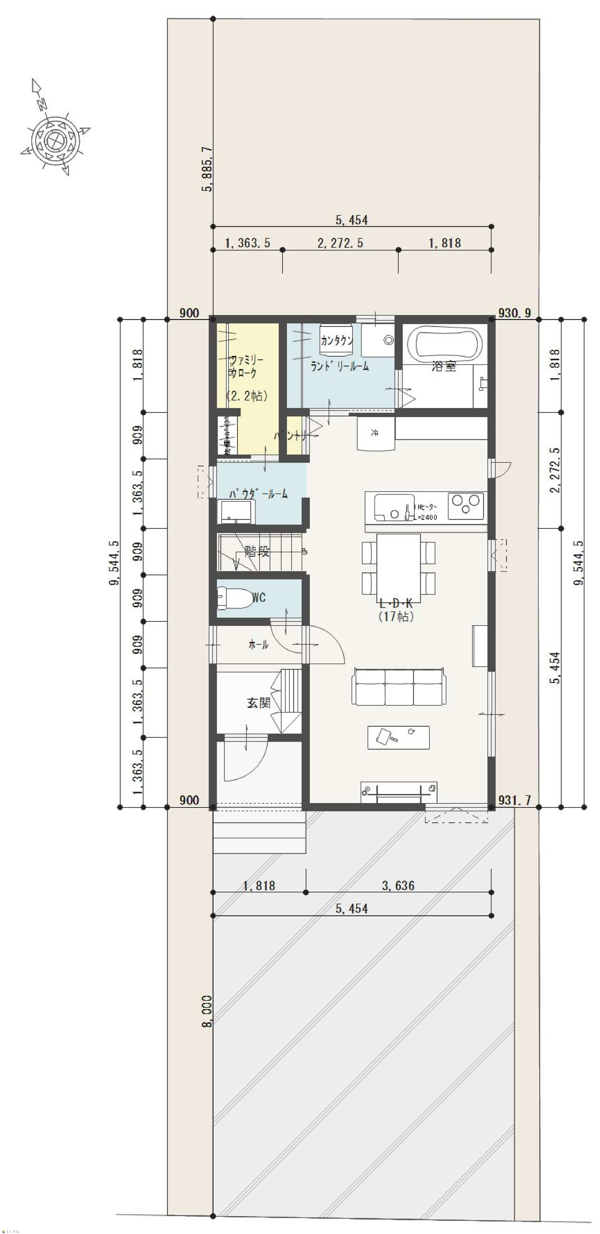
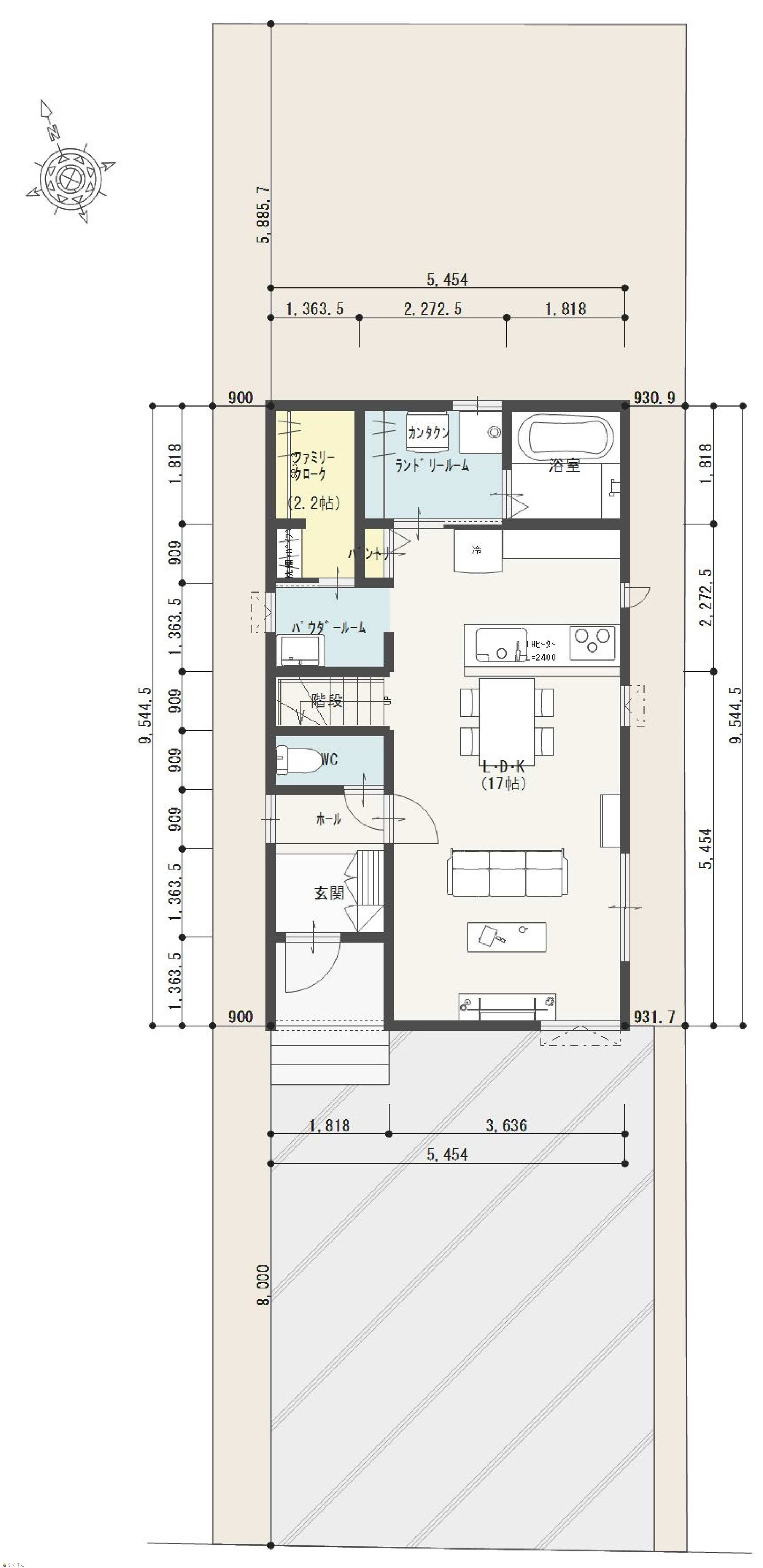
地型付間取り図
詳細画像
物件画像
1階
物件画像
2階
物件画像
外構工事未完成
物件画像
LDK17帖
物件画像
キッチン
物件画像
キッチン
物件画像
玄関ポーチ
物件画像
玄関ホール
物件画像
ランドリールーム+乾太くん
物件画像
ユニットバス
物件画像
2階洋室7帖
物件画像
2階洋室7帖のウォークインクローゼット
物件画像
2階洋室6帖1
物件画像
2階洋室6帖2
物件画像
2階トイレ
物件画像
パントリー
物件画像
ファミリークローク
物件画像
前面道路
物件画像
印刷用地図


物件概要

◆スーパー、コンビニ徒歩圏内でお買い物にも便利な立地です! ◆四郎丸小学校、保育園も徒歩圏内でお子様の通学も安心です。 ◆ランドリールームには乾太くんを設置。ファミリークロークも隣接してあり、洗濯から片付けまで楽々♪ ◆脱衣室と分かれた洗面台は、気兼ねなく使用できます。 ◆7帖の洋室はウォークインクローゼット付きです。◆ファミリークロークの近くのパウダールームは、お化粧とあわせて着替えもできる効率的な間取りです。
物件コード 00007-200741
物件名 長岡市前田1丁目 建売住宅 1号棟
交通 駅:信越線 長岡駅から徒歩24分、バス:前田町から徒歩3分
物件所在地 新潟県長岡市前田1丁目96番
物件種別 新築一戸建て
構造 木造 階建 地上2階建
建ぺい率/容積率 50%/100%
建物面積 計 91.71㎡ /27.74坪
土地面積 171㎡ /51.72坪
築年月 2026年1月完成予定
入居(引き渡し)時期 相談
用途地域 第1種低層住居専用地域 地目 田  (現状:宅地)
都市計画 市街化区域 学校区 四郎丸小学校(631m)・南中学校(1,465m)
形状 - 道路 -
私道 - その他の制限 -
  • 長岡市前田1丁目 建売住宅 1号棟
    有限会社 一代工務店
  • この物件を問い合わせる/無料
  • TEL: 0258-34-2221 0258-34-2221

物件詳細情報

所在階/階数 - 号室 -
販売価格 26,990,000円 方位
間取り 3LDK (洋室:7、6、6)
LDK17
建築確認番号:NK第25長00032号
専有面積 - バルコニー面積 -
その他面積 - 駐車場 -
管理費 - 修繕積立金 -
現況 指定なし
仲介手数料 なし
利用制限 -
設備 日当り良好、閑静な住宅街、スーパー近く、BELS/省エネ基準適合認定建物、フラット35S適合、LDK15畳以上、全室フローリング、駐車場2台以上、南向き、庭あり、TVインターホン、複層ガラス、ディンプルキー、システムキッチン、IHクッキングヒーター、浄水器、3口コンロ、追いだき機能付き、バス1坪以上、温水洗浄便座、シャワー付き洗面台、エアコン、24時間換気システム、省エネ給湯、高気密高断熱住宅、都市ガス、上水道、下水道、電気、ウォークインクローゼット、全居室収納あり、床下収納、シューズBOX、照明器具付き
取引態様 売主
備考 ・第一種高度地区
・22条指定区域
・高さ制限:10m
・外壁後退:なし
※物件掲載内容と現況に相違がある場合は現況を優先と致します。
詳細はお気軽にお問い合わせください。
担当:高橋
携帯:080-1223-9349
取り扱い会社

有限会社 一代工務店

新潟県長岡市信濃2-5-36

情報登録日 2025/12/12 次回更新予定日 2025/12/31
取引条件有効期限 2026/02/01
  • 長岡市前田1丁目 建売住宅 1号棟
    有限会社 一代工務店
  • この物件を問い合わせる/無料
  • TEL: 0258-34-2221 0258-34-2221

この物件の地図・周辺情報・行政情報

この物件の周辺情報・行政情報を詳しく見る
【周辺情報】
物件の近くにあるコンビニや銀行・学校など、アイコン付のマップで詳しく表示できます!
【行政情報】
水道料や下水道料・ガス料金など、暮らしに関係のある情報を表示しています。

担当取扱い店舗情報

取扱い店舗画像
有限会社 一代工務店
TEL: 0258-34-2221
所在地: 新潟県長岡市信濃2-5-36
交通: 長岡駅
営業時間: 9:00~18:00/定休日:
免許番号: 新潟県知事(12)2196号
所属団体名: 新潟県宅地建物取引業協会 長岡支部
取引態様: 売主
ホームページ: http://www.ichidai-k.co.jp/