新潟県柏崎市半田1丁目字前谷内975番1 新築一戸建て 3LDK 24,800,000円の物件情報

敷地は77坪!◆スーパー・コンビニ、小中学校も徒歩圏内◆乾太くん設置◆WIC

物件名/所在地 詳細 価格
柏崎市半田1丁目 建売住宅
新潟県柏崎市半田1丁目字前谷内975番1
  • 土地面積
    :257㎡ /77.74坪
  • 建物面積
    :89.23㎡ /26.99坪
  • 間取り
    :3LDK
  • 築年月
    :2026年1月
24,800,000
  • 柏崎市半田1丁目 建売住宅
    有限会社 一代工務店
  • この物件を問い合わせる/無料
  • TEL: 0258-34-2221 0258-34-2221

物件画像

外観
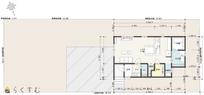
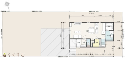
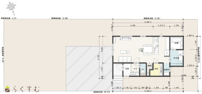
間取り
物件画像
※画像クリックで拡大表示
※画像はイメージとなり実物と異なる場合があります。
物件画像
※画像クリックで拡大表示
地型付間取り図
詳細画像
物件画像
1階
物件画像
2階
物件画像
LDK17帖
物件画像
キッチン
物件画像
玄関ホール
物件画像
脱衣室・ユニットバス ガス衣類乾燥機「乾太くん」設置
物件画像
洗面台
物件画像
ユニットバス
物件画像
キッチン脇収納
物件画像
1階トイレ 1階2階にトイレ完備♪
物件画像
2階洋室7帖
物件画像
2階洋室7帖のウォークインクローゼット
物件画像
2階洋室6帖1
物件画像
2階洋室6帖2
物件画像
寒冷地仕様エアコン
物件画像
給湯器リモコン
物件画像
前面道路は幅約5.5mです。
物件画像
BELS/建築物省エネ基準適合認定書あり
物件画像
印刷用地図
動画


物件概要

◆敷地は余裕のある77坪となっています。 ◆半田小学校・鏡が沖中学校エリアです。 ◆スーパー・コンビニ等、小中学校も徒歩圏内です。 ◆LDKは17帖、対面キッチンとなっています。 ◆脱衣室には乾太くんデラックスが設置されています。 ◆寝室にはウォークインクローゼットが設置されています。 ◆洗面台を脱衣室と別にすることで、プライバシーに配慮しました。 ◆お庭10坪以上付きで、お子様の遊び場や、BBQ、家庭菜園などお楽しみ頂けます。 ◆西側には市の水路が有ります。
物件コード 00007-200735
物件名 柏崎市半田1丁目 建売住宅
交通 駅:信越線 茨目駅から徒歩19分、バス:半田中央から徒歩4分
物件所在地 新潟県柏崎市半田1丁目字前谷内975番1
物件種別 新築一戸建て
構造 木造 階建 地上2階建
建ぺい率/容積率 70%/200%
建物面積 計 89.23㎡ /26.99坪
土地面積 257㎡ /77.74坪
築年月 2026年1月(築2ヶ月)
入居(引き渡し)時期 随時入居(引き渡し)可
用途地域 無指定 地目 宅地
都市計画 非線引き都市計画区域 学校区 半田小学校(419m)・鏡が沖中学校(772m)
形状 - 道路 北側:市道 約5.5m~5.6m
私道 - その他の制限 -
  • 柏崎市半田1丁目 建売住宅
    有限会社 一代工務店
  • この物件を問い合わせる/無料
  • TEL: 0258-34-2221 0258-34-2221

物件詳細情報

所在階/階数 - 号室 -
販売価格 24,800,000円 方位
間取り 3LDK (洋室:7、6、6)
LDK17
専有面積 - バルコニー面積 -
その他面積 - 駐車場 -
管理費 - 修繕積立金 -
現況 指定なし
仲介手数料 なし
利用制限 -
設備 角地、整形地、日当り良好、スーパー近く、BELS/省エネ基準適合認定建物、フラット35S適合、LDK15畳以上、全室フローリング、駐車場2台以上、駐車場3台以上、南向き、庭あり、TVインターホン、複層ガラス、ディンプルキー、システムキッチン、IHクッキングヒーター、3口コンロ、追いだき機能付き、バス1坪以上、温水洗浄便座、シャワー付き洗面台、エアコン、24時間換気システム、省エネ給湯、高気密高断熱住宅、都市ガス、上水道、下水道、電気、ウォークインクローゼット、全居室収納あり、床下収納、シューズBOX、照明器具付き、即引き渡し可能、バリアフリー
取引態様 売主
備考 ・22条指定区域
※物件掲載内容と現況に相違がある場合は現況を優先と致します。
詳細はお気軽にお問い合わせください。
担当:藤崎
携帯:090-2763-5443
取り扱い会社

有限会社 一代工務店

新潟県長岡市信濃2-5-36

情報登録日 2026/03/08 次回更新予定日 2026/04/03
取引条件有効期限 2026/05/01
  • 柏崎市半田1丁目 建売住宅
    有限会社 一代工務店
  • この物件を問い合わせる/無料
  • TEL: 0258-34-2221 0258-34-2221

この物件の地図・周辺情報・行政情報

この物件の周辺情報・行政情報を詳しく見る
【周辺情報】
物件の近くにあるコンビニや銀行・学校など、アイコン付のマップで詳しく表示できます!
【行政情報】
水道料や下水道料・ガス料金など、暮らしに関係のある情報を表示しています。
Kマートチェーン 朝日が丘店(コンビニ)まで220m
セブン-イレブン 柏崎半田3丁目店(コンビニ)まで670m
クスリのアオキ 半田店(ドラッグストア)まで650m
柏崎信用金庫 半田支店(銀行)まで590m
柏崎半田郵便局(郵便局)まで120m

※カメラのアイコンがある場合は、マウスをポイントするとその施設の画像がご覧いただけます。


担当取扱い店舗情報

取扱い店舗画像
有限会社 一代工務店
TEL: 0258-34-2221
所在地: 新潟県長岡市信濃2-5-36
交通: 長岡駅
営業時間: 9:00~18:00/定休日:
免許番号: 新潟県知事(12)2196号
所属団体名: 新潟県宅地建物取引業協会 長岡支部
取引態様: 売主
ホームページ: http://www.ichidai-k.co.jp/