新潟県柏崎市松波2丁目字上ノ島2854番1 新築一戸建て 3LDK 22,800,000円の物件情報

収納豊富な住まい♪洗面脱衣室の隣に物干場を配置した家事ラク動線!3台並列駐車可能♪シューズクローク有

物件名/所在地 詳細 価格
柏崎市松波2丁目 建売住宅 1号棟
新潟県柏崎市松波2丁目字上ノ島2854番1
  • 土地面積
    :214.94㎡ /65.01坪
  • 建物面積
    :92.4㎡ /27.95坪
  • 間取り
    :3LDK
  • 築年月
    :2025年9月
22,800,000
  • 柏崎市松波2丁目 建売住宅 1号棟
    有限会社 一代工務店
  • この物件を問い合わせる/無料
  • TEL: 0258-34-2221 0258-34-2221

物件画像

外観
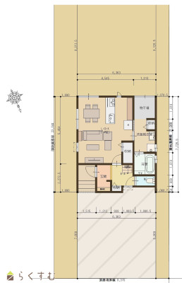
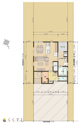
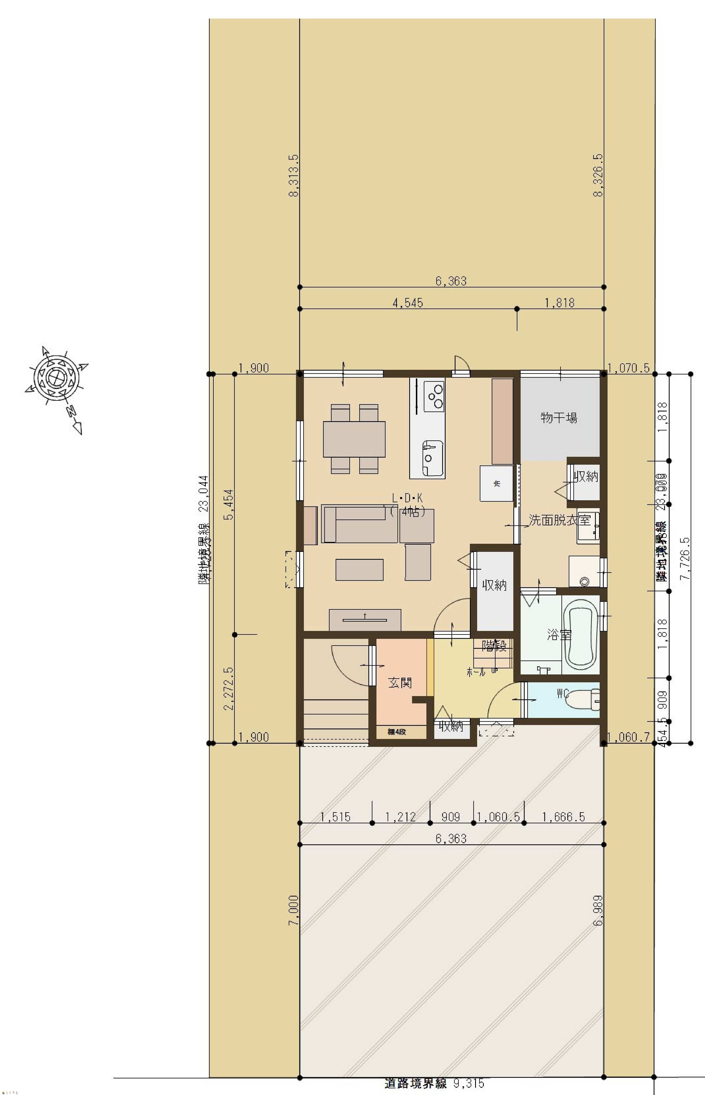
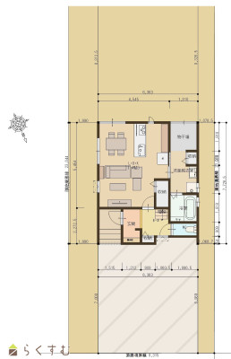
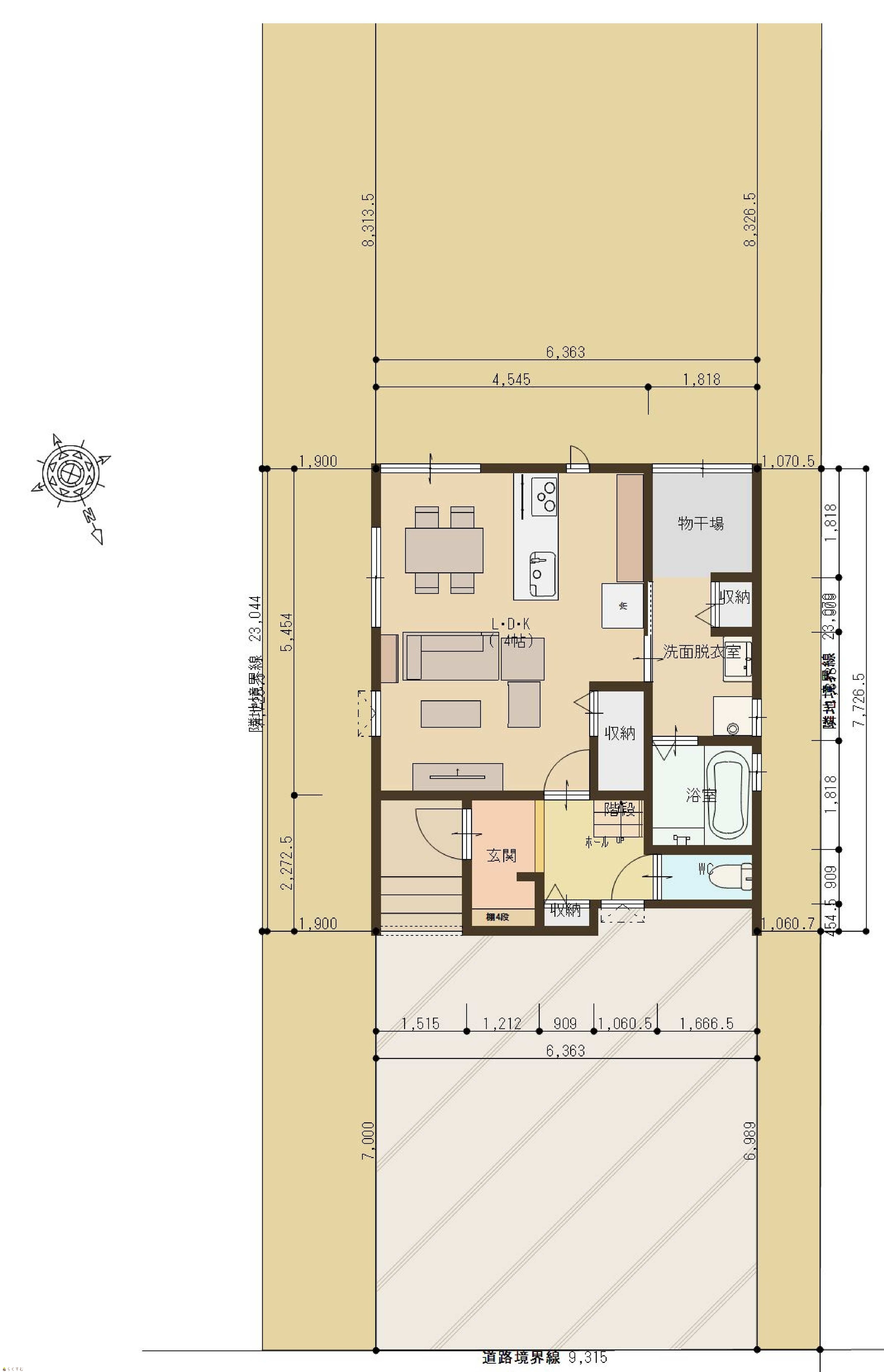
間取り
物件画像
※画像クリックで拡大表示
外観
物件画像
※画像クリックで拡大表示
地型付間取り図
詳細画像
物件画像
1階
物件画像
2階
物件画像
LDK14帖
物件画像
キッチン
物件画像
玄関ホール
物件画像
洗面脱衣室
物件画像
ユニットバス
物件画像
2階洋室7帖
物件画像
2階洋室6帖1
物件画像
2階洋室6帖2
物件画像
2階トイレ 1階・2階にトイレ完備♪
物件画像
2階ホール
物件画像
2階洋室7帖のウォークインクローゼット
物件画像
キッチンシンクの上にダクトレール付きです。
物件画像
寒冷地用エアコン
物件画像
給湯器リモコン
物件画像
キッチン収納
物件画像
前面道路の幅員は7.8mで、お車の苦手な方も安心ですね♪
物件画像
BELS/建築物省エネ基準適合認定書あり
物件画像
地図画像
動画


物件概要

洗面脱衣室の隣に物干場を配置した家事ラク動線!造成された住宅地の65坪の敷地です。 荒浜小学校区・松浜中学校区エリアです。前面道路は7.4mと広く駐車も楽々です。 土地の形が良く3台並列駐車可能です。 玄関にシューズクロークが配置されています。 料理をしながらLDKを見渡せる対面キッチンとなっています。 2階寝室にはウオークインクローゼットを設置しました。
物件コード 00007-200715
物件名 柏崎市松波2丁目 建売住宅 1号棟
交通 駅:越後線 東柏崎駅から徒歩27分、バス:松波1丁目から徒歩5分
物件所在地 新潟県柏崎市松波2丁目字上ノ島2854番1
物件種別 新築一戸建て
構造 木造 階建 地上2階建
建ぺい率/容積率 60%/200%
建物面積 計 92.4㎡ /27.95坪
土地面積 214.94㎡ /65.01坪
築年月 2025年9月(築8ヶ月)
入居(引き渡し)時期 随時入居(引き渡し)可
用途地域 第1種中高層住居専用地域 地目 宅地
都市計画 非線引き都市計画区域 学校区 荒浜小学校(1,689m)・松浜中学校(1,298m)
形状 - 道路 北側:市道約7.4m
私道 - その他の制限 -
  • 柏崎市松波2丁目 建売住宅 1号棟
    有限会社 一代工務店
  • この物件を問い合わせる/無料
  • TEL: 0258-34-2221 0258-34-2221

物件詳細情報

所在階/階数 - 号室 -
販売価格 22,800,000円 方位
間取り 3LDK (洋室:7、6、6)
LDK14
物干し場あり
専有面積 - バルコニー面積 -
その他面積 - 駐車場 -
管理費 - 修繕積立金 -
現況 指定なし
仲介手数料 なし
利用制限 -
設備 整形地、前面道路6m以上、日当り良好、閑静な住宅街、スーパー近く、BELS/省エネ基準適合認定建物、フラット35S適合、全室フローリング、駐車場2台以上、駐車場3台以上、庭あり、TVインターホン、複層ガラス、ディンプルキー、システムキッチン、IHクッキングヒーター、3口コンロ、追いだき機能付き、バス1坪以上、温水洗浄便座、シャワー付き洗面台、エアコン、24時間換気システム、省エネ給湯、高気密高断熱住宅、都市ガス、上水道、下水道、電気、ウォークインクローゼット、全居室収納あり、床下収納、シューズインクローゼット、照明器具付き、即引き渡し可能、バリアフリー
取引態様 売主
備考 ※物件掲載内容と現況に相違がある場合は現況を優先と致します。
詳細はお気軽にお問い合わせください。
担当:藤崎
携帯:090-2763-5443
取り扱い会社

有限会社 一代工務店

新潟県長岡市信濃2-5-36

情報登録日 2026/04/04 次回更新予定日 2026/05/22
取引条件有効期限 2026/06/01
  • 柏崎市松波2丁目 建売住宅 1号棟
    有限会社 一代工務店
  • この物件を問い合わせる/無料
  • TEL: 0258-34-2221 0258-34-2221

この物件の地図・周辺情報・行政情報

この物件の周辺情報・行政情報を詳しく見る
【周辺情報】
物件の近くにあるコンビニや銀行・学校など、アイコン付のマップで詳しく表示できます!
【行政情報】
水道料や下水道料・ガス料金など、暮らしに関係のある情報を表示しています。
松波町簡易郵便局(郵便局)まで680m

※カメラのアイコンがある場合は、マウスをポイントするとその施設の画像がご覧いただけます。


担当取扱い店舗情報

取扱い店舗画像
有限会社 一代工務店
TEL: 0258-34-2221
所在地: 新潟県長岡市信濃2-5-36
交通: 長岡駅
営業時間: 9:00~18:00/定休日:
免許番号: 新潟県知事(12)2196号
所属団体名: 新潟県宅地建物取引業協会 長岡支部
取引態様: 売主
ホームページ: http://www.ichidai-k.co.jp/