物件掲載企業数:301|賃貸物件:3,189件|売買物件:3,240件|今週の登録物件:302
閲覧中のブラウザ(インターネットエクスプローラー)は非推奨ブラウザです。
物件が正しく表示されなかったり、正しく検索されない場合があります。最新のブラウザ(Google Chrome・Edgeなど)にてご利用お願いいたします。
  

新潟県長岡市琴平3-3-31 新築一戸建て 2LDK 21,800,000円の物件情報

冬は暖かく、夏は涼しく24時間家中快適な高気密高断熱住宅◎エアコン1台で温度を一定にできるので光熱費の削減にもなります♪

物件名/所在地 詳細 価格
長岡市琴平 新築建売住宅
新潟県長岡市琴平3-3-31
  • 土地面積
    :98.5㎡ /29.79坪
  • 建物面積
    :60.44㎡ /18.28坪
  • 間取り
    :2LDK
  • 築年月
    :2025年7月
21,800,000
  • 長岡市琴平 新築建売住宅
    株式会社アップデート不動産
  • この物件を問い合わせる/無料
  • TEL: 080-4887-9627

物件画像

外観 間取り
物件画像
※画像クリックで拡大表示
*完成イメージ図*
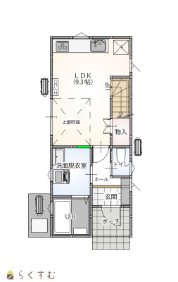
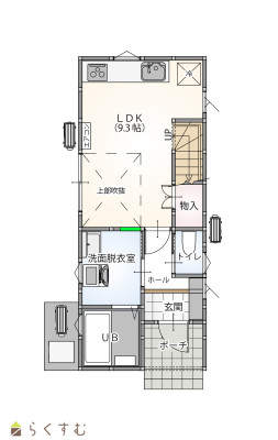
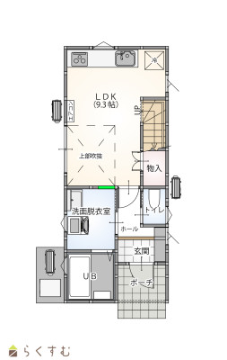
物件画像
※画像クリックで拡大表示
*間取り*家具の配置はイメージです
詳細画像
動画


物件概要

物件コード 00362-200025
物件名 長岡市琴平 新築建売住宅
交通 駅:信越線 北長岡駅から徒歩10分、バス:新町3丁目から徒歩7分
物件所在地 新潟県長岡市琴平3-3-31
物件種別 新築一戸建て
構造 木造 階建 地上2階建
建ぺい率/容積率 60%/200%
建物面積 1階 30.63㎡/ 2階 29.81㎡/ 計 60.44㎡ /18.28坪
土地面積 98.5㎡ /29.79坪
築年月 2025年7月(築9ヶ月)
入居(引き渡し)時期 相談
用途地域 第1種住居地域 地目 宅地
都市計画 市街化区域 学校区 新町小学校(460m)・北中学校(1,318m)
形状 間口 6.4m × 奥行 15.4m 道路 南東側(道路幅:5.8m/接道幅:6.4m)
私道 - その他の制限 -
  • 長岡市琴平 新築建売住宅
    株式会社アップデート不動産
  • この物件を問い合わせる/無料
  • TEL: 080-4887-9627

物件詳細情報

所在階/階数 - 号室 -
販売価格 21,800,000円 方位 -
間取り 2LDK
専有面積 - バルコニー面積 -
その他面積 - 駐車場 -
管理費 - 修繕積立金 -
現況 -
仲介手数料 なし
利用制限 -
設備 整形地、日当り良好、閑静な住宅街、全室フローリング、駐車場2台以上、TVインターホン、複層ガラス、システムキッチン、IHクッキングヒーター、追いだき機能付き、バス1坪以上、温水洗浄便座、シャワー付き洗面台、エアコン、24時間換気システム、オール電化、省エネ給湯、高気密高断熱住宅、上水道、下水道、電気、ウォークインクローゼット、全居室収納あり、シューズBOX、照明器具付き
取引態様 一般
備考 *見どころポイント*
・階段下収納や各居室にクローゼットが付いていたりと収納スペースが充実☆

・吹抜けから入る陽の光でリビングを明るく照らしてくれます!

・24時間温度が一定なので、ペットとの暮らしにもおすすめです◎

・遮音性が優れているので、外の音が気になりません!

━☆ご予約随時受付中☆━━
「資料請求」ボタンよりお問い合わせください(*^^*)
取り扱い会社

株式会社アップデート不動産

新潟県長岡市古正寺3-116

情報登録日 2025/05/20 次回更新予定日 2026/05/12
取引条件有効期限 2025/08/31
  • 長岡市琴平 新築建売住宅
    株式会社アップデート不動産
  • この物件を問い合わせる/無料
  • TEL: 080-4887-9627

この物件の地図・周辺情報・行政情報

この物件の周辺情報・行政情報を詳しく見る
【周辺情報】
物件の近くにあるコンビニや銀行・学校など、アイコン付のマップで詳しく表示できます!
【行政情報】
水道料や下水道料・ガス料金など、暮らしに関係のある情報を表示しています。
ファミリーマート 長岡新町二丁目店(コンビニ)まで470m
ローソン 長岡石内一丁目店(コンビニ)まで670m
チャレンジャー 北長岡店(スーパー)まで770m
ラ・ムー 長岡愛宕店(スーパー)まで770m
ウエルシア長岡泉店 (調剤薬局)(ドラッグストア)まで840m
あたごこどもクリニック(病院)まで580m
ながおか医療生協 かんだ診療所(病院)まで900m
第四北越銀行 新町支店(銀行)まで900m
第四北越銀行 神田中央支店(銀行)まで900m
長岡新町郵便局(郵便局)まで600m
長岡市立新町小学校(学校)まで650m
長岡市立北中学校(学校)まで1700m

※カメラのアイコンがある場合は、マウスをポイントするとその施設の画像がご覧いただけます。


担当取扱い店舗情報

取扱い店舗画像
株式会社アップデート不動産
TEL: 0258-94-4638
所在地: 新潟県長岡市古正寺3-116
交通:
営業時間: 10:00~17:00/定休日:水・木 年末年始 夏季冬季GW
免許番号: 新潟県知事(2)第5485号 この会社の情報を詳しく見る
所属団体名: 公社 新潟県宅地建物取引協会 長岡支部
取引態様: 一般