物件掲載企業数:297|賃貸物件:3,611件|売買物件:3,293件|今週の登録物件:282
閲覧中のブラウザ(インターネットエクスプローラー)は非推奨ブラウザです。
物件が正しく表示されなかったり、正しく検索されない場合があります。最新のブラウザ(Google Chrome・Edgeなど)にてご利用お願いいたします。
  

新潟県長岡市蔵王1丁目1-31ダイアパレス長岡蔵王808 中古マンション 1DK 6,800,000円の物件情報

静かで利便性の高いアーバンライフに適した中古マンションのオーナーチェンジ物件

物件名/所在地 詳細 価格
【蔵王】売マンション1DK(ダイアパレス長岡蔵王)
808号室
新潟県長岡市蔵王1丁目1-31ダイアパレス長岡蔵王808
  • 専有面積
    :39.45㎡ /11.93坪
  • 間取り
    :1DK
  • 築年月
    :1993年1月
6,800,000
  • 【蔵王】売マンション1DK(ダイアパレス長岡蔵王)
    株式会社ミライ’s R Estate
  • この物件を問い合わせる/無料
  • TEL: 0258-94-4545

物件画像

外観 間取り
物件画像
※画像クリックで拡大表示
外観
物件画像
※画像クリックで拡大表示
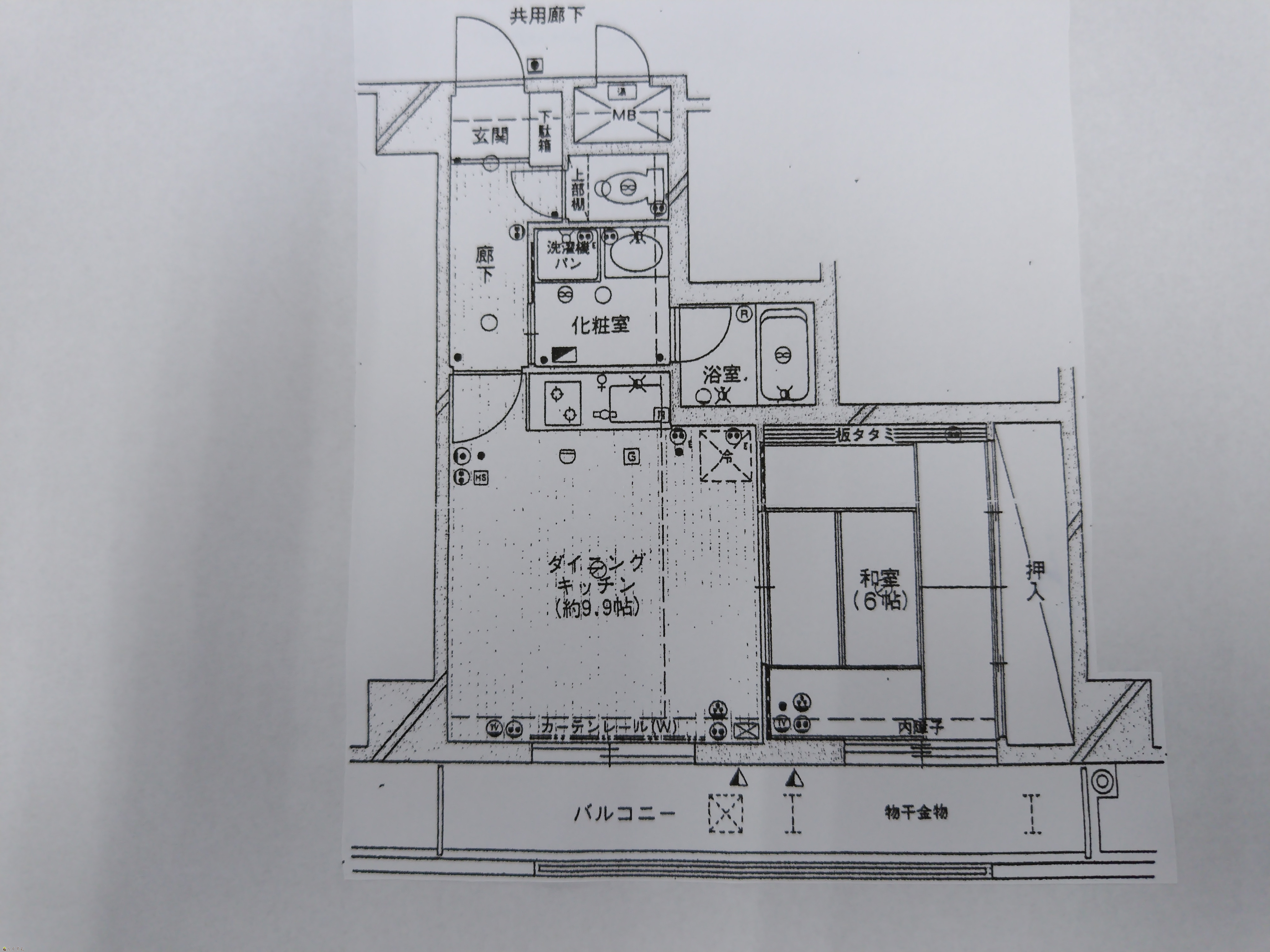
間取り図
詳細画像


物件概要

居室、リビングにベランダがあり、最上階の解放感と眺望の良さが抜群
物件コード 00322-200026
物件名 【蔵王】売マンション1DK(ダイアパレス長岡蔵王)
交通 駅:信越線 北長岡駅から徒歩15分、バス:蔵王から徒歩4分
物件所在地 新潟県長岡市蔵王1丁目1-31ダイアパレス長岡蔵王808
物件種別 中古マンション
構造 鉄筋コン 階建 地上8階建
建ぺい率/容積率 60%/200%
建物面積 計 5,181.89㎡ /1,567.52坪
土地面積 2,444.2㎡ /739.37坪
築年月 1993年1月(築32年)
入居(引き渡し)時期 相談
用途地域 準工業地域 地目 宅地
都市計画 市街化区域 学校区 新町小学校(253m)・北中学校(967m)
形状 - 道路 -
私道 - その他の制限 -
  • 【蔵王】売マンション1DK(ダイアパレス長岡蔵王)
    株式会社ミライ’s R Estate
  • この物件を問い合わせる/無料
  • TEL: 0258-94-4545

物件詳細情報

所在階/階数 8階/8階 号室 808号室
販売価格 6,800,000円 方位 -
間取り 1DK (和室:6畳) (洋室:8)
専有面積 39.45㎡ /11.93坪 バルコニー面積 8.85㎡ /2.67坪
その他面積 - 駐車場 -
管理費 5240円/月 修繕積立金 1660円/月
現況 賃貸中
仲介手数料 330,000円
利用制限 -
設備 最上階、2階以上、閑静な住宅街、スーパー近く、最寄駅近く、外観タイル張り、洗濯機置き場、エレベーター、和室あり、平面駐車場、駐輪場、管理人常駐(日中)、エントランスオートロック、システムキッチン、浴室1坪以上、エアコン、公営水道、下水道
取引態様 一般
備考 小中学校やコミュニティセンター、スーパーマーケットにもほど近いアーバンライフを楽しめる立地環境。現在、賃貸中のオーナーチェンジに伴う譲渡用物件です。家賃57,000円での表面利回りは10.58%。
取り扱い会社

株式会社ミライ’s R Estate

新潟県長岡市福住2-1-24高野ビル1階

情報登録日 2025/08/08 次回更新予定日 2025/12/22
取引条件有効期限 2025/10/30
  • 【蔵王】売マンション1DK(ダイアパレス長岡蔵王)
    株式会社ミライ’s R Estate
  • この物件を問い合わせる/無料
  • TEL: 0258-94-4545

この物件の地図・周辺情報・行政情報

この物件の周辺情報・行政情報を詳しく見る
【周辺情報】
物件の近くにあるコンビニや銀行・学校など、アイコン付のマップで詳しく表示できます!
【行政情報】
水道料や下水道料・ガス料金など、暮らしに関係のある情報を表示しています。

担当取扱い店舗情報

取扱い店舗画像
株式会社ミライ’s R Estate
TEL: 0258-94-4545
所在地: 新潟県長岡市福住2-1-24高野ビル1階
交通: 長岡駅
営業時間: 9:00~18:00/定休日:土・日・祝
免許番号: 新潟県知事(1)第5634号 この会社の情報を詳しく見る
所属団体名: 公社 新潟県宅地建物取引協会 長岡支部
取引態様: 一般