物件掲載企業数:301|賃貸物件:3,189件|売買物件:3,240件|今週の登録物件:302
閲覧中のブラウザ(インターネットエクスプローラー)は非推奨ブラウザです。
物件が正しく表示されなかったり、正しく検索されない場合があります。最新のブラウザ(Google Chrome・Edgeなど)にてご利用お願いいたします。
  

新潟県長岡市東栄3丁目-1-22 新築一戸建て 3LDK 25,800,000円の物件情報

令和8年2月築。吹き抜けのあるリビングで開放感のある空間が広がります。 自然光が差し込み、明るい室内環境に配慮されています。 キッチンから洗面脱衣室へとつながる動線で家事がしやすい間取りです。 移動がスムーズで日々の負担軽減につながります。

物件名/所在地 詳細 価格
東栄3丁目 新築戸建
新潟県長岡市東栄3丁目-1-22
  • 土地面積
    :132.23㎡ /39.99坪
  • 建物面積
    :86.11㎡ /26.04坪
  • 間取り
    :3LDK
  • 築年月
    :2026年2月
25,800,000
  • 東栄3丁目 新築戸建
    有限会社 ブライトサクセス
  • この物件を問い合わせる/無料
  • TEL: 0258-35-2220

物件画像

外観 間取り
物件画像
※画像クリックで拡大表示
外観
物件画像
※画像クリックで拡大表示
間取り
詳細画像
動画


物件概要

洗面脱衣室には収納スペースを設け、日用品も整理しやすくなっています。 全居室にウォークインクローゼットを備え、収納力を確保しています。 衣類や荷物をまとめて収納でき、居住空間をすっきり保てます。 生活動線と収納計画のバランスに配慮した設計です。 駐車スペースは2台分を確保しています。
物件コード 00320-200261
物件名 東栄3丁目 新築戸建
交通 駅:信越線 北長岡駅から徒歩15分、バス:新町1丁目から徒歩6分
物件所在地 新潟県長岡市東栄3丁目-1-22
物件種別 新築一戸建て
構造 木造 階建 地上2階建
建ぺい率/容積率 60%/200%
建物面積 計 86.11㎡ /26.04坪
土地面積 132.23㎡ /39.99坪
築年月 2026年2月(築2ヶ月)
入居(引き渡し)時期 随時入居(引き渡し)可
用途地域 第1種住居地域 地目 宅地
都市計画 市街化区域 学校区 川崎東小学校(576m)・東北中学校(838m)
形状 間口 7.3m × 奥行 17.7m 道路 北東3.8m幅
私道 - その他の制限 第三種高度地区、建築基準法第22条第1項の規定により指定する区域、まちなか居住区域、容積率:200%(前面道路幅員により制限あり)
  • 東栄3丁目 新築戸建
    有限会社 ブライトサクセス
  • この物件を問い合わせる/無料
  • TEL: 0258-35-2220

物件詳細情報

所在階/階数 - 号室 -
販売価格 25,800,000円 方位 北東
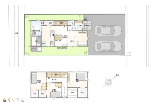
間取り 3LDK (洋室:6.0、5.3、4.5)
LDK16
専有面積 - バルコニー面積 -
その他面積 - 駐車場 -
管理費 - 修繕積立金 -
現況 空家
仲介手数料 917,400円
利用制限 -
設備 整形地、日当り良好、閑静な住宅街、BELS/省エネ基準適合認定建物、LDK15畳以上、全室フローリング、駐車場2台以上、TVインターホン、複層ガラス、システムキッチン、カウンターキッチン、IHクッキングヒーター、バス1坪以上、温水洗浄便座、シャワー付き洗面台、エアコン、24時間換気システム、オール電化、省エネ給湯、高気密高断熱住宅、上水道、下水道、電気、ウォークインクローゼット、全居室収納あり、床下収納、シューズBOX、即引き渡し可能
取引態様 仲介
備考 ◯ダブル断熱(充填+外張り)の高断熱仕様
◯エアコン2台付き
◯24時間熱交換換気扇付き
◯エコキュートを利用したオール電化仕様
◯住宅設備全てLIXIL製
◯吹抜で開放感のあるリビング
◯天井断熱には断熱性・防音性に優れた「セルロースファイバー」を使用
◯キッチンはタッチレス水栓仕様
取り扱い会社

有限会社 ブライトサクセス

新潟県長岡市新町1-1-2

情報登録日 2026/04/28 次回更新予定日 2026/05/12
取引条件有効期限 2027/04/22
  • 東栄3丁目 新築戸建
    有限会社 ブライトサクセス
  • この物件を問い合わせる/無料
  • TEL: 0258-35-2220

この物件の地図・周辺情報・行政情報

この物件の周辺情報・行政情報を詳しく見る
【周辺情報】
物件の近くにあるコンビニや銀行・学校など、アイコン付のマップで詳しく表示できます!
【行政情報】
水道料や下水道料・ガス料金など、暮らしに関係のある情報を表示しています。
ラ・ムー 長岡愛宕店(スーパー)まで590m
長岡新町郵便局(郵便局)まで760m
ローソン 長岡石内一丁目店(コンビニ)まで730m
長岡市立東北中学校(学校)まで838m

※カメラのアイコンがある場合は、マウスをポイントするとその施設の画像がご覧いただけます。


担当取扱い店舗情報

取扱い店舗画像
有限会社 ブライトサクセス
TEL: 0258-35-2220
所在地: 新潟県長岡市新町1-1-2
交通: 長岡駅
営業時間: 午前10時00分~午後7時 /定休日:オンラインサービス:午前9時30分~午後9時
免許番号: 新潟県知事(1)第5629号 この会社の情報を詳しく見る
所属団体名: 公社 新潟県宅地建物取引協会 新潟支部
取引態様: 仲介
ホームページ: https://bright-success.net/