物件掲載企業数:297|賃貸物件:3,618件|売買物件:3,318件|今週の登録物件:269
閲覧中のブラウザ(インターネットエクスプローラー)は非推奨ブラウザです。
物件が正しく表示されなかったり、正しく検索されない場合があります。最新のブラウザ(Google Chrome・Edgeなど)にてご利用お願いいたします。
  

新潟県長岡市大島新町1丁目 新築一戸建て 3LDK 24,900,000円の物件情報

徒歩1分の土手で長岡花火を満喫!渋滞知らずで夏の夜空を楽しめます。アピタ・イオン・リバーサイド千秋が車で5分圏内、買い物や外出の利便性◎

物件名/所在地 詳細 価格
大島新町1 新築戸建
新潟県長岡市大島新町1丁目
  • 土地面積
    :165.28㎡ /49.99坪
  • 建物面積
    :87.77㎡ /26.55坪
  • 間取り
    :3LDK
  • 築年月
    :2025年3月
24,900,000
  • 大島新町1 新築戸建
    有限会社 ブライトサクセス
  • この物件を問い合わせる/無料
  • TEL: 0258-35-2220

物件画像

外観 間取り
物件画像
※画像クリックで拡大表示
外観
物件画像
※画像クリックで拡大表示
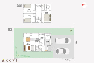
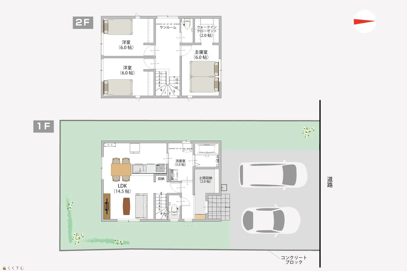
間取り
詳細画像
動画


物件概要

家事動線は一直線にまとめ、朝や夕方の忙しい時間をスムーズに。 3帖の広々とした洗面脱衣室は、洗濯・干す・取り込む・たたむ・しまうまでが1か所で完結するランドリースペースとして使え、家事の負担を軽減します。 アウトドア派に嬉しいのが、1坪(畳2枚分)の広さを確保した土間収納。 キャンプ用品やスキー道具、釣り道具、除雪道具までまとめて収納でき、汚れても床が土間なので掃除も簡単。 大島小学校、公園やこどもえんも徒歩10分圏内と、子育て世帯にも安心の環境です。
物件コード 00320-200195
物件名 大島新町1 新築戸建
交通 駅:上越新幹線 長岡駅から徒歩35分、バス:長生橋西詰から徒歩6分
物件所在地 新潟県長岡市大島新町1丁目
物件種別 新築一戸建て
構造 木造合金メッキ鋼板葺 階建 地上2階建
建ぺい率/容積率 60%/200%
建物面積 計 87.77㎡ /26.55坪
土地面積 165.28㎡ /49.99坪
築年月 2025年3月(築9ヶ月)
入居(引き渡し)時期 随時入居(引き渡し)可
用途地域 第1種中高層住居専用地域 地目 宅地
都市計画 市街化区域 学校区 大島小学校(549m)・大島中学校(997m)
形状 - 道路 北側前面道路幅員5.7m
私道 - その他の制限 法22条指定区域
  • 大島新町1 新築戸建
    有限会社 ブライトサクセス
  • この物件を問い合わせる/無料
  • TEL: 0258-35-2220

物件詳細情報

所在階/階数 - 号室 -
販売価格 24,900,000円 方位
間取り 3LDK (洋室:6.0、6.0、6.0)
LDK14.5
専有面積 - バルコニー面積 -
その他面積 - 駐車場 -
管理費 - 修繕積立金 -
現況 空家
仲介手数料 887,700円
消雪組合加入金 200,000円
一括払い
消雪組合年会費 10,000円
年額
町内会年会費 9,600円
年額
利用制限 -
設備 整形地、日当り良好、閑静な住宅街、BELS/省エネ基準適合認定建物、全室フローリング、駐車場2台以上、南向き、庭あり、TVインターホン、複層ガラス、システムキッチン、カウンターキッチン、IHクッキングヒーター、バス1坪以上、温水洗浄便座、シャワー付き洗面台、エアコン、オール電化、省エネ給湯、高気密高断熱住宅、上水道、下水道、電気、ウォークインクローゼット、全居室収納あり、シューズインクローゼット、シューズBOX、即引き渡し可能
取引態様 仲介
備考 -
取り扱い会社

有限会社 ブライトサクセス

新潟県長岡市新町1-1-2

情報登録日 2025/10/08 次回更新予定日 2026/01/02
取引条件有効期限 2026/07/30
  • 大島新町1 新築戸建
    有限会社 ブライトサクセス
  • この物件を問い合わせる/無料
  • TEL: 0258-35-2220

この物件の地図・周辺情報・行政情報

この物件の周辺情報・行政情報を詳しく見る
【周辺情報】
物件の近くにあるコンビニや銀行・学校など、アイコン付のマップで詳しく表示できます!
【行政情報】
水道料や下水道料・ガス料金など、暮らしに関係のある情報を表示しています。
クスリのアオキ 大島店(ドラッグストア)まで840m
長岡信用金庫 大島支店(銀行)まで660m
長岡大島郵便局(郵便局)まで620m

※カメラのアイコンがある場合は、マウスをポイントするとその施設の画像がご覧いただけます。


担当取扱い店舗情報

取扱い店舗画像
有限会社 ブライトサクセス
TEL: 0258-35-2220
所在地: 新潟県長岡市新町1-1-2
交通: 長岡駅
営業時間: 午前10時00分~午後6時 /定休日:オンラインサービス:午前9時30分~午後9時
免許番号: 新潟県知事(1)第5629号 この会社の情報を詳しく見る
所属団体名: 公社 新潟県宅地建物取引協会 新潟支部
取引態様: 仲介
ホームページ: https://bright-success.net/