物件掲載企業数:301|賃貸物件:3,189件|売買物件:3,240件|今週の登録物件:302
閲覧中のブラウザ(インターネットエクスプローラー)は非推奨ブラウザです。
物件が正しく表示されなかったり、正しく検索されない場合があります。最新のブラウザ(Google Chrome・Edgeなど)にてご利用お願いいたします。
  

新潟県燕市杣木1433-2 新築一戸建て 3LDK 22,800,000円の物件情報

令和7年3月築。燕西小学校まで徒歩4分 ・燕中学校まで徒歩12分。ファミリーにおすすめの3LDK。家事動線にムダがない。洗濯からキッチンまでスマートにつながる暮らし。

物件名/所在地 詳細 価格
燕市杣木 新築戸建
新潟県燕市杣木1433-2
  • 土地面積
    :177.41㎡ /53.66坪
  • 建物面積
    :86.11㎡ /26.04坪
  • 間取り
    :3LDK
  • 築年月
    :2025年3月
22,800,000
  • 燕市杣木 新築戸建
    有限会社 ブライトサクセス
  • この物件を問い合わせる/無料
  • TEL: 0258-35-2220

物件画像

外観 間取り
物件画像
※画像クリックで拡大表示
外観イメージ
物件画像
※画像クリックで拡大表示
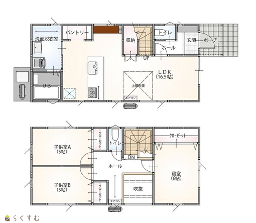
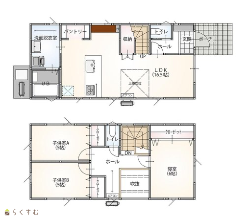
間取り図
詳細画像
動画


物件概要

会話が弾む対面キッチン。パントリーもついて収納豊富。吹抜けで2階とつながるリビング、どこにいても家族の気配を感じられます。2階にもトイレがあり、朝の準備が重なっても大丈夫。家族みんなの時短をサポート。
物件コード 00320-200174
物件名 燕市杣木 新築戸建
交通 駅:弥彦線 燕駅から徒歩14分、バス:図書館から徒歩2分
物件所在地 新潟県燕市杣木1433-2
物件種別 新築一戸建て
構造 木造 階建 地上2階建
建ぺい率/容積率 60%/200%
建物面積 計 86.11㎡ /26.04坪
土地面積 177.41㎡ /53.66坪
築年月 2025年3月(築1年)
入居(引き渡し)時期 随時入居(引き渡し)可
用途地域 準住居地域 地目 宅地
都市計画 市街化区域 学校区 燕西小学校(203m)・燕中学校(552m)
形状 間口 15m 道路 南西25m幅(接道幅15m)、北東5m幅(接道幅15m)
私道 私道負担無 その他の制限 -
  • 燕市杣木 新築戸建
    有限会社 ブライトサクセス
  • この物件を問い合わせる/無料
  • TEL: 0258-35-2220

物件詳細情報

所在階/階数 - 号室 -
販売価格 22,800,000円 方位 南西
間取り 3LDK (洋室:6.0、5.0、5.0)
LDK16.5
専有面積 - バルコニー面積 -
その他面積 - 駐車場 -
管理費 - 修繕積立金 -
現況 空家
仲介手数料 851,400円
利用制限 -
設備 整形地、前面道路6m以上、日当り良好、LDK15畳以上、全室フローリング、駐車場2台以上、TVインターホン、複層ガラス、システムキッチン、カウンターキッチン、バス1坪以上、温水洗浄便座、シャワー付き洗面台、エアコン、オール電化、省エネ給湯、高気密高断熱住宅、上水道、下水道、電気、全居室収納あり、シューズインクローゼット、即引き渡し可能
取引態様 仲介
備考 -
取り扱い会社

有限会社 ブライトサクセス

新潟県長岡市新町1-1-2

情報登録日 2026/04/20 次回更新予定日 2026/05/12
取引条件有効期限 2026/10/31
  • 燕市杣木 新築戸建
    有限会社 ブライトサクセス
  • この物件を問い合わせる/無料
  • TEL: 0258-35-2220

この物件の地図・周辺情報・行政情報

この物件の周辺情報・行政情報を詳しく見る
【周辺情報】
物件の近くにあるコンビニや銀行・学校など、アイコン付のマップで詳しく表示できます!
【行政情報】
水道料や下水道料・ガス料金など、暮らしに関係のある情報を表示しています。

担当取扱い店舗情報

取扱い店舗画像
有限会社 ブライトサクセス
TEL: 0258-35-2220
所在地: 新潟県長岡市新町1-1-2
交通: 長岡駅
営業時間: 午前10時00分~午後7時 /定休日:オンラインサービス:午前9時30分~午後9時
免許番号: 新潟県知事(1)第5629号 この会社の情報を詳しく見る
所属団体名: 公社 新潟県宅地建物取引協会 新潟支部
取引態様: 仲介
ホームページ: https://bright-success.net/